Elkay AP99 Bruksanvisning
Elkay vatten dispenser AP99
Läs gratis den bruksanvisning för Elkay AP99 (1 sidor) i kategorin vatten dispenser. Guiden har ansetts hjälpsam av 2 personer och har ett genomsnittsbetyg på 4.4 stjärnor baserat på 2 recensioner. Har du en fråga om Elkay AP99 eller vill du ställa frågor till andra användare av produkten? Ställ en fråga
Sida 1/1

98345C (REV.- 11-06)
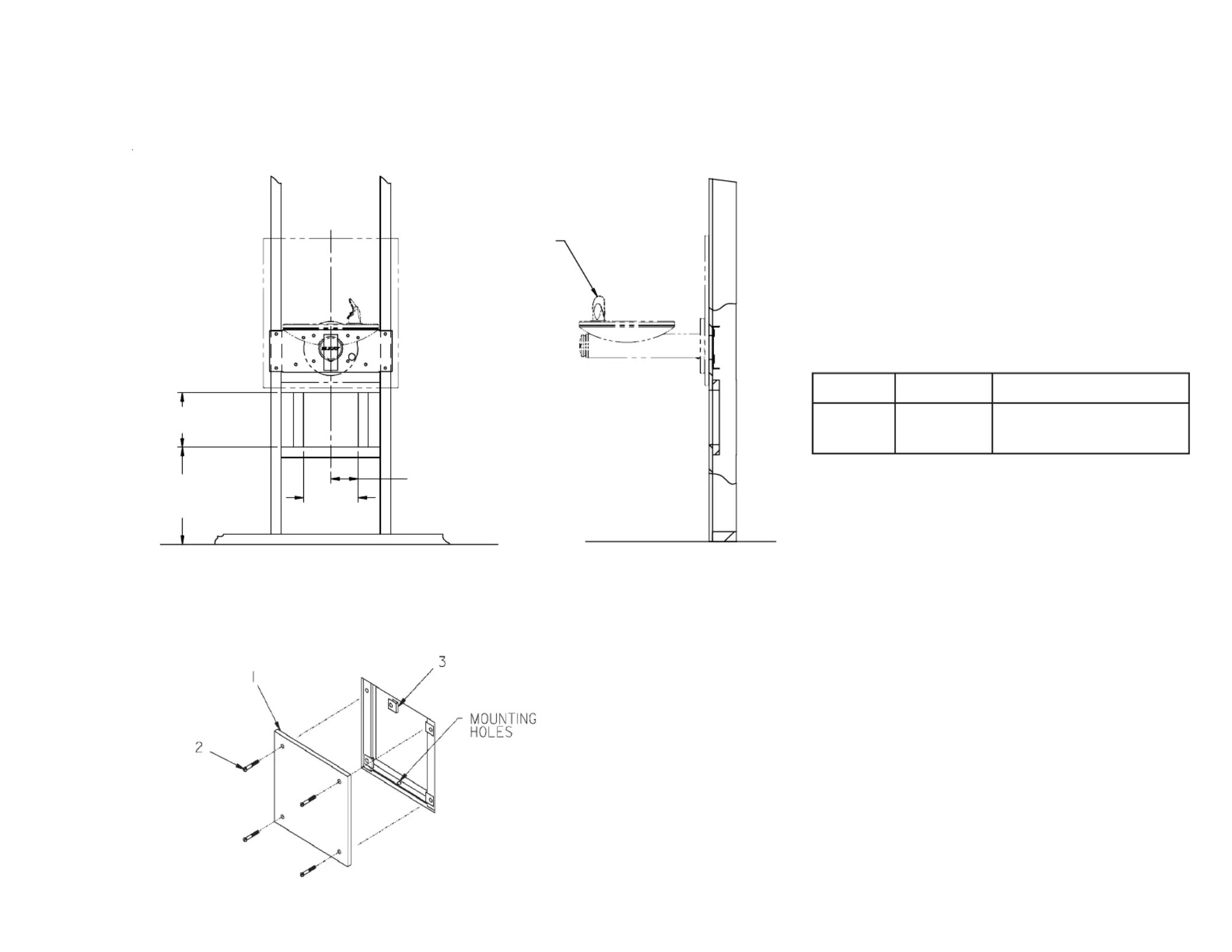
HEIGHT
TO SUIT
APPLICATION
8
203mm
4.0
102mm
8
203mm
FINISHED FLOORFINISHED FLOOR
SWIRLFLO FOUNTAIN
SHOWN FOR REF.
FOR PARTS, CONTACT YOUR LOCAL DISTRIBUTOR OR CALL 1.800.323.0620
ELKAY MANUFACTURING COMPANY - 2222 CAMDEN CPOURT - OAKBROOK, IL 60523 - 630.574.8484
OPTIONAL ACCESS PANEL (AP99)
1. POSITION CLIPS (4) ON FRAME'S FLANGES (FLAT SIDE
OF CLIPS TO BE TOWARD FRONT).
2. PLACE ACCESS PANEL FRAME INTO 8" X 8" (203 mm x 203 mm)
WALL OPENING. NOTE: POSITION WITH FLANGES ON THE LEFT
AND RIGHT SIDES OF THE OPENING. FACE OF FRAME SHOULD
BE FLUSH WITH OR MAXIMUM 7/8" (22 mm) BEHIND FINISHED WALL.
3. SECURE FRAME IN PLACE THROUGH MOUNTING HOLES.
(FASTENERS PROVIDED BY OTHERS).
4. PLACE ACCESS PANEL OVER FRAME AND SECURE IN PLACE
USING (4) HEX SOCKET SCREWS. NOTE: INSTALLATION OF
THESE SCREWS WILL REQUIRE THE USE OF AN ALLEN WRENCH.
(WRENCH NOT FURNISHED).
1. PANEL PROVIDES ACCESS TO PLUMBING
CONNECTIONS (WATER SUPPLY & DRAIN).
2. CONNECTIONS FOR PLUMBING HOOKUP
PROVIDED BY OTHERS.
INSTALLATION INSTRUCTIONS FOR AP99 ACCESS PANEL
55000966
74080057
70055C
1
2
3
PANEL
#8-32 X 1.50 HSBH ST STEEL
NUT-SPEED
PART. NO.DESCRIPTIONITEM NO.
PARTS LIST
Produktspecifikationer
| Varumärke: | Elkay |
| Kategori: | vatten dispenser |
| Modell: | AP99 |
Behöver du hjälp?
Om du behöver hjälp med Elkay AP99 ställ en fråga nedan och andra användare kommer att svara dig
vatten dispenser Elkay Manualer
23 Mars 2026
23 Mars 2026
23 Mars 2026
22 Mars 2026
22 Mars 2026
21 Mars 2026
21 Mars 2026
21 Mars 2026
21 Mars 2026
21 Mars 2026
vatten dispenser Manualer
Nyaste vatten dispenser Manualer
22 Mars 2026
19 Mars 2026
18 Mars 2026
18 Mars 2026
17 Mars 2026
16 Mars 2026
16 Mars 2026
16 Mars 2026
15 Mars 2026
15 Mars 2026