Vestil LAD-14-14-G-EZ Bruksanvisning
Läs gratis den bruksanvisning för Vestil LAD-14-14-G-EZ (21 sidor) i kategorin Stege. Guiden har ansetts hjälpsam av 4 personer och har ett genomsnittsbetyg på 4.7 stjärnor baserat på 2.5 recensioner. Har du en fråga om Vestil LAD-14-14-G-EZ eller vill du ställa frågor till andra användare av produkten? Ställ en fråga
Sida 1/21

Table of Contents Rev. 10/2/2020 LLW MANUAL
Table of Contents Copyright 2020 Vestil Manufacturing Co. Page 1 of 21
LLW, LLPW, ALLW, & ALLPW Light Load Lifters
Use and Maintenance Manual
-A)LLW FW -(A)LLPW FW (A)LLW-4SFL - (A)LLPW 4SFL
Receiving Instructions
A fter delivery, remove the packaging from the product. Inspect the product closely to determine whether it
sustained damage during transport. If damage is discovered, record a complete description of it on the bill of lading.
If the product is undamaged, discard the packaging.
NOTE: The end user is solely responsible for confirming that product design, use, and maintenance comply with -
laws, regulations, codes, and mandatory standards applied where the product is used.
Technical Service & Replacement Parts
For answers to questions not addressed in these instructions and to order replacement parts, labels, and
accessories, call our Technical Service and Parts Department at (260) 665 7586. The Department can also be -
contacted online at http://www.vestilmfg.com/parts_info.htm
.
Electronic Copies of Instruction Manuals
Additional copies of this instruction manual may be downloaded from https://www.vestil.com/page-manuals.php
.
Vestil Manufacturing Corp.
2999 North Wayne Street, P.O. Box 507, Angola, IN 46703
Telephone: (260) 665 7586 - -or 0868- Toll Free (800) 348-
Fax: (260) 665-1339
Web: www.vestilmfg.com e- mail: info@vestil.com
Table of Contents
Page
Specifications (dimensions, capacity, net weight): LLW & ALLW……………………………………………….......
2
Specifications (dimensions, capacity, net weight): LLPW & ALLPW………………………………………….…….
3
Signal Words….…………………………………………………………………………………………………..……….
4
Safety Instructions..…….…………..………………………………………………………………..………..………….
4
LLW- -202058 FW Exploded View & Bill of Materials….…………….…………………………………....……........ ..
5
ALLW- -2020 FW Exploded View & Bill of Materials…………………..………….…………………….......…………
6
ALLW- -2020 FWFL Exploded View & Bill of Materials………………………………………………………………..
7
LLW- -202058 FWFL Exploded View & Bill of Materials………………………………………………………………
8
LLW- -202058 FWWL Exploded View & Bill of Materials………………………………………………………………
9
LLW- -242060 4SFL Exploded View & Bill of Materials………………………………...…….………………….…….
10
ALLW- -2420 4SFL Exploded View & Bill of Materials……………………………………........................................
11
LLPW 500- -FW Exploded View & Bill of Materials……………………………………….....…………………….......
12
LLPW 500- -FWFL Exploded View & Bill of Materials………………………………………………………………….
13
ALLPW- -500 FW Exploded View & Bill of Materials………………………………………………………….………..
14
ALLPW- -500 FWFL Exploded View & Bill of Materials………………………………………………………………..
15
LLPW 500- -4SFL Exploded View & Bill of Materials…………………………………….…………………....……….
16
ALLPW- -500 4SFL Exploded View & Bill of Materials………………………………………………………….……..
17
Raising and Lowering the Deck….……………………………………………………………………………………...
18
Using the Hand Truck..…..………………………………………………………………………………………………
18 19-
Record of Satisfactory Condition………………………………………………………………………………….…….
19
Inspections & Maintenance…………………………………………………………………………….........................
20
Labeling Diagram……………………………………………………………………………………………………...….
20
Limited Warranty…...……………………………………………………………………………………………………..
21

Table of Contents Rev. 10/2/2020 LLW MANUAL
Table of Contents Copyright 2020 Vestil Manufacturing Co. Page 2 of 21
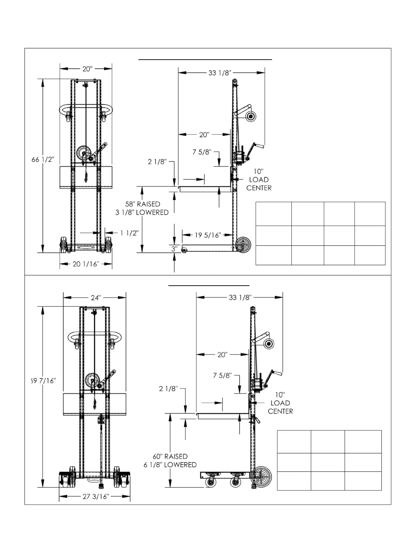
SPECIFICATIONS
s. Dimensions, net weight, and capacity information for standard models appear in the diagrams and table
MODEL
LLW-
242060-
4SFL
ALLW-
2420-4SFL
Net
weight
192 lb.
87.0 kg
127 lb.
57.7 kg
Capacity
500 lb.
227.3 kg
400 lb.
181.8 kg
MODEL
LLW-
202058-
FW
ALLW-
2020-
FW
ALL-
2020-
FWFL
Net
weight
131 lb.
59.3 kg
84 lb.
38.2 kg
86 lb.
39.1kg
Capacity
500 lb.
227.3 kg
4 00 lb.
181.8 kg
4 00 lb.
181.8 kg
10”
LLW FW; ALLW FWFL- -FW; & ALLW- -2020
LLW- 4SFL & ALLW- 4SFL

Table of Contents Rev. 10/2/2020 LLW MANUAL
Table of Contents Copyright 2020 Vestil Manufacturing Co. Page 3 of 21
LL FW; FWFLPW- PW-ALL FW; & ALLPW- -500
Model
Net
weight
Capacity
LLPW- -500
FW
156 lb.
70.9 kg
400 lb.
181.8 kg
ALLPW- -500
FW
93 lb.
42.2 kg
400 lb.
181.8 kg
ALLPW- -500
FWFL
94 lb.
42.7 kg
400 lb.
181.8 kg
Model
Net
weight
Capacity
LLPW- -500
4SFL
213 lb.
96.7 kg
400 lb.
181.8 kg
ALLPW- -500
4SLF
135 lb.
61.2 kg
400 lb.
181.8 kg
LLPW- PW- 4SFL & ALL 4SFL
Produktspecifikationer
Varumärke: | Vestil |
Kategori: | Stege |
Modell: | LAD-14-14-G-EZ |
Behöver du hjälp?
Om du behöver hjälp med Vestil LAD-14-14-G-EZ ställ en fråga nedan och andra användare kommer att svara dig
Stege Vestil Manualer
2 Oktober 2025
18 September 2025
24 Augusti 2025
24 Augusti 2025
24 Augusti 2025
24 Augusti 2025
24 Augusti 2025
24 Augusti 2025
24 Augusti 2025
24 Augusti 2025
Stege Manualer
- Biltema
- Clas Ohlson
- Krause
- Telesteps
- Versaladder
- Hard Head
- Thule
- JANDY
- GEV
- Fieldmann
- Kidde
- Altrex
- Mr Safe
- Foppapedretti
- Batavia
Nyaste Stege Manualer
19 September 2025
19 September 2025
3 September 2025
27 Augusti 2025
26 Juli 2025
25 Juli 2025
18 Juli 2025
18 Juli 2025
18 Juli 2025
2 Juli 2025