Vimar ELVOX 0839/303.06 Bruksanvisning
Läs gratis den bruksanvisning för Vimar ELVOX 0839/303.06 (6 sidor) i kategorin Växla. Guiden har ansetts hjälpsam av 13 personer och har ett genomsnittsbetyg på 5.0 stjärnor baserat på 7 recensioner. Har du en fråga om Vimar ELVOX 0839/303.06 eller vill du ställa frågor till andra användare av produkten? Ställ en fråga
Sida 1/6

R
R
PRI
2 7C23-1 C186 15 ASO
1 2 3 S
L1
B
C
987
P2P1
98754321
L1
7
6
5
8
B
D
C
3
4
7
6
5
8
D
3
4
2
3
6
8
7
4
5
1
2
B
6
7
4
5
3
B
1
A
A
CITOFONI - INTERPHONE
POSTES - HAUSTELEFONE
TELÉFONOS - TELEFONES
620R
ALIMENTATORE
POWER SUPPLY
ALIMENTATION
NETZGERÄT
ALIMENTADOR
RETE-MAINS
RÉSEAU-NETZ
RED-REDE
0931 (0831)
COM MU TA TO RE
SWITCHING MODULE
COMMUTATEUR
UMSCHALTRELAIS
CONMUTADOR
COMUTADOR
C - Serratura elettrica 12V~
Electric lock 12V~
Gâche électrique 12V~
Elektrischer Türöffner 12V~
~Cerradura eléctrica 12V
Trinco eléctrico 12V~
D - Posto ester no - Speech unit
Poste externe - Außenstelle
Aparato externo - Posto externo
0930/000.04 - 930A
CITOFONI - INTERPHONE
POSTES - HAUSTELEFONE
TELÉFONOS - TELEFONES
8870.1 (8870)
0870/001
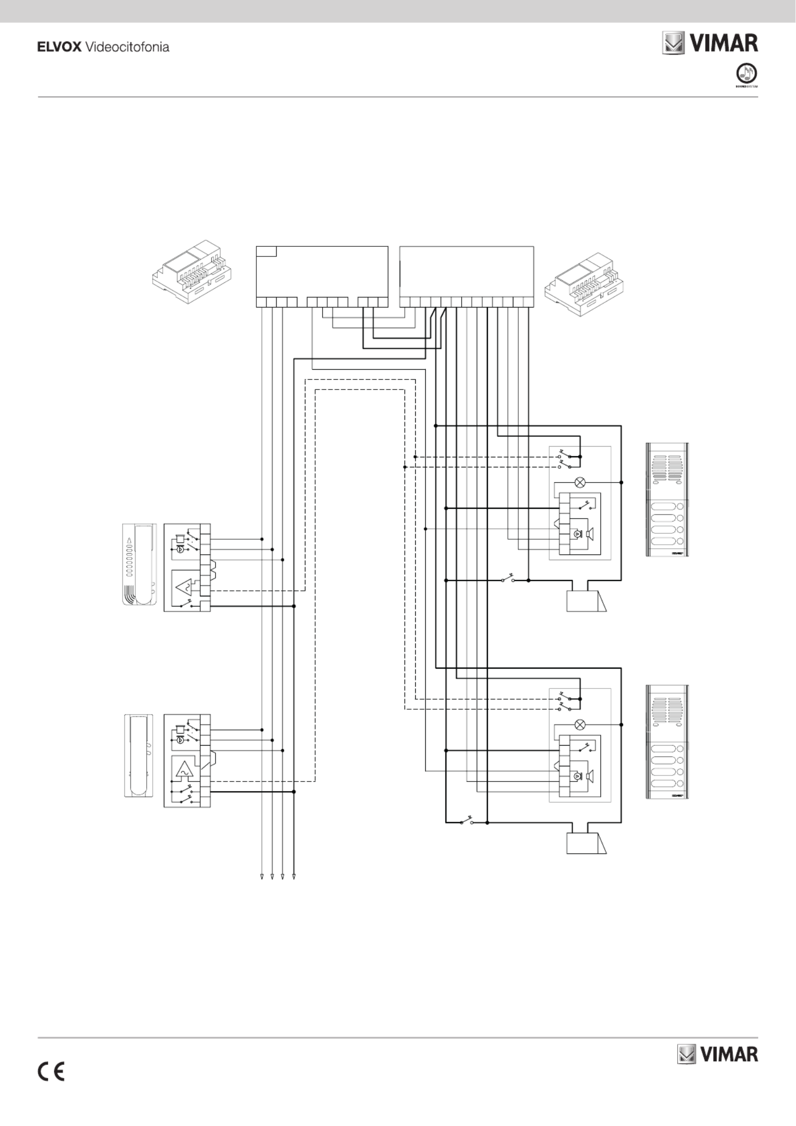
Con il commutatore 0839/303.06 il terzo posto esterno viene col le ga to in modo
ana lo go al 0839/302.06 uti liz zan do i morsetti P3-7-8-9.
With switching module 0839/303.06 the third outdoor station is connected in the
same way to 0839/302.06 by using terminals P3-7-8-9.
Avec le commutateur 0839/303.06 le troisième poste externe est connecté de la
mème façon que 0839/302.06 en utilisant les bornes P3-7-8-9.
Mit dem Umschaltrelais 0839/303.06 wird die dritte Außenstelle in der selben Weise
wie 0839/302.06 verbunden; durch Verwendung der Klemmen P3-7-8-9.
Con el conmutador 0839/303.06 el tercero aparato externo viene conectado como
el 839/302, utilizando los bornes P3-7-8-9.
Com o comutador 0839/303.06 o terceiro posto externo é ligado de modo análogo
ao 839/302, utilizando os terminais P3-7-8-9.
A - Targa con posto esterno
Entrance panel with speech unit
Plaque de rue avec poste externe
Klingeltableau mit Außenstelle
Placa con aparato externo
Botoneira com posto externo
serie-série 1200, 1300, 8000, 8100
3300, PATAVIUM, Casellario postale
B - Pulsante supplementare serratura
Additional push-button for lock
Poussoir supplémentaire gâche
Zusätzliche Türöffnertaste
Pulsador suplementario cerradura
Botão suplementar do trinco
DISEGNO-DRAWING-SCHÉMA-SCHALTPLAN-ESQUEMA N° C1992
PORTIERE ELETTRICO CON 2 O 3 POSTI ESTERNI 0930/000.04 (930A) E SERRATURE A SCAMBIO AU TO MA TI CO
ELECTRIC DOOR-OPENER SYSTEM WITH 2 OR 3 OUTDOOR UNITS 0930/000.04 (930A) AND AUTOMATIC SWITCHING LOCKS
PORTIER ÉLECTRIQUE À 2 OU 3 POSTES EXTERNES 0930/000.04 (930A) ET GÂCHES À COMMUTATION AUTOMATIQUE
TÜRSPRECHANLAGE MIT 2 ODER 3 TÜRSPRECHSTELLEN 0930/000.04 (930A) UND TÜRÖFFNER MIT AUTOMATISCHER UMSCHALTUNG
PORTERO ELÉCTRICO CON 2 O 3 APARATOS EXTERNOS 0930/000.04 (930A) Y CERRADURAS DE CONMUTACIÓN AUTOMÁTICA
PORTEIRO ELÉCTRICO COM 2 OU 3 POSTOS EXTERNOS 0930/000.04 (930A)E TRINCOS COM COMUTAÇÃO AUTOMÁTICA
0839/302.06
0839/303.06
Viale Vicenza, 14
36063 Marostica VI - Italy
www.vimar.com
0839/302.06 - 0839/303.06
S60.839.002 09 2201
Produktspecifikationer
| Varumärke: | Vimar |
| Kategori: | Växla |
| Modell: | ELVOX 0839/303.06 |
Behöver du hjälp?
Om du behöver hjälp med Vimar ELVOX 0839/303.06 ställ en fråga nedan och andra användare kommer att svara dig
Växla Vimar Manualer
1 April 2025
11 Mars 2025
11 Mars 2025
30 December 2025
30 December 2025
16 December 2024
16 December 2024
16 December 2024
16 December 2024
16 December 2024
Växla Manualer
- Tripp Lite
- Rule
- IKEA
- Finder
- Eminent
- Phoenix Contact
- LevelOne
- Advantech
- Alfatron
- Lancom
- Alecto
- EBERLE
- Cisco
- Sylvania
- IPGARD
Nyaste Växla Manualer
9 April 2025
9 April 2025
7 April 2025
5 April 2025
5 April 2025
5 April 2025
5 April 2025
3 April 2025
3 April 2025
2 April 2025