American Standard Portsmouth T415502.002 Bruksanvisning
American Standard Duschsystem Portsmouth T415502.002
Läs gratis den bruksanvisning för American Standard Portsmouth T415502.002 (4 sidor) i kategorin Duschsystem. Guiden har ansetts hjälpsam av 2 personer och har ett genomsnittsbetyg på 4.8 stjärnor baserat på 2 recensioner. Har du en fråga om American Standard Portsmouth T415502.002 eller vill du ställa frågor till andra användare av produkten? Ställ en fråga
Sida 1/4

T415.50X
T420.50X
Series
PORTSMOUTH
™
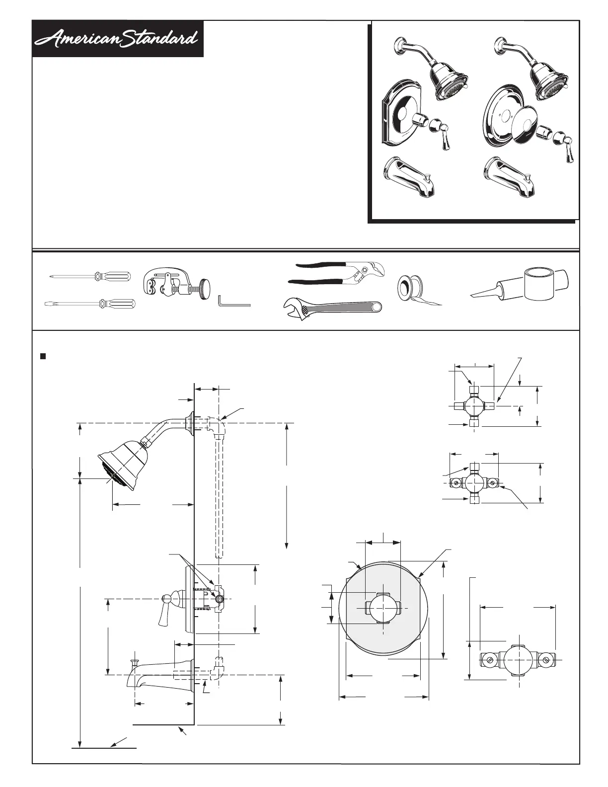
IN WALL PRESSURE BALANCING
BATH AND SHOWER TRIM KIT
To assure proper positioning in relation to wall,
note roughing-in dimensions.
ROUGHING-IN DIMENSIONS
Certified to comply with ANSI A112.18.1
Installation
Instructions
Tubing Cutter
5/64"
Hex Wrench
Recommened Tools
Adjustable Wrench
Channel Locks
Flat Blade Screwdriver
Plumbers' Putty or Caulking
Phillips Screwdriver
Thank you for selecting American-Standard...
the benchmark of fine quality for over 100 years.
To ensure that your installation proceeds smoothly--
please read these instructions carefully before
you begin.
1-5/8" TO 3"
(41mm TO 76mm)
FINISHED WALL
4" (102 mm)
BOTTOM OF TUB
74" FOR HEAD CLEARANCE
(188 cm)
18" OPTIONAL
(45,7 cm)
5-1/8" REF.
(130 mm) REF.
1/2" NPT
(12,7 mm) NPT
7-5/8"
(195 mm)
7-13/16"
(198 mm)
OPTIONAL TO FINISHED FLOOR
USUALLY BETWEEN 65'' AND 78''
TOP OF TUB RIM
SHR
TUB
"SEE ILLUSTRATION"
T415T420
H
C
216mm
(8-1/2")
REF.
125mm
(4-7/8")
REF.
1/2" COPPER
1-1/2" REF.
(38mm) REF.
INLETS 1/2" NPT
ESCUTCHEON T415
OUTLETS
1/2" NPT
3-3/8"
3-3/8"
6-1/2"
(165 mm)
ESCUTCHEON T420
7-5/8" DIA.
(195 mm)
THREADED INLETS (STOPS)
INLETS
1/2" NPT
5-7/8"
OUTLETS
1/2" NPT
3-3/8"
THREADED INLETS
SHR. 1/2" NOM.
COPPER SWEAT
TUB 1/2" NOM.
COPPER SWEAT
4-1/16"
5-7/8"
INLETS
4-1/16"
4-1/16"
INLETS
1/2" NOM.
COPPER
SWEAT
SHR. 1/2" NOM.
COPPER SWEAT
TUB 1/2" NOM.
COPPER SWEAT
2"
SWEAT
INLETS
SWEAT
INLETS (STOPS)
INLETS
1/2" NOM.
COPPER
SWEAT
C
o
ld
Ho
t
M965028 REV.1.7 (12/14)
Teflon
Tape
Produktspecifikationer
| Varumärke: | American Standard |
| Kategori: | Duschsystem |
| Modell: | Portsmouth T415502.002 |
Behöver du hjälp?
Om du behöver hjälp med American Standard Portsmouth T415502.002 ställ en fråga nedan och andra användare kommer att svara dig
Duschsystem American Standard Manualer
24 Februari 2026
24 Februari 2026
24 Februari 2026
24 Februari 2026
24 Februari 2026
24 Februari 2026
24 Februari 2026
24 Februari 2026
24 Februari 2026
24 Februari 2026
Duschsystem Manualer
Nyaste Duschsystem Manualer
19 Februari 2026
18 Februari 2026
18 Februari 2026
18 Februari 2026
18 Februari 2026
17 Februari 2026
17 Februari 2026
17 Februari 2026
17 Februari 2026
17 Februari 2026