Zurn Z7100 Bruksanvisning
Zurn Duschsystem Z7100
Läs gratis den bruksanvisning för Zurn Z7100 (4 sidor) i kategorin Duschsystem. Guiden har ansetts hjälpsam av 5 personer och har ett genomsnittsbetyg på 4.5 stjärnor baserat på 5 recensioner. Har du en fråga om Zurn Z7100 eller vill du ställa frågor till andra användare av produkten? Ställ en fråga
Sida 1/4

ZURN INDUSTRIES, LLC 5900 Elwin Buchanan Drive, Sanford, NC U.S.A. 27330, Ph. 1-800-997-3876, Fax 919-775-3541
In Canada: ZURN INDUSTRIES LIMITED 7900 Goreway Drive, Unit 10, Brampton, Ontario L6T 5W6, Ph. 905-405-8272, Fax 905-405-1292
Rev. L Date: 10/29/2018 C.N. No. SAN008373 Prod. | Dwg. No. CF1007
PAGE 1 OF 4
Installation Maintenance Instructions Replacement Kits
Pressure Balancing Shower/Tub & Shower Valve
For Model Series: Z7100, Z7120, Z7200 & Z7220
WARNING: This product contains lead. A chemical known to the State
of California to cause cancer or birth defects or other reproductive
harm. Attention plumber/installer: California law requires that this
warning be given to the consumer.
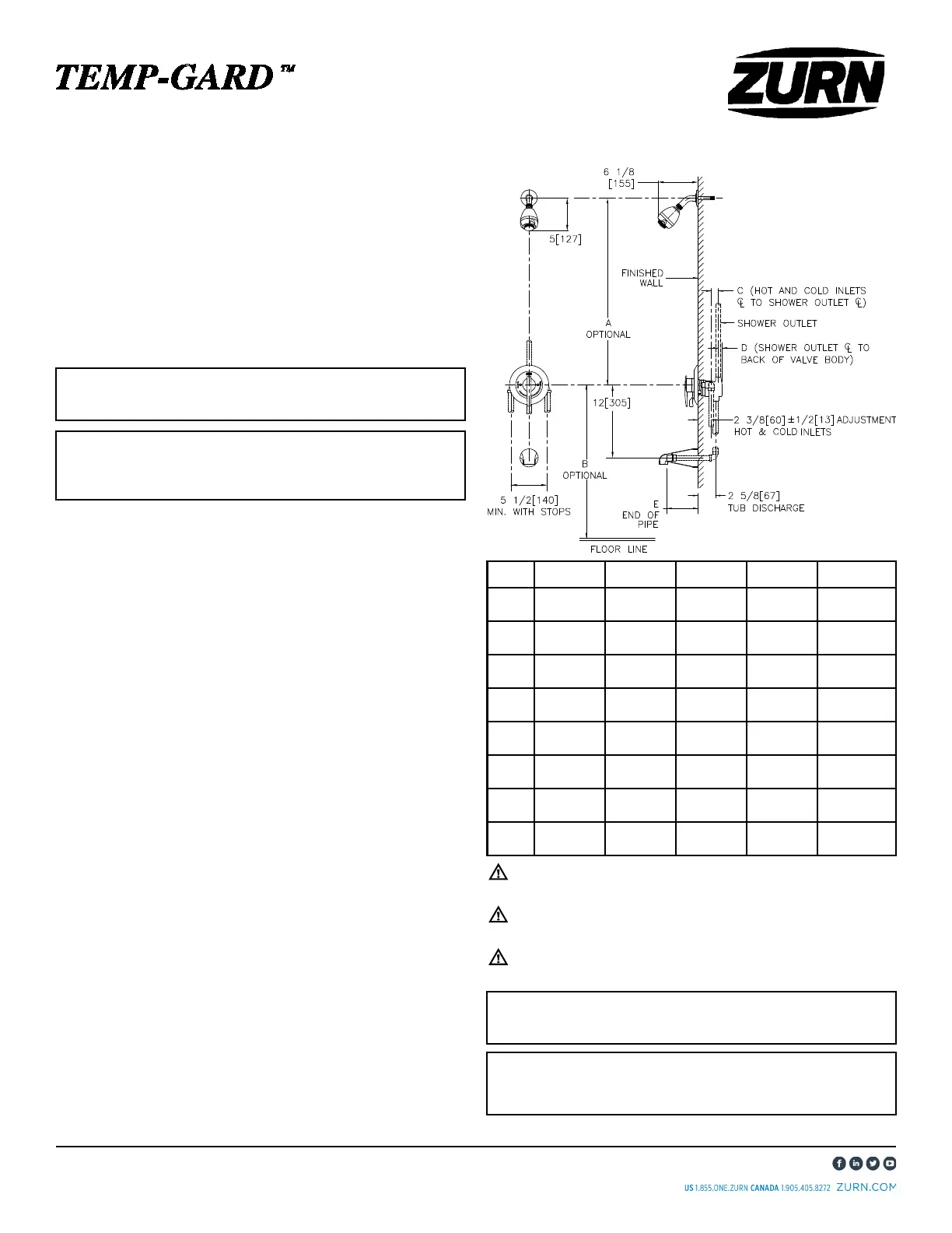
1. Install rough piping and valve body as shown. Do not use PEX
or CPVC CTS piping from valve to tub spout, this causes too
much back pressure for valve to function properly.
• When facing valve, HOT "H" is on left and COLD "C" is on right
Refer to marking on casting when installing. (NOTE: When
installing a valve with sufx "RC", the inlets will be reversed.)
• Valve should be installed with the plastic nishing frame
lettering face ush with the nish wall. All other trim
should be set aside.
INSTALLING THE TEMP-GARD SHOWER VALVE
WARNING: This shower system may not protect the user
from scalding when there is a failure of other temperature
controlling devices elsewhere in the plumbing system.
MAX OPERATING PRESSURE = 125 PSI.
WARNING: Caution should be taken when heating valve for
sweat connections to avoid damaging internal rubber and
plastic components in valve.
FOR OPTIMUM VALVE PERFORMANCE, BALANCE
SUPPLY PRESSURES TO LESS THAN 5 PSI PRESSURE
DIFFERENTIAL BETWEEN HOT AND COLD WATER
SUPPLIES.
2. While nishing tile wall, remove plastic nishing frame and ll
area around valve body with grout or plaster.
• Be careful to keep all ports free of obstructions.
3. Turn on both hot and cold supplies and ush out valve.
• Valve will not operate unless both hot and cold water are
turned on.
• Allow valve to run in warm position for a few minutes to
totally ush system. IF SYSTEM IS EXCESSIVELY DIRTY,
REMOVE THE CONTROL SPINDLE ASSEMBLY TO
ENSURE PROPER FLUSHING.
4. Set limit screw as directed by warning below.
5. Tighten packing nut(#10) to 15 in. lbs. of torque. Check for
desired frictional resistance when rotating handle(#38).
Packing nut (#10) can be tightened additionally, in small
increments, to increase frictional resistance.
• Check bonnet, packing nut, diverter spindle o-ring, and all
valve, pipe, and tting connections for leaks.
6. Assemble external trim on valve
• Install escutcheon(#36)(For valves without integral volume or
integral volume/diverter controls)
• Install cover(#31) and dial plate(#32) with (2) cover
screws(#35).
• Remove protective coating from dial plate.
• Install temperature control handle(#38). (For valves with
integral volume or integral volume/diverter
controls)
• Cover(#31) and dial(#32) are to be assembled by slid-
ing diverter/volume control lever handle(#33) into the cover
with the diverter clip(#34).
• Install the assembly with(2) cover screws(#35).
• Remove protective coating from dial plate.
• Install temperature control handle(#38).
NOTE: When there is a shutoff valve installed after the control
valve, there shall be stop and check valves on the inlets. This is
to eliminate hot and cold cross-connection in the event the valve
handle is left on. Specify sufx "-SC" for ASSE approved checks.
WARNING: Cancer and Reproductive Harm -
www.P65Warnings.ca.gov
ADVERTENCIA: Cáncer y daño reproductivo -
www.P65Warnings.ca.gov
AVERTISSEMENT: Cancer et effets néfastes sur la
reproduction - www.P65Warnings.ca.gov
ABCDE
Z7100-
48 inches
[1219 mm]
-
5/8 inches
[16 mm]
-
Z7101
28 inches
[711 mm]
48 inches
[1219 mm]
-
5/8 inches
[16 mm]
-
Z7120-
48 inches
[1219 mm]
3/4 inches
[19 mm]
1/2 inches
[13 mm]
-
Z7121
28 inches
[711 mm]
48 inches
[1219 mm]
3/4 inches
[19 mm]
1/2 inches
[13 mm]
-
Z7200-
32 inches
[813 mm]
3/4 inches
[19 mm]
1/2 inches
[13 mm]
-
Z7201
44 inches
[1118 mm]
32 inches
[813 mm]
3/4 inches
[19 mm]
1/2 inches
[13 mm]
4 inches
[102 mm]
Z7220-
32 inches
[813 mm]
3/4 inches
[19 mm]
1/2 inches
[13 mm]
-
Z7221
44 inches
[1118 mm]
32 inches
[813 mm]
3/4 inches
[19 mm]
1/2 inches
[13 mm]
4 1/4 inches
[108 mm]
Produktspecifikationer
| Varumärke: | Zurn |
| Kategori: | Duschsystem |
| Modell: | Z7100 |
Behöver du hjälp?
Om du behöver hjälp med Zurn Z7100 ställ en fråga nedan och andra användare kommer att svara dig
Duschsystem Zurn Manualer
9 Mars 2026
9 Mars 2026
8 Mars 2026
5 Mars 2026
Duschsystem Manualer
Nyaste Duschsystem Manualer
31 Mars 2026
29 Mars 2026
9 Mars 2026
26 Februari 2026
26 Februari 2026
26 Februari 2026
26 Februari 2026
26 Februari 2026
26 Februari 2026
25 Februari 2026