American Standard Town Square T555521.002 Bruksanvisning
American Standard Duschsystem Town Square T555521.002
Läs gratis den bruksanvisning för American Standard Town Square T555521.002 (4 sidor) i kategorin Duschsystem. Guiden har ansetts hjälpsam av 2 personer och har ett genomsnittsbetyg på 4.1 stjärnor baserat på 4 recensioner. Har du en fråga om American Standard Town Square T555521.002 eller vill du ställa frågor till andra användare av produkten? Ställ en fråga
Sida 1/4

TOWN SQUARE
®
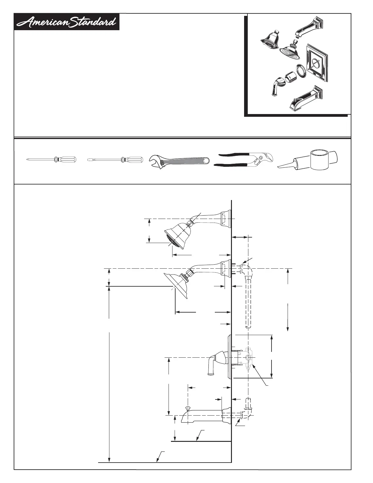
Recommended Tools
Adjustable WrenchChannel LocksFlat Blade ScrewdriverPlumbers' Putty or CaulkingPhillips Screwdriver
1-5/8" TO 3-1/4"
FINISHED WALL
BOTTOM OF
TUB
74" FOR
HEAD CLEARANCE
2" REF.
18"
OPTIONAL
1/2" I.P.S.
1
7-5/8"
4-7/8" REF.
OPTIONAL TO
FINISHED FLOOR
USUALLY BETWEEN
65'' AND 78''
8" REF.
8-1/2" REF.
4"
TOP OF
TUB RIM
1-3/4" REF.
1/2" COPPER
SEE VALVE INSTRUCTIONS FOR
INSTALLATION INFORMATION
7-1/4" REF.
Certified to comply with ANSI A112.18.1
T555.52X
Installation
Instructions
ROUGHING-IN DIMENSIONS
■To assure proper positioning in relation to
wall, note roughing-in dimensions.
PRESSURE BALANCING BATH
AND SHOWER TRIM KIT
Thank you for selecting American-Standard...the benchmark
of fine quality for over 100 years.
To ensure that your installation proceeds smoothly--please
read these instructions carefully before you begin.
M965112 REV.1.4 (8/15)
FLOWISE 3-FUNCTION
SHOWERHEAD
Produktspecifikationer
| Varumärke: | American Standard |
| Kategori: | Duschsystem |
| Modell: | Town Square T555521.002 |
Behöver du hjälp?
Om du behöver hjälp med American Standard Town Square T555521.002 ställ en fråga nedan och andra användare kommer att svara dig
Duschsystem American Standard Manualer
25 Februari 2026
25 Februari 2026
25 Februari 2026
25 Februari 2026
25 Februari 2026
25 Februari 2026
25 Februari 2026
25 Februari 2026
25 Februari 2026
25 Februari 2026
Duschsystem Manualer
Nyaste Duschsystem Manualer
19 Februari 2026
18 Februari 2026
18 Februari 2026
18 Februari 2026
18 Februari 2026
17 Februari 2026
17 Februari 2026
17 Februari 2026
17 Februari 2026
17 Februari 2026