American Standard Townsend T353502.002 Bruksanvisning
American Standard Duschsystem Townsend T353502.002
Läs gratis den bruksanvisning för American Standard Townsend T353502.002 (4 sidor) i kategorin Duschsystem. Guiden har ansetts hjälpsam av 2 personer och har ett genomsnittsbetyg på 5.0 stjärnor baserat på 3 recensioner. Har du en fråga om American Standard Townsend T353502.002 eller vill du ställa frågor till andra användare av produkten? Ställ en fråga
Sida 1/4

- 1 -
Product names listed herein are trademarks of AS America, Inc.
© AS America, Inc. 2016
Thank you for selecting American Standard...
the benchmark of fine quality for over 100 years.
To ensure that your installation proceeds smoothly-please
read these instructions carefully before you begin.
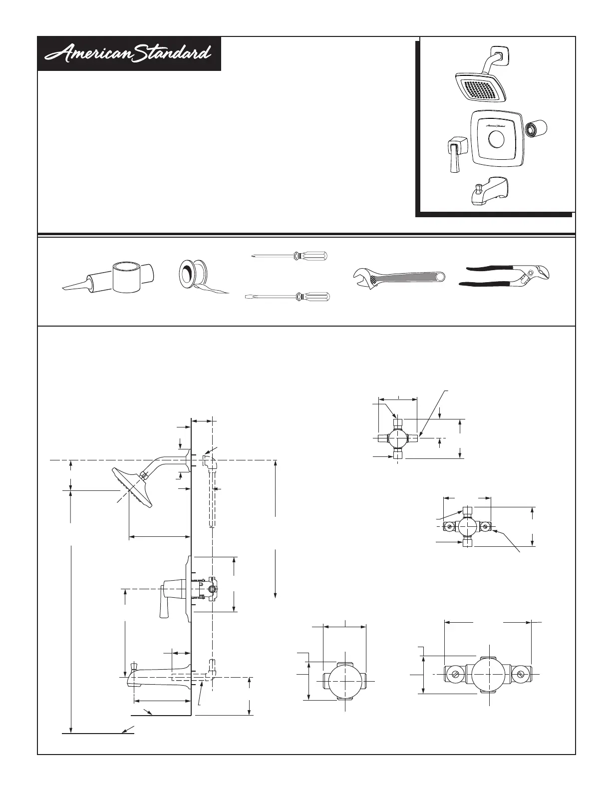
RECOMMENDED TOOLS
M965724 Rev. 1.0 (7/16)
ROUGHING-IN DIMENSIONS
TOWNSEND
®
BATH AND SHOWER
TRIM KIT
INSTALLATION
INSTRUCTIONS
T353.500
T353.501
T353.502
T353.507
T353.508
Plumbers’ Putty
or Caulking
Adjustable WrenchChannel Locks
Phillips Screwdriver
Certied to comply with ANSI A112.18.1M
• To assure proper positioning in relation to wall.
Note roughing-in dimensions.
Teon Tape
Flat Blade Screwdriver
THREADED INLETS (STOPS)
5-7/8"
(149 mm)
5-7/8"
(149 mm)
INLETS 1/2" NPT
(13 mm)
INLETS
1/2" NPT
(13 mm)
OUTLETS
1/2" NPT
(13 mm)
OUTLETS
1/2" NPT
(13 mm)
3-3/8"
(86 mm)
3-3/8"
(86 mm)
3-3/8"
(86 mm)
THREADED INLETS
4"
(102 mm)
BOTTOM OF TUB
74" (1880 mm)
FOR HEAD
CLEARANCE
18" (457 mm)
OPTIONAL
6.5" REF.
(165 mm)
1/2" (12 mm) NPT
1/2" (13 mm)
COPPER
7-1/4"
(184 mm)
OPTIONAL TO FINISHED
FLOOR USUALLY
BETWEEN 65'' AND 80''
(1651 AND 2032 mm)
TOP OF TUB RIM
SHR. 1/2" (13 mm) NOM.
COPPER SWEAT
TUB 1/2" (13 mm) NOM.
COPPER SWEAT
SHR. 1/2" (13 mm) NOM.
COPPER SWEAT
TUB 1/2" (13 mm) NOM.
COPPER SWEAT
4-1/16"
(103 mm)
4-1/16"
(103 mm)
INLETS
4-1/16"
(103 mm)
2"
(51 mm)
SWEAT
INLETS
SWEAT
INLETS (STOPS)
INLETS
1/2" (13 mm) NOM.
COPPER SWEAT
INLETS
1/2" (13 mm) NOM.
COPPER SWEAT
1-5/8" TO 3-1/4"
(41 TO 83 mm)
1-5/8" TO 3-1/4"
(41 TO 83 mm)
FINISHED WALL
3.3/8" (85 mm) REF.
7" (177 mm) REF.
2-9/16"
(65 mm)
1-1/2" REF.
(38 mm)
Produktspecifikationer
| Varumärke: | American Standard |
| Kategori: | Duschsystem |
| Modell: | Townsend T353502.002 |
Behöver du hjälp?
Om du behöver hjälp med American Standard Townsend T353502.002 ställ en fråga nedan och andra användare kommer att svara dig
Duschsystem American Standard Manualer
25 Februari 2026
25 Februari 2026
25 Februari 2026
25 Februari 2026
25 Februari 2026
25 Februari 2026
25 Februari 2026
25 Februari 2026
25 Februari 2026
25 Februari 2026
Duschsystem Manualer
Nyaste Duschsystem Manualer
19 Februari 2026
18 Februari 2026
18 Februari 2026
18 Februari 2026
18 Februari 2026
17 Februari 2026
17 Februari 2026
17 Februari 2026
17 Februari 2026
17 Februari 2026