Kernau KDI 4872 Bruksanvisning
Kernau
Diskmaskin
KDI 4872
Läs gratis den bruksanvisning för Kernau KDI 4872 (92 sidor) i kategorin Diskmaskin. Guiden har ansetts hjälpsam av 33 personer och har ett genomsnittsbetyg på 4.5 stjärnor baserat på 17 recensioner. Har du en fråga om Kernau KDI 4872 eller vill du ställa frågor till andra användare av produkten? Ställ en fråga
Sida 1/92

INSTRUKCJA OBSŁUGI
ZMYWARKI
KDI 4872
www.kernau.com
SZANOWNY KLIENCIE,
Dziękujemy za zainteresowanie naszą ofertą i gratulujemy wyboru.
Naszym celem jest zaoferowanie Wam produktów o wysokiej jakości,
które spełnią Wasze oczekiwania. Opisywane urządzenie zostało
wyprodukowane w nowoczesnych zakładach i dokładnie przetestowane
pod względem jakości. Niniejsza instrukcja została opracowana w celu
ułatwienia obsługi urządzenia, które wyprodukowano z wykorzystaniem
najnowszej technologii gwarantującej zaufanie i maksymalną wydajność.
Przed przystąpieniem do korzystania z urządzenia należy uważnie zapoznać
się z niniejszą instrukcją, ponieważ zawiera podstawowe informacje
dotyczące bezpiecznej instalacji, konserwacji i obsługi. W sprawie instalacji
urządzenia należy zwrócić się do najbliższego autoryzowanego serwisu.
UWAGA
Instrukcja zawiera ważne informacje dotyczące użytkowania i konserwacji
urządzenia, dlatego prosimy o uważne zapoznanie się z prostymi
instrukcjami i o przestrzeganie ich, co umożliwi Państwu osiąganie
znakomitych rezultatów użytkowania. Prosimy także o przechowywanie
poniższej instrukcji w bezpiecznym miejscu, bo można było z niej
skorzystać.
Producent nie ponosi odpowiedzialności za jakiekolwiek uszkodzenia
mienia lub osób powstałe w wyniku błędnego montażu lub niewłaściwego
użytkowania urządzenia.

PL
4
SPIS TREŚCI
1. INFORMACJE NA TEMAT BEZPIECZEŃSTWA .......................... 6
• Instruktaż uziemienia ............................................................................................... 6
• Utylizacja ................................................................................................................... 8
2. OPIS PRODUKTU ................................................................................... 9
3. INSTRUKCJA UŻYTKOWANIA ............................................................. 10
• 3.1. Napełnienie solą ............................................................................................... 10
• 3.2. Wskazówki użytkowania koszy ...................................................................... 11
4. KONSERWACJA ORAZ CZYSZCZENIE ZMYWARKI ...................... 14
• 4.1. Zewnętrzne dbanie o zmywarkę .................................................................... 14
• 4.2. Wewnętrzne dbanie o zmywarkę ................................................................... 14
• 4.3. Ogólne zasady dbania o zmywarkę ............................................................ 17
5. INSTRUKCJA INSTALACJI ZMYWARKI ........................................... 19
• 5.1. Podłączenie elektryczne .................................................................................. 19
• 5.2. Doprowadzenie i odprowadzenie wody ....................................................... 20
• 5.3. Podłączenie węży odprowadzających wodę .................................................. 21
• 5.4. Ustawienie urządzenia ..................................................................................... 22
• 5.5. Instalacja zmywarki wolnostojącej ................................................................ 22
• 5.6. Instalacja zmywarki do zabudowy ................................................................ 23
6. WSKAZÓWKI PODCZAS AWARII ....................................................... 28
7. ZAŁADUNEK KOSZY .............................................................................. 31
8. SKRÓCONA INSTRUKCJA OBSŁUGI ZMYWARKI ........................ 33

PL
5
9. INSTRUKCJA UŻYTKOWANIA ZMYWARKI .................................... 34
• 9.1. Panel sterujący ............................................................................................... 34
• 9.2. Zmiękczanie wody .......................................................................................... 36
• 9.3. Przygotowanie i załadunek naczyń do zmywarki ...................................... 37
• 9.4. Funkcja nabłyszczacza oraz detergentu ........................................................ 40
• 9.5. Uzupełnianie pojemnika na nabłyszczacz .................................................... 41
• 9.6. Uzupełnianie pojemnika na detergent ............................................................ 42
10. PROGRAMOWANIE ZMYWARKI ....................................................... 43
• 10.1. Tabela programów ......................................................................................... 43
• 10.2. Rozpoczęcie cyklu mycia ............................................................................. 44
• 10.3. Zmiana programu w czasie trwania cyklu mycia ................................... 44
• 10.4. Co zrobić gdy zapomniałeś włożyć naczynia ........................................... 44
11: KODY BŁĘDÓW ...................................................................................... 46
12: INFORMACJE TECHNICZNE ............................................................. 47
• Karta produktowa .................................................................................................... 48
UWAGA:
• Przeczytanie sekcji Wskazówki podczas awarii pomogą rozwiązać niektóre
problemy samodzielnie bez możności wzywania serwisu.
• Jeżeli opisane wskazówki nie rozwiążą problemu z urządzeniem prosimy
o skontaktowanie się z serwisem.
• Producent zgodnie z ciągłym rozwojem może wprowadzać modyfikacje
w urządzeniach bez informowania o tym.
• Jeżeli instrukcja została zgubiona lub jest nieaktualna, można otrzymać nową
instrukcję od producenta lub od sprzedawcy.

PL
6
ROZDZIAŁ 1: INFORMACJE NA TEMAT BEZPIECZEŃSTWA
UWAGA:
Zanim przystąpisz do użytkowania prosimy o zapoznanie sie z środkami ostrożności
podanymi poniżej.
• Instalacja oraz naprawa urządzenia może być podjęta jedynie przez
wykwalifikowanego serwisanta/instalatora.
• To urządzenie jest przeznaczone do użytku domowego lub w gospodarstwach
domowych.
• To urządzenie może być obsługiwane przez dzieci od 8 roku życia i wyżej, oraz
przez osoby z ograniczoną zdolnością fizyczną, czuciową lub psychiczną jeżeli
pozostają pod nadzorem osoby odpowiedzialnej lub otrzymali instrukcje dotyczące
bezpiecznego użytkowania i rozumieją związane z tym możliwe zagrożenia.
• Dzieci nie powinny bawić się w urządzeniem. Dzieci nie powinny wykonywać
procesu czyszczenia i konserwacji urządzenia bez nadzoru osoby dorosłej.
(EN60335-1) Niniejszy sprzęt nie jest przeznaczony do użytkowania przez osoby
(w tym dzieci) o ograniczonej zdolności fizycznej, czuciowej lub psychicznej
ani przez osoby nieposiadających doświadczenia lub znajomości sprzętu, chyba
że odbywa się to pod nadzorem lub zgodnie z instrukcją użytkowania sprzętu,
przekazanej przez osoby odpowiadające za ich bezpieczeństwo. ( IEC60335-1)
• Materiały opakowania mogą stwarzać zagrożenie dla dzieci!
• To urządzenie jest przeznaczone wyłącznie do użytku domowego. Celem uniknięcia
porażenia prądem nie zanurzaj urządzenia, przewodu lub wtyczki w wodzie lub
innym płynie.
• Wskazane jest odłączenie urządzenia od sieci elektrycznej podczas czyszczenia
i konserwacji.
• Do czyszczenia używaj miękkiej ściereczki zamoczonej w łagodnym detergencie,
następnie wytrzyj urządzenie suchą ściereczką.
Instruktaż uziemienia
• To urządzenie musi zostać uziemione. W przypadku nieprawidłowego działania
lub awarii, uziemienie zredukuje ryzyko porażenia prądem zapewniając mniejsze
napięcie elektryczne. To urządzenie jest wyposażone w wtyczkę przewodu
uziemiającego.
• Wtyczka musi zostać podłączona do odpowiedniego gniazdka, które jest
zainstalowane oraz uziemione zgodnie z lokalnymi rozporządzeniami.
• Nieprawidłowe uziemienie sprzętu może skutkować ryzykiem porażenia prądem.
• Jeżeli nie jesteś pewny prawidłowego uziemienia sprzętu, skonsultuj się
z wykwalifikowanym elektrykiem lub serwisantem.

PL
7
• Nie dokonuj żadnych zmian w wtyczce dołączonej do urządzenia jeżeli nie
mieści się w gniazdku – prawidłowe gniazdko powinno zostać zainstalowane
przez
wykwalifikowanego elektryka lub serwisanta.
• Nie niszcz, nie siedź lub nie stój na drzwiach lub koszach zmywarki.
• Nie należy obsługiwać urządzenia, jeżeli wszystkie panele obudowy nie zostaną
prawidłowo zamontowane.
• Podczas pracy zmywarki otwieraj drzwi bardzo ostrożnie, istnieje ryzyko wylania
się wody z wnętrza sprzętu.
• Nie umieszczaj i nie stój na otwartych drzwiach zmywarki. Urządzenie może
przechylić się do przodu.
Podczas załadunku naczyń do zmywarki:
- wszystkie ostre przedmioty umieść tak, aby nie uszkodziły uszczelki drzwi.
OSTRZEŻENIE:
Noże i inne ostre sztućce należy wkładać do kosza ostrzami skierowanym w dół lub
ustawiać poziomo.
• Niektóre detergenty aplikowane do zmywarki są silnie alkaiczne. Mogą być bardzo
niebezpieczne jeżeli zostaną połknięte. Unikaj kontaktu detergentu ze skórą oraz
oczami. Nie pozwól zbliżać się dziecku do zmywarki jeżeli drzwi są otwarte.
• Sprawdź, czy nie ma pozostałości po detergencie po zakończonym cyklu mycia
naczyń.
• Nie wkładaj plastikowych przedmiotów do zmywarki, chyba że posiadają one
oznaczenie „dishwasher safe” lub odpowiednik.
• Jeżeli posiadasz nie oznaczone przedmioty wykonane z tworzyw sztucznych bez
odpowiedniego oznaczenia, sprawdź rekomendacje producenta odnośnie mycia
w zmywarce.
• Używaj tylko detergentów oraz środków myjących rekomendowanych do używania
w zmywarkach automatycznych.
• Nigdy nie używaj mydła, płynu do prania lub płynu do mycia rąk w zmywarce.
• Drzwi zmywarki nie powinny zostawać otwarte, gdyż zwiększa to ryzyko
potknięcia się.
• Jeżeli przewód zasilający jest uszkodzony, musi zostać zastąpiony przez
producenta lub jego serwisanta lub osobę o podobnych kwalifikacjach, aby
uniknąć zagrożenia.
• Podczas instalacji przewód zasilający nie może być nadmiernie i niebezpieczne
zgięty lub spłaszczony.
• Nie manipuluj przy elementach sterujących.
• Urządzenie musi zostać podłączone do głównego zaworu wody używając nowego
zestawu węży. Nie używaj ponownie starego zestawu węzy.

PL
8
• By zaoszczędzić energię, urządzenie w trybie czuwania automatycznie wyłączy
się po 30 minutach bezczynności.
• Maksymalna pojemność to 10 kompletów naczyń.
• Maksymalne dopuszczalne ciśnienie wody na wlocie wynosi 10 bar (1 MPa).
• Minimalne dopuszczalne ciśnienie na wlocie wynosi 0,4 bar (0,04 MPa).
Utylizacja
• Do utylizacji opakowania i urządzenia należy udać się do centrum recyklingu.
Dlatego odetnij kabel zasilający oraz uniemożliw zamknięcie drzwi.
• Kartonowe opakowanie jest wyprodukowane z odzysku i powinno zostać
zutylizowane do punktu odbioru makulatury lub do miejsca recyklingu.
• Zapewniając odpowiednią utylizację urządzenia, pomagają Państwo zapobiec
potencjalnym negatywnym skutkom oddziaływania na środowisko i zdrowie
ludzkie, co może nastąpić przy niewłaściwej utylizacji tego urządzenia.
• W celu uzyskania szczegółowych informacji na temat usuwania zużytych
urządzeń prosimy o skierowanie się do administracji gminnej lub punktu
recyklingu.
• Utylizacja – nie należy wyrzucać tego urządzenia razem z odpadami
niesegregowanymi. Konieczna jest osobna zbiórka takich odpadów do utylizacji
(specjalne przetwarzanie).

PL
9
WAŻNE:
Aby uzyskać najlepszą wydajność zmywarki, przeczytaj całą instrukcję obsługi przed
pierwszym użyciem.
UWAGA:
*Zdjęcia w sekcji „Opis produktu” mają charakter poglądowy i mogą nie przedstawiać
dokładnego modelu produktu.
ROZDZIAŁ 2: OPIS PRODUKTU
Górne ramię myjące
Dozownik detergentu
Pojemnik na sól
Dolne ramie myjace
Zespół filtrów
Rura wewnętrzna
Szuflada na sztućce
Dolny kosz
Górne ramie spryskające
Górny kosz
Półka na kubki

PL
10
ROZDZIAŁ 3: INSTRUKCJA UŻYTKOWANIA
Zanim zaczniesz używać zmywarkę:
UWAGA:
Sprawdź sekcję Zmiękczanie wody w Rozdziale 9, podpunkt 2.
3.1. Napełnienie solą
Jeżeli Twój model zmywarki nie posiada opcji Zmiękczania wody możesz pominąć ta
sekcję.
Zawsze używaj soli przeznaczonej do zmywarek automatycznych. Pojemnik na sól
znajduje się pod dolnym koszem oraz powinien zostać uzupełniony w następujący
sposób:
UWAGA:
• Używaj tylko soli przeznaczonej dla zmywarek automatycznych!
Każdy inny rodzaj soli nieprzeznaczony do zmywarek, w szczególności sól kuchenna,
może uszkodzićzmiękczacz wody. W przypadku uszkodzenia spowodowanego
użyciem innej soli niż zalecanaproducent nie udziela żadnej gwarancji oraz nie ponosi
odpowiedzialności za powstałe szkody.
• Uzupełnij pojemnik na sól tylko przed uruchomieniem cyklu.
Zapobiegnie to rozsypaniu ziaren soli lub rozlaniu słonej wody (pozostających na dnie
urządzeniaprzez dowolny okres czasu) co może powodować korozję.
Postępuj zgodnie z krokami podanymi niżej podczas uzupełniania pojemnika na sól:
Inside Outside
01. Ustaw zmiękczanie wody
02. Uzupełnij sól do zmiękczania
03. Umieść naczynia w koszu
04. Napełnij dozownik detergentu

PL
11
1. Wyjmij dolny kosz oraz odkręć nakrętkę pojemnika na sól.
2. Umieść lejek (dołączony do urządzenia) w otworze i nasyp około 1.5kg soli do
zmywarek.
3. Uzupełnij pojemnik na sól do maksymalnego jego limitu. Przy uzupełnianiu
pojemnika na sól może wypłynąć trochę wody z pojemnika.
4. Po uzupełnieniu pojemnika na sól zakręć nakrętkę pojemnika.
5. Wskaźnika braku soli przestanie migać po uzupełnieniu pojemnika na sól, solą
przeznaczoną dozmywarek.
6. Po zakończeniu uzupełniania pojemnika na sól powinien zostać uruchomiony
cykl mycia (rekomendujemy krótki cykl). W przeciwnym razie system filtrujący,
pompa lub inne ważne częściurządzenia mogą ulec uszkodzeniom spowodowanym
zasoloną wodą. Takie działanie jest podstawądo nieudzielenia gwarancji.
UWAGA:
• Pojemnik na sól powinien być uzupełniany kiedy zaświeci się wskaźnik braku
soli na panelu sterującym ( ). Wskaźnik braku soli może nadal świecić pomimo
uzupełnionego pojemnika, jest to zależne od stopnia rozpuszczenia soli.
• Jeżeli model zmywarki zakupiony przez Państwa nie posiada na panelu
sterującego
wskaźnika braku soli (niektóre modele), można oszacować okres po
którym trzeba uzupełnić pojemnik na sól poprzez ilość cykli myjących wykonanych
do tej pory (prosimy nieuwzględniać tego punktu przy pierwszym uruchomieniu
urządzenia)
.
• Jeżeli podczas napełniania pojemnika, sól została rozsypana rekomendujemy
włączenie programu namaczania lub szybkiego programu w celu usunięcia jej.
3.2. Wskazówki użytkowania koszy
Regulacja górnego kosza
Typ: 1
Wysokość górnego kosza może zostać łatwo dopasowana dla wyższych naczyń
umieszczonych w dolnym lub górnym koszu.
Postępuj zgodnie z poniższą instrukcją, aby wyregulować wysokość górnego kosza:

PL
12
4
1
pozycja niska
Wysuń górny kosz
2
Zdemontuj górny kosz
3
Zamontuj kosz na wyższe lub
niższe rolki
pozycja wyższa
Wsuń górny kosz
Typ: 2
1 2
Aby ustawić kosz wyzej, podnieś
kosz do góry trzymając go po srodku
z obu stron, dopóki kosz zablokuje sie
w wyższym położeniu.
Podnoszenie uchwytu regulatora
nie jest konieczne.
Aby obniżyć kosz, podnieś uchwyty
po każdej stronie, aby zwolnić kosz
i opuścić go do dolnej pozycji.

PL
13
Składanie półek na kubki
Przy umieszczaniu wysokich naczyń w górnym koszu, można stworzyć dodatkową
przestrzeń podnosząc półkę na kubki do góry. Następnie można oprzeć wysokie szklanki
lub inne przedmioty o złożone półki.
Można również łatwo je rozłożyć, gdy potrzebne są dodatkowe półki.
Składanie separatorów na talerze
Separatory dolnego kosza służą do przytrzymywania talerzy i talerzyków. Można je
obniżyć, aby uzyskać więcej miejsca na większe naczynia.
podnoszenie separatorów obniżanie separatorów

PL
14
ROZDZIAŁ 4: KONSERWACJA ORAZ CZYSZCZENIE ZMYWARKI
4.1. Zewnętrzne dbanie o zmywarkę
Drzwi oraz uszczelka
Należy regularnie czyścić uszczelkę miękką, wilgotną ściereczką, aby usunąć osady
po jedzeniu. Podczas załadunku zmywarki resztki jedzenia i napojów mogą kapać na
ścianki drzwi zmywarki. Te elementy znajdują się na zewnątrz komory myjącej i nie
ma do nich dostępu woda z ramion myjących. Wszelkie osady powinny zostać usunięte
przed zamknięciem drzwi zmywarki.
Panel sterujący
Jeżeli wymagane jest oczyszczenie panelu sterującego, rekomendujemy przetrzeć go
jedynie miękką, wilgotną ściereczką.
UWAGA:
W celu uniknięcia wnikania wody do zamka lub komponentów elektrycznych zmywarki
nie należy używać środków czyszczących w sprayu.
Nigdy nie używaj ściernych środków czyszczących ani zmywaków na powierzchniach
zewnętrznych zmywarki, gdyż mogą one porysować wykończenie. Niektóre ręczniki
papierowe również mogą zarysować lub pozostawić ślady na powierzchni.
4.2. Wewnętrzne dbanie o zmywarkę
System filtrujący
System filtrujący znajdujący się w podstawie komory myjącej zatrzymuje grube
zanieczyszczenia z cyklu mycia naczyń. Zebrane zanieczyszczenia mogą spowodować
zatkanie filtrów. Zalecamy regularne sprawdzanie stanu systemu filtrującego, w razie
potrzeby wyczyść filtr pod bieżącą wodą.
Aby wyczyścić filtr postępuj zgodnie z instrukcją przedstawioną poniżej:
*Przedstawione grafiki są grafikami poglądowymi.

PL
15
UWAGA:
• Nie dokręcaj nadmiernie filtrów. Ustaw filtry z powrotem bezpiecznie
w sekwencji, w przeciwnymrazie duże zanieczyszczenia mogą dostać się do
systemu i spowodować zablokowanie.
• Nigdy nie używaj zmywarki bez filtrów. Niewłaściwa wymiana filtra może
obniżyć poziom działaniaurządzenia i uszkodzić naczynia oraz przybory
kuchenne.
1 2
Przytrzymaj filtr i obróć go w kierunku
przeciwnym do ruchu wskazówek zegara,
aby odblokować filtr. Unieś filtr do góry
i wyjmij go ze zmywarki.
3 4
Główny filtr może być wyciągnięty
z dolnej części filtru. Filtr zgrubny
mozna odłączyć od filtra gównego,
delikatnie ściskając wypustki
u góry i odciągając go.
Większe kawałki jedzenia należy usunąć
pod bieżącą wodą. Natomiast mniejsze
zanieczyszczenia należy usunąć przy
pomocy szczotki myjącej.
Zamontuj filtr w kolejności odwrotnej
do demontażu, wsuń wkład filtra
i obróć zgodnie z ruchem wskazówek
zegara do strzałki zamykania.
Main filter
Fine filter
Coarse filter
Open

PL
16
Ramiona myjące
Konieczne jest regularne czyszczenie ramion myjących zmywarki, ponieważ chemikalia
z twardej wody zatykają dysze oraz łożyska ramion myjących.
Aby wyczyścić ramiona myjące, postępuj zgodnie z poniższą instrukcją:
Umyj ramiona spryskające w ciepłej
wodzie z dodatkiem płynu do naczy.
Użyj miękkej szczotki do wyczyszczenia
dysz. Zainstaluj ramiona sportem do
zmywarki po uprzednim dokładnym
opłukaniu ich.
2
3
1
Aby zdjąć dolne ramię spryskujące,
wyciągnij ramię spryskające do góry.
Aby zdjąć górne ramię spryskujące,
przytrzymaj nakrętkę w środku i obróć
ramię w kierunku przeciwnym do ruchu
wskazówek zegara.

PL
17
4.3. Ogólne zasady dbania o zmywarkę
Zabezpieczenie przed zamarzaniem
W okresie zimowym zmywarkę do naczyń należy zabezpieczyć przez zamarzaniem.
Każdorazowo po zakończonym cyklu mycia naczyń postępuj w następujący sposób:
• Odłącz zasilanie elektryczne zmywarki od źródła zasilania.
• Zakręć dopływ wody oraz odłącz rurę wlotową wody od zaworu wody.
• Spuść wodę z rury wlotowej i zaworu wodnego – zalecamy podstawienie miski,
aby zebraćwodę.
• Podłącz ponownie rurę wlotową do zaworu wody.
• Wyjmij filtr z dna komory myjącej i użyj gąbki do wchłonięcia pozostałej wody.
Po każdym cyklu mycia
Każdorazowo po zakończonym cyklu mycia naczyń, odłącz dopływ wody do zmywarki
oraz pozostaw lekko uchylone drzwi, aby wilgoć i zapachy nie zostały uwięzione
w komorze myjącej.
Odłącz zasilanie
Przed przystąpieniem do procesu czyszczenia i konserwacji zmywarki, zawsze należy
odłączyć zmywarkę od sieci zasilającej.
Nie używaj rozpuszczalników lub ściernych środków czyszczących
Do czyszczenia zewnętrznych części zmywarki oraz gumowych komponentów
nie należy używać produktów na bazie rozpuszczalników oraz ściernych środków
czyszczących. Zalecamy używania miękkiej ściereczki nasączonej wodą z łagodnym
środkiem czyszczącym.
Do usunięcia plam lub kropek z powierzchni zewnętrznej, zalecamy używania ściereczki
namoczonej w wodzie z dodatkiem octu lub specjalnego płynu do czyszczenia zmywarek.
Gdy zmywarka jest nieużytkowana przed dłuższy czas
Rekomendujemy włączenie pustej zmywarki na cykl mycia, po zakończeniu należy
odłączyć zmywarkę od sieci zasilającej, zakręcić dopływ wody oraz pozostawić lekko
uchylone drzwi zmywarki, gdy wiemy, iż urządzenie nie będzie użytkowane przez
dłuższy czas. Zapobiegnie to uszkodzeniom uszczelki umieszczonej w drzwiach oraz
powstawaniu nieprzyjemnych zapachów we wnętrzu zmywarki.

PL
18
Przenoszenie urządzenia
Jeżeli konieczne jest przeniesienie/przetransportowanie zmywarki, zalecamy, aby
zmywarka pozostała w pozycji stojącej. W przypadku konieczności możliwe jest
przetransportowanie zmywarki w pozycji leżącej na tylnej ścianie.
Uszczelki
Jednym z czynników powstawania nieprzyjemnych zapachów w środku zmywarki są
pozostałości żywności osadzającej się na uszczelkach. Regularne czyszczenie uszczelki
za pomocą wilgotnej ściereczki zapobiegnie powstawaniu nieprzyjemnych zapachów.

PL
19
OSTRZEŻENIE:
Ryzyko porażenia prądem
Przed przystąpieniem do procesu instalacji zmywarki należy odłączyć główne zasilanie.
Niezastosowanie się do tego może grozić śmiercią lub porażeniem prądem.
UWAGA:
Instalacja rur oraz sprzętów elektrycznych powinna zostać wykonana przez
wykwalifikowanych instalatorów/serwisantów.
5.1. Podłączenie elektryczne
UWAGA:
Dla własnego bezpieczeństwa:
• Nie używaj przedłużacza ani przejściówki do tego urządzenia.
• W żadnym wypadku nie demontuj uziemienia z przewodu zasilającego.
Wymogi elektryczne
Przed podłączeniem zmywarki do sieci zasilającej zalecamy sprawdzenie tabliczki
znamionowej, aby poznać napięcie znamionowe oraz podłączyć zmywarkę do
odpowiedniego zasilania elektrycznego. Zalecamy użyć wymaganego bezpiecznika
10A/13A/16A, bezpiecznika opóźnienia czasowego lub wyłącznika oraz zapewnij
osobny obwód obsługujący to urządzenie.
Podłączenie elektryczne
Upewnij się, że napięcie i częstotliwość mocy są zgodne z wartościami podanymi na
tabliczce znamionowej. Wtyczkę należy wkładać tylko do prawidłowo uziemionego
gniazdka elektrycznego. Jeśli gniazdo elektryczne, do którego planowane jest
podłączenie, nie jest odpowiednie dla tej wtyczki, zlecamy wymianę gniazda zamiast
używania adapterów itp., ponieważ mogą one skutkować przegrzaniem obwodu oraz
ryzykiem poparzeń.
UWAGA:
Przed użyciem upewnij się, iż istnieje odpowiednie uziemienie.
ROZDZIAŁ 5: INSTRUKCJA INSTALACJI ZMYWARKI

PL
20
5.2. Doprowadzenie i odprowadzenie wody
Podłączenie zimnej wody
Podłącz wąż doprowadzający zimną wodę do gwintowanego złącza ¾ oraz upewnij się,
iż został on prawidłowo zamocowany. Jeżeli rury wodociągowe są nowe lub nie były
używane przez dłuższy czas, pozwól wodzie spłynąć, aby upewnić się, iż podłączona
woda jest czysta. Jest to konieczne, aby uniknąć ryzyka zablokowania wlotu wody
i uszkodzenia urządzenia.
Informacje o bezpiecznym wężu zasilającym
Bezpieczny wąż zasilający zbudowany jest z podwójnych ścian. Ten system pozwala na
interwencję poprzez zablokowanie przepływu wody w przypadku pęknięcia węża lub
gdy przestrzeń powietrzna znajdująca się pomiędzy wężem zasilającym a zewnętrznym
ryflowanym wężem, jest pełna wody.
UWAGA:
Wąż przymocowany do spryskiwacza zlewu kuchennego może pęknąć, jeśli zostanie
zainstalowany do tej samej linii wodnej co zmywarka. Jeśli Twój zlew posiada taki
spryskiwacz, zaleca się odłączenie węża i zaślepienie otworu.
Jak podłączyć wąż bezpieczeństwa:
• Wyciągnij całkowicie węże bezpieczeństwa ze schowka znajdującego się z tyłu
zmywarki.
• Dokręć śruby węża bezpieczeństwa do kranu gwintem ¾.
• Odkręć dopływa wody zanim zostanie uruchomiona zmywarka.
Jak odłączyć wąż bezpieczeństwa:
• Odłącz dopływ wody.
• Odkręć śruby węża bezpieczeństwa od kranu.
wąż bezpieczeństwa
zwykły wąż zasilający

PL
21
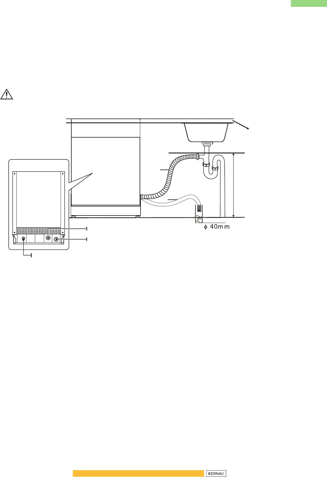
5.3. Podłączenie węży odprowadzających wodę
Włóż wąż odpływowy do rury odpływowej o minimalnej średnicy 4cm, lub podłącz
bezpośrednio do odpływu zlewu (syfonu) uważając, aby wąż nie odkształcił się lub nie
został zgięty. Wysokość rury spustowej nie może być większa niż 100cm. Wolny koniec
węża nie może być zanurzony w wodzie, aby nie doprowadzić do cofania się węża.
UWAGA:
Zamocuj wąż odpływowy w pozycji A lub B.
Jak odprowadzić nadmiar wody z węży spustowych
Jeżeli odpływ zlewu (syfon) znajduje się powyżej 100cm od poziomu podłogi, nadmiar
wody w wężach spustowych nie może być odprowadzany do odpływu zlewu. Konieczne
będzie spuszczanie nadmiaru wody z węży do miski lub odpowiedniego pojemnika
trzymanego poniżej poziomu odpływu zlewu.
Odprowadzenie wody
Podłącz wąż odprowadzający, wąż musi zostać prawidłowo podłączony, aby uniknąć
przecieków wody. Należy upewnić się, że wąż odprowadzający wodę nie jest skręcony
lub spłaszczony.
Przedłużenie węża odpływowego
Jeżeli jest potrzebne przedłużenie węża odpływowego upewnij się, że zostanie użyty
podobny wąż spustowy. Nie może być dłuższy niż 4 metry, w przeciwnym razie efekt
czyszczenia zmywarki może zostać zredukowany.
B
A
MAX 1000mm
Blat kuchenny
Wąż spustowy
Tył zmywarki
Dopływ wody
Rura spustowa
Główne przewody

PL
22
Podłączenie syfonu
Przyłącze odpływowe (syfon) musi znajdować się na wysokości mniejszej niż 100cm
od dna zlewu. Wąż spustowy musi zostać odpowiednio podłączony do syfonu.
5.4. Ustawienie urządzenia
Ustaw urządzenie w żądanym miejscu. Tył zmywarki powinien opierać się o ścianę,
a boki zmywarki wzdłuż ścianek mebli kuchennych lub ścian. Zmywarka jest
wyposażona
w węże doprowadzające lub odprowadzające wodę, które można ustawić
po prawej lub po lewej stronie urządzenia, aby ułatwić prawidłowy montaż.
Wypoziomowanie urządzenia
Kiedy urządzenie jest ustawione, można przystąpić do regulacji poziomu zmywarki.
Wysokość zmywarki może być obniżona lub podniesiona poprzez regulację
przykręcenia
nóżek. Urządzenie nie powinno być przechylone więcej niż 2°.
UWAGA:
Odnosi się wyłącznie do wolnostojącej zmywaki.
5.5. Instalacja zmywarki wolnostojącej
Ustawienie urządzenia pomiędzy istniejącą zabudową
kuchenną
Wysokość zmywarki (845mm), została zaprojektowana
tak, aby pozwolić na ustawienie zmywarki pomiędzy
istniejącymi szafkami o tej samej wysokości
w nowocześnie wyposażonych kuchniach. Nóżki
zmywarki można regulować, aż osiągnie się pożądaną
wysokość urządzenia. Laminowany blat górny urządzenia nie wymaga szczególnej
troski, ponieważ jest odporny na ciepło, zarysowania oraz plamy.

PL
23
Ustawienie pod istniejącym blatem kuchennym
W większości nowocześnie wyposażonych kuchni
znajduje się tylko jeden blat, pod którym zamontowane
są szafki i urządzenia elektryczne. W przypadku
montażu
zmywarki pod istniejącym blatem należy
zdemontować blat roboczy zmywarki, odkręcając śruby
pod tylną krawędzią blatu (a).
UWAGA:
Po demontażu blatu roboczego zmywarki, śruby musza
zostać wkręcone z powrotem pod tylną krawędź sprzętu (b).
Wysokość zmywarki zostanie wtedy zmniejszona do 815mm, zgodnie
z Międzynarodowymi Przepisami (ISO), a zmywarka perfekcyjnie zmieści się pod
blatem kuchennym z zabudowy meblowej.
5.6. Instalacja zmywarki do zabudowy
Krok 1: Wybór najlepszego miejsca dla zmywarki
Miejsce montażu zmywarki powinno znajdować się w pobliżu istniejących węży
doprowadzających i odprowadzających wodę oraz przewodu zasilającego.
Poniżej przedstawione są ilustracje wymiarów szafki i pozycji montażowej zmywarki
do zabudowy:
• Zmywarkę należy zamontować tak, aby pozostało mniej niż 5mm między górą
urządzenia a szafkioraz zewnętrznymi drzwiami wyrównanymi do szafki.
a
a
b
b
90 °
90 °
580mm
820mm
100
Wejście elektroniczne,
wodne oraz sciekowe.
Przestrzeń między dołem
szafki a podłogą.
600 mm(
for 60cm model )
80
450
mm (for 45cm model )

PL
24
• Jeżeli zmywarka jest montowana w rogu zabudowy meblowej, należy upewnić się,
iż będziewystarczająco dużo miejsca, aby móc otworzyć drzwi sprzętu.
UWAGA:
Zależnie gdzie znajduje się gniazdko elektryczne, konieczne będzie wycięcie otworu
w przeciwnej ściance meblowej.
Krok 2: Instalacja i wymiary panelu ozdobnego
*Panel ozdobny może być przygotowany na podstawie rysunków instalacji.
Model częściowo zintegrowany
Rozłącz filcowe plastry klejące A i B.
Jeden plaster przymocuj do panelu ozdobnego, a drugi do zewnętrznej strony drzwi
zmywarki (rys. A).
Po ustawieniu panelu ozdobnego, przykręć panel na drzwi zmywarki za pomocą
dołączonych śrub i wkrętów (rys. B).
Meble zabudowyZmywarka
Drzwi
zmywarki
Min 5cm
przestrzeni
A
Plaster klejący
Plaster klejący
B
2. Przekręć 4 dłuższe śruby
1. Przekręć 4 krótsze śruby

PL
25
Model w całości zintegrowany
Przykręć uchwyt do panelu ozdobnego oraz umieść uchwyt w szczelinach w drzwiach
zmywarki (rys. A).
Po ustawieniu panelu ozdobnego, przykręć panel do drzwi zmywarki za pomocą
dołączonych śrub i wkrętów (rys. B).
Krok 3: Regulacja sprężyny naciągu drzwi
• Sprężyny drzwi są ustawione fabrycznie
w celu zapewnienia prawidłowego
naciągu
drzwi zewnętrznych. Po
zainstalowaniu panelu ozdobnego należy
wyregulować napięcie sprężyny drzwi.
Obróć śrubę regulacyjną, znajdująca się
na tylnej ścianie zmywarki na spodzie, aby
naprężyć lub poluźnić sprężynę.
• Naciąg sprężyny drzwi jest prawidłowy,
gdy drzwi przy pełnym otworzeniu
pozostają w pozycji poziomej oraz gdy
po lekkim uniesieniu drzwi samoistnie się
zamykają.
Krok 4: Instalacja zmywarki
• Przymocuj pasek kondensatu pod powierzchnią blatu roboczego. Należy upewnić
się, że pasekkondensatu jest na równi z krawędzią blatu roboczego.
• Podłącz wąż doprowadzający wodę do zaworu wody zimnej.
• Podłącz wąż odprowadzający wodę.
• Podłącz przewód zasilania do sieci elektrycznej (gniazdko).
B
2. Przykręć 4 dłuższe śruby
A
1. Przykręć 4 krótsze śruby

PL
26
• Ustaw zmywarkę w odpowiednim miejscu.
• Wypoziomuj zmywarkę. Tylne nóżki można regulować z przodu zmywarki,
obracając śrubę zlokalizowaną na środku podstawy zmywarki. Aby wyregulować
przednie nóżki, należy użyć płaskiego śrubokręta i odkręcić nóżki dopóki zmywarka
nie znajdzie się w poziomie.
• Przykręć panel ozdobny do zewnętrznej strony drzwi zmywarki.
• Wyreguluj napięcie sprężyn drzwiowych za pomocą klucza imbusowego, obracając
go zgodnie z ruchem wskazówek zegara, aby dokręcić lewe i prawe sprężyny drzwi.
Nie zastosowanie się dotego może spowodować uszkodzenie urządzenia.
• Zmywarka musi zostać odpowiednio zabezpieczona na miejscu docelowym.
Można dokonaćtego na dwa sposoby:
1. Normalna powierzchnia robocza: Umieść hak instalacyjny w szczelinie płaszczyzny
bocznej i przymocuj go do powierzchni roboczej za pomocą śrub do drewna.
2. Blat z marmuru lub granitu: zamocuj bok zmywarki śrubą.
Krok 5: Wypoziomowanie zmywarki
Zmywarka musi być wypoziomowana, aby zapewnić prawidłowe działanie stojaków na
naczynia oraz odpowiednią wydajność zmywania.
• Aby sprawdzić czy zmywarka jest dobrze wypoziomowana, należy umieścić
poziomicę nadrzwiach oraz prowadnicy stojaka wewnątrz komory myjącej
(jak pokazano na poniższejilustracji).
• Wypoziomuj zmywarkę, regulując trzy nóżki poziomujące.
• Podczas procesu poziomowania urządzenia należy uważać, aby zmywarka się nie
przewróciła.
A
B

PL
27
UWAGA:
Maksymalna wysokość regulacji nóżek wynosi 5cm.
UP
DOWN
Sprawdź poziom
od przodu do tyłu
Sprawdź poziom
od prawej do lewej strony

PL
28
ROZDZIAŁ 6: WSKAZÓWKI PODCZAS AWARII
Przed wezwaniem do serwisu
Przeglądanie tabel na kolejnych stronach może uchronić Cię przed wezwaniem
do serwisu:
PROBLEM
MOŻLIWE
PRZYCZYNY
CO NALEŻY ZROBIĆ
Zmywarka nie uruchamia się.
Przepalony bezpiecznik lub
zadziałał wyłącznik obwodu.
Wymień bezpiecznik lub zresetuj
wyłącznik automatyczny. Usuń
wszelkie inne urządzenia dzielące
ten sam obwód ze zmywarką.
Zasilanie nie jest włączone.
Upewnij się, że zmywarka
jest włączona, a drzwi są
dobrze zamknięte. Upewnij
się, że przewód zasilający jest
prawidłowo podłączony do
gniazdka ściennego.
Ciśnienie wody jest niskie.
Sprawdź, czy dopływ wody jest
prawidłowo podłączony i czy
woda jest włączona.
Drzwi zmywarki nie są
prawidłowo zamknięte.
Pamiętaj, aby prawidłowo
zamknąć drzwi i zatrzasnąć je.
Woda nie jest
odpompowywana ze
zmywarki.
Skręcony lub uwięziony wąż
spustowy.
Sprawdź wąż odpływowy.
Filtr zatkany. Sprawdź filtr.
Zatkany zlew kuchenny.
Sprawdź zlew kuchenny, aby
upewnić się, że dobrze woda
odpływa. Jeśli problem polega
na tym, że zlewozmywak nie
odprowadza wody, możesz
potrzebować hydraulika, a nie
serwisanta do zmywarek.
Piana w komorze.
Niewłaściwy detergent.
Używaj tylko specjalnego
detergentu do zmywarek, aby
uniknąć mydlin. W takim
przypadku otwórz zmywarkę
i pozwól mydlinom odparować.
Dodaj 1 galon zimnej wody na
dno zmywarki. Zamknij drzwi
zmywarki, a następnie wybierz
dowolny cykl. Początkowo
zmywarka zmywa wodę. Otwórz
drzwi po zakończeniu etapu
opróżniania i sprawdź, czy piany
zniknęły. Powtórzyć w razie
potrzeby.
Rozlany nabłyszczacz.
Zawsze natychmiast wycieraj
rozlany nabłyszczacz.

PL
29
Poplamione wnętrze
komory.
Użycie detergentu
zawierającego barwnik.
Upewnij się, że detergent nie
zawiera barwnika.
Biały osad na wewnętrznej
powierzchni zmywarki.
Twarda woda.
Do czyszczenia wnętrza użyj
wilgotnej gąbki z detergentem
do zmywarek i załóż gumowe
rękawice. Nigdy nie używaj
innych środków czyszczących
niż detergenty do zmywarek,
ponieważ może to spowodować
pienienie.
Na sztućcach znajduje się
rdza.
Sztućce nie posiadają
nierdzewnej powierzchni.
Unikaj wkładania sztućców
nie posiadających nierdzewnej
powierzchni.
Program nie został
uruchomiony po
uzupełnieniu pojemnika na
sól – ślady soli przedostały
się do cyklu mycia.
Zawsze uruchamiaj zmywarkę
po uzupełnieniu pojemnika na
sól. Nie wybieraj funkcji Turbo
(jeśli jest) po uzupełnieniu soli.
Pokrywka zmiękczacza wody
jest poluzowana.
Sprawdź czy pokrywka
zmiękczacza wody jest
dokręcona.
Odgłosy stukania
w zmywarce.
Ramie spryskujące stuka
w naczynie znajdujące się
w koszu.
Przerwij program
i poprzekładaj naczynia tak,
aby nie utrudniały pracy
ramienia spryskującego.
Odgłosy grzechotania
w zmywarce.
Naczynia leżą luźno
w zmywarce.
Przerwij program
i poprzekładaj naczynia.
Odgłosy stukania w rurach
doprowadzających wodę.
Może to być spowodowane
instalacją rurociągów.
Nie ma to wpływu na
funkcjonowanie zmywarki.
Jeżeli problem się pojawia
skontaktuj się z hydraulikiem.
Naczynia po cyklu mycia
są nadal zabrudzone.
Naczynia nie zostały
odpowiednio umieszczone.
Zobacz Rozdział 7:
Przygotowanie oraz załadunek
naczyń.
Program okazał się być za
słaby.
Wybierz intensywniejszy
program.
Pobrano zbyt mało
detergentu
Użyj większej ilości detergentu
lub zmień detergent.
Naczynia blokują ruch
ramion spryskujących.
Przerwij program
i poprzekładaj naczynia tak,
aby nie utrudniały pracy
ramienia spryskującego.
Zespół filtra jest zabrudzony
lub nie jest poprawnie
zamontowany. Może to
powodować zatkanie się dysz
myjących.
Wyczyść i /lub zamontuj
poprawnie filtr.
Wyczyść dysze myjące.

PL
30
Mglisty osad na szklanych
naczyniach.
Połączenie miękkiej wody
oraz zbyt dużej ilości
detergentu.
Jeżeli posiadasz miękką
wodę, używaj mniejszej ilość
detergentu oraz wybieraj.
Na naczyniach
i szklankach pojawiają się
białe plamy.
Twarda woda przyczynia
się do pojawiania się
na naczyniach osadu
wapiennego.
Użyj większej ilości
detergentu.
Czarne lub szare ślady na
naczyniach.
Aluminiowe sprzęty ocierały
się o naczynia.
Użyj łagodnego środka
ściernego, aby usunąć te
zabrudzenia.
Detergent nie został
pobrany podczas cyklu
mycia.
Naczynia blokowały
pojemnik detergentu.
Poprzekładaj naczynia tak, aby
nie blokowały pojemnika na
detergent.
Naczynia nie suszą się.
Nieodpowiednie ułożenie
naczyń.
Ułóż naczynia w odpowiedni
sposób.
Został wybrany
nieodpowiedni program.
Przy krótkim programie jest
niższa temperatura mycia,
zmniejszając przy tym
efektywność zmywania.
Wybierz program z dłuższym
czasem cyklu mycia.
Używanie sztućców
z powłoką o niskiej jakości.
Takie przedmioty utrudniają
odpływ wody oraz proces
suszenia. Sztućce lub naczynia
tego typu nie nadają się do
mycia w zmywarce.
Naczynia zostały wyjęte zbyt
wcześnie.
Nie opróżniaj zmywarki
zaraz po zakończonym
cyklu mycia. Uchyl lekko
drzwi zmywarki, aby para
wodna mogła się wydostać.
Wyjmij naczynia dopiero,
gdy osiągną bezpieczną
temperaturę (aby nie
poparzyły rąk). W pierwszej
kolejności opróżnij dolny kosz,
zapobiegnie to kapaniu wody
na suche, czyste naczynia
z górnego kosza.

PL
31
ROZDZIAŁ 7: ZAŁADUNEK KOSZY ZGODNIE Z EN50242
Górny kosz:
Dolny kosz:
1
2
3
4
5
6
Kubki
Małe miski
Spodki
Średnie miski
Szklanki
Przedmiot
Duże miski
Numer
6
4
3
3
3
3
3
2
2
1
1
1
1
7
8
9
10
Talerzyk deserowy
Talerze obiadowe
Talerze głębokie
Przedmiot
Półmiski owalne
Numer
5
1
0
8 7
8 9
7
7
7
7

PL
32
1
7
4
5
3
8 6
6
2
3
1 32 6444 5 7 8
1
2
3
4
5
6
7
8
Łyżki do zupy
Widelce
Noże
Łyżeczki
Łyżeczki deserowe
Łyżki
do serwowania
Widelce
do serwowania
Przedmiot
Chochelki do sosów
Numer
Szuflada na sztućce:
Kosz na sztućce może mieć 2 pozycje:
Pozycja pierwsza: podnieś lewy kosz do
góry, lewy kosz jest odsunięty na bok.
Pozycja druga: ustaw lewy kosz
w dolnej pozycji, a lewy kosz będzie
płaski.
Informacje do testów porównawczych zgodnie
z EN 50242:
• Pojemność: 10 kompletów naczyń
• Pozycja górnego kosza: dolna pozycja
• Program: ECO
• Ustawienie nabłyszczacza: 6
• Ustawienie zmiękczacza: H3

PL
33
ROZDZIAŁ 8: SKRÓCONA INSTRUKCJA OBSŁUGI ZMYWARKI
Prosimy o zapoznanie się z poniższą treścią instrukcji obsługi:
5
2
Usuń większe pozostałości pożywienia
3
4
Uzupełnij pojemnik na detergenty
środkami przeznaczonymi do zmywarek
Inside
Odpowiednio załaduj kosze naczyniami
Wybierz program i włącz zmywarkę
Outside
1
Zaistaluj zmywarke zgodnie z instrukcją (Rodział 5)

PL
34
ROZDZIAŁ 9: INSTRUKCJA UŻYTKOWANIA ZMYWARKI
9.1. Panel sterujący
1 9 6
7
2 3 4 5
8
STEROWANIE - PRZYCISKI
PRZYCISK WŁĄCZENIA/WYŁĄCZENIA
Naciśnij ten przycisk, aby włączyć lub
wyłączyć zmywarkę (ekran się zaświeci
lub zgaśnie).
PROGRAM
Wybierz odpowiedni program,
ikonka wybranego programu zostanie
podświetlona.
ALL IN 1
Wybierz odpowiedni program,
ikonka wybranego programu
zostanie podświetlona.
ZAŁADUNEK GÓRNEGO / DOLNEGO
KOSZA
Naciśnij ten przycisk, aby wybrać
załadunek górnego lub dolnego kosza,
odpowiednie ikony zostaną podświetlone.
OPÓŹNIENIE STARTU
Naciśnij ten przycisk, aby opóźnić
godzinę rozpoczęcia cyklu mycia. Proces
zmywania można opóźnić do 24h. Jedno
naciśniecie tego przycisku opóźnia
rozpoczęcie cyklu mycia o jedną godzinę.
WYŚWIETLACZ
IKONA ZAŁADUNKU GÓRNEGO KOSZA
Wybierając opcję Załadunku
górnego kosza, dysza zraszająca
górnego kosza jest aktywowana.
Dolna dysza nie będzie działać.
IKONA ZAŁADUNKU DOLNEGO KOSZA
Wybierając opcję Załadunku
dolnego kosza, dysza zraszająca
dolnego kosza jest aktywowana.
Górna dysza nie będzie działać.

PL
35
IKONY OSTRZEGAWCZE
Nabłyszczacz
Jeżeli podświetli się ta
ikona, znaczy to, iż poziom
nabłyszczacza w zmywarce
jest niski i trzeba uzupełnić
pojemnik nabłyszczacza.
Sól
Jeżeli podświetli się ta ikona,
znaczy to, iż poziom soli
w zmywarce jest niski i trzeba
uzupełnić pojemnik soli.
Kran
Jeżeli podświetli się ta ikona,
znaczy to, iż dopływ wody
został zamknięty.
IKONY PROGRAMÓW
Program Auto
Dla lekko, normalnie lub bardzo
zabrudzonych naczyń z lub bez
zaschniętych resztek jedzenia.
Program Intensywny
Bardzo zabrudzone naczynia
w tym garnki i patelnie
z zaschniętymi resztkami
jedzenia.
Program Normalny
Dla normalnie zabrudzonych
naczyń, takich jak talerze,
szklanki, kubki, garnki oraz
lekko zabrudzonych patelń.
Program ECO
Jest to standardowy program,
odpowiedni dla normalnie
zabrudzonych naczyń. Jest to
najbardziej wydajny program
w połączeniu do zużytej energii
elektrycznej oraz wody.
Program Szkło
Dla lekko zabrudzonych naczyń
oraz przedmiotów szklanych.
Program 90 minut
Dla normalnie zabrudzonych
naczyń wymagających
szybkiego cyklu mycia.
Program Szybki
Krótki cykl mycia dla lekko
zabrudzonych naczyń, które nie
wymagają suszenia.
ECO

PL
36
WYŚWIETLACZ
Pokazuje pozostały czas do
zakończenia cyklu mycia,
opóźnienie startu, kody błędów
itp.
9.2. Zmiękczanie wody
Opcja zmiękczania wody musi zostać ustawiona ręcznie, używając do tego tabeli
twardości wody.
Zmiękczanie wody zostało stworzone, do tego aby usunąć minerały oraz sole mineralne
z wody, które mogą mieć szkodliwy lub niekorzystny wpływ na działanie urządzenia.
Im większy poziom minerałów znajdujących się w wodzie tym wskaźnik twardości
wody będzie wyższy.
Opcja zmiękczania wody powinna zostać dostosowana do twardości wody występującej
w Twojej okolicy.
Administracja gminna Twojej okolicy może podać jaki wskaźnik twardości występuje
w Twojej okolicy.
Programowanie zużycia soli
Zmywarka jest tak zaprojektowana, iż zezwala na dostosowanie ilości zużycia soli na
podstawie twardości wody użytkowanej. Ma to na celu optymalizację i dostosowanie
poziomu zużycia soli.
Postępuj zgodnie z zamieszczoną poniżej instrukcją programowania zużycia soli:
• Włącz urządzenie.
• Naciśnij przycisk Programu dłużej niż 5 sekund, aby uruchomić programowanie
zmiękczania wody w ciągu 60 sekund od momentu włączenia urządzenia.
• Naciśnij przycisk Programu aby wybrać odpowiednie ustawienie zgodnie
z twardością wody występującą w Twojej okolicy. Ustawienie zostanie zmienione
w poniższej sekwencji:
H1->H2->H3->H4->H5->H6
• Naciśnij przycisk Włączenia/Wyłączenia urządzenia, aby zakończyć proces
programowania.
Tabela ustawień poziomu twardości wody:
Poziom
twardości
wody (Mmol/l)
Niemieckie
stopnie
twardości dH
Francuskie
stopnie
twardości dF
Brytyjskie
stopnie
twardości dE
Wskaźnik
poziomu
twardości
wody
Zużycie soli
(gram/cykl)
0-0,94 0-5 0-9 0-6 H1 0
1,0-2,0 6-11 10-20 7-14 H2 9
2,1-3,0 12-17 21-30 15-21 H3 12
3,1-4,0 18-22 31-40 22-28 H4 20
4,1-6,0 23-34 41-50 29-42 H5 30
6,1-9,8 35-55 51-60 43-69 H6 60
1 dH=1.25 Mmol/l 1 dE= 1.78 Mmol/l 1 fH=0.178 Mmol/l

PL
37
UWAGA:
Twardość wody jest fabrycznie ustawiona na poziom: H3.
Prosimy o skontaktowanie się z gminną administracją, aby uzyskać informacje o poziome
twardości wody występującej w Twojej okolicy.
Prosimy o sprawdzenie punktu 3.1. Napełnianie solą Rozdział 3, jeżeli wskaźnik
poziomu soli jest włączony.
UWAGA:
Jeżeli model zmywarki wybrany przez Ciebie nie posiada funkcji zmiękczania wody,
pomiń ten punkt.
Twardość wody zmienia się w zależności od miejsca. Jeśli do zmywarki zostanie
doprowadzona twarda woda, na naczyniach lub sztućcach będą gromadzić się osady.
Urządzenie jest wyposażone w specjalny zmiękczacz, który wykorzystuje pojemnik na
sól specjalnie zaprojektowany do usuwania wapna oraz minerałów z wody.
9.3. Przygotowanie i załadunek naczyń do zmywarki
• Zastanów się nad zakupem przyborów kuchennych, które można zidentyfikować
jako bezpiecznie do mycia w zmywarce.
• Dla poszczególnych rzeczy (naczyń) wybierz program o najniższej możliwej
temperaturze.
• Aby uniknąć uszkodzenia, nie wyjmuj szklanek oraz sztućców natychmiast
po zakończeniu cyklu mycia.
Do mycia następujących sztućców/naczyń
Naczynia, które nie nadają się do mycia w zmywarce:
• Sztućce z drewnianymi, porcelanowymi rogami lub raczkami z masy perłowej.
• Przedmioty wykonane z tworzyw sztucznych, które nie są odporne na wysoka
temperaturę.
• Starsze sztućce, które posiadają przyklejone części.
• Przedmioty związanych z naczyniami lub sztućcami.
• Naczynia wykonane ze stopu cyny i ołowiu oraz z miedzi.
• Naczynia kryształowe.
• Elementy stalowe narażone na rdzewienie.
• Talerze drewniane.
• Przedmioty wykonane z włókien syntetycznych.
Naczynia, które mają ograniczoną przydatność:
• Niektóre rodzaje szkła mogą stać się „mgliste” po większej ilość myć w zmywarce.
• Srebrne lub aluminiowe części mają tendencję do odbarwień podczas cyklu mycia.
• Glazurowane wzory mogą zblednąć jeśli są często myte w zmywarce.

PL
38
Zalecenia jak prawidłowo umieszczać naczynia do mycia w zmywarce
Usuń większe pozostałości po pożywieniu z naczyń. Namocz przypalone/zaschnięte
garnki lub patelnie. Nie jest koniecznym spłukiwanie naczyń pod bieżącą wodą.
W celu najlepszego działania zmywarki, postępuj zgodnie z poniższymi wskazówkami.
Wymiary i wygląd koszy i szuflad na sztućce mogą się różnić w zależności od wybranego
modelu zmywarki.
Umieszczaj naczynia w następujący sposób:
• Przedmioty takie jak: kubki, szklanki, garnki, patelnie umieszczaj otworem w dół.
• Zakrzywione przedmioty lub posiadające wnęki należy ładować tak, aby woda
mogła swobodnie z nich spłynąć.
• Wszystkie naczynia powinny zostać umieszczone, tak aby się nie
wywracały/przemieszczały.
• Wszystkie naczynia powinny zostać umieszczone w taki sposób, aby nie utrudniały
pracy ramionom spryskującym.
• Naczynia z wgłębieniami powinny być umieszczane otworami w dół, aby woda
nie pozostawała w środku.
• Naczynia i przedmioty kuchenne nie mogą leżeć na sobie lub się zasłaniać.
• W celu uniknięcia uszkodzeń naczynia szklane nie powinny się dotykać.
• Górny kosz zmywarki jest przeznaczony do delikatniejszych lżejszych naczyń
takich jak: kubki, szklanki, filiżanki.
• Noże z długim ostrzem umieszczone w pionie stwarzają niebezpieczeństwo.
• Długie i/lub ostre przedmioty powinny być umieszczane w pozycji leżącej
w górnym koszu.
• Ważnym jest nie przeładowywać zmywarki – aby zmywarka działania poprawnie
oraz miała rozsądne zużycie energii.
UWAGA:
Bardzo małe przedmioty nie powinny być umieszczane w zmywarce, gdyż istnieje
ryzyko, że wypadną z kosza.
Wyjmowanie naczyń z zmywarki
W celu zapobiegnięcia kapania wody z górnego kosza na dolny kosz, zawsze opróżniaj
w pierwszej kolejności dolny kosz a następnie górny kosz.
UWAGA:
Naczynia oraz sztućce są gorące!
W celu uniknięcia uszkodzeń lub poparzeń, nie wyciągaj naczyń
i przedmiotów ze zmywarki natychmiast po zakończonym cyklu mycia.
Rekomendujemy odczekanie co najmniej 15 minut po zakończonym cyklu
mycia.

PL
39
Załadunek górnego kosza
Górny kosz zmywarki został tak
zaprojektowany, aby utrzymać bardziej
delikatniejsze i lżejsze naczynia, takie
jak kubki, szklanki, talerzyki deserowe,
małe miski oraz płytkie patelnie (jeśli nie są zbyt brudne). Zalecamy ustawianie naczyń
tak, by nie poruszały się pod wpływem pracy ramion spryskujących.
Załadunek dolnego kosza
Zalecamy umieszczanie w dolnym
koszu zmywarki dużych naczyń lub
trudniejszych do wyczyszczenia: garnki,
patelnie, pokrywki, duże talerze oraz
miski; jak pokazano na grafice poniżej.
Polecanym miejscem do umieszczanie
pokrywek oraz dużych talerzu są boki
koszy, aby nie blokowały naczynia pracy ramion spryskujących. Maksymalny rozmiar
naczynia umieszczonego z przodu zmywarki, tak aby pojemnik na detergent nie został
zablokowany to 19cm.
Załadunek szuflady na sztućce
Sztućce powinny zostać umieszczone w koszu oddzielnie w odpowiedniej pozycji, tak
aby nie były zgromadzone wszystkie w jednym miejscu, ponieważ może to wpłynąć na
proces mycia (sztućce po zakończonym myciu mogą okazać się brudne).
UWAGA:
Nie pozwól, aby jakikolwiek przedmiot wystawał poza dolną
krawędź kosza. Zawsze ładuj ostre sztućce ostrym końcem
w dół np. nóż obiadowy, widelec. Dłuższe i/lub ostre przedmioty
powinny zostać umieszczone w górnym koszu w pozycji leżącej.
Dla najlepszego efektu zmywania, zalecamy umieszczanie naczyń zgodnie
z standardowymi opcjami ładowania przedstawionymi w Rozdziale 7 ZAŁADUNEK
KOSZY ZGODNIE Z EN50242.

PL
40
9.4. Funkcja nabłyszczacza oraz detergentu
Płyn nabłyszczający jest uwalniany podczas ostatniego spłukiwania naczyń, aby
zapobiec formowaniu się kropelek wody, które mogą pozostawiać plamki i kropki.
Również podnosi to jakość suszenia naczyń poprzez pozwalanie wodzie na swobodne
spłynięcie z naczyń. Twoja zmywarka została zaprojektowana do używania płynnego
nabłyszczacza.
UWAGA:
Używaj wyłącznie płynów przeznaczonych do nabłyszczania. Nie uzupełniaj pojemnika
na nabłyszczacz środkami nieprzeznaczonymi do nabłyszczania lub innymi substancjami
(np. płynem do czyszczenia zmywarki, płynem do mycia naczyń itp.).
Kiedy należy uzupełniać pojemnik na nabłyszczacz
O ile lampka wskaźnika braku nabłyszczacza na panelu sterowania nie jest włączona,
zawsze można oszacować pozostałą ilość nabłyszczacza na podstawie koloru wskaźnika
poziomu umieszczonego obok nasadki.
Kiedy pojemnika na płyn nabłyszczający jest pełny, wskaźnik będzie koloru bardzo
ciemnego. Rozmiar ciemnej kropki zmniejsza się podczas gdy ilość płynu nabłyszczacza
maleje. Poziom nabłyszczacza nie powinien być mniejsze niż ¼ objętości pojemnika.
Kiedy ilość płynu nabłyszczającego maleje, rozmiar kropki zmienia się na wskaźniku
optycznym, co pokazuje poniższa grafika:
Funkcja detergentu
Składniki chemiczne znajdujące się w detergencie są niezbędne do zmycia, zmiażdżenia
i usunięcia wszelkich zabrudzeń nagromadzonych w zmywarce. Większość detergentów
dostępnych na rynku są przystosowane do usunięcia zanieczyszczeń.
UWAGA:
Odpowiednie użycie detergentu:
• Używaj detergentów wyprodukowanych jedynie do użytku w zmywarkach.
Przechowuj detergent w miejscu suchym.
• Nie dodawaj detergentu w proszku do zmywarki, jeżeli urządzenie nie będzie
włączone od razu po załadunku.
Detergent do zmywarek jest żrący! Przechowuj
detergent do zmywarki poza zasięgiem dzieci.
Pełny zbiornik
3/4 zbiornika 1/2 zbiornika 1/4 zbiornika
Pusty zbiornik

PL
41
9.5. Uzupełnianie pojemnika na nabłyszczacz
Regulacja pojemnika płynu nabłyszczającego
Pojemnik posiada 6-ścio stopniową regulację. Zarówno zalecana jak
i ustawiona fabrycznie regulacja jest na poziomie 4. Jeżeli naczynia
nie suszą się odpowiednio lub są poplamione zmień ustawienia
regulacji na numer wyższy dopóki naczynia nie będą czyste.
Zmniejsz ustawienia regulacji na numer niższy jeżeli na naczyniach
pojawią się klejące, białe ślady lub niebieskawy film na szkle lub
nożach.
3
Załóż oraz zakręc zakrętkę w prawo
(strzałka zamknięte).
Ostrożnie wlej nabłyszczacz do
pojemnika, uważając aby się nie rozlał.
UWAGA:
Wytrzyj rozlany nabłyszczacz ściereczką,
aby zapobiec nadmiernemu pienieniu
się podczas cyklu mycia.
1 2
Aby otworzyć pojemnik, przekręć
zakrętkęw lewo (strzałka otwarte)
i podnieś nakrętkę.
Wskaźnik poziomu nabłyszczacza

PL
42
1 2
Naciśnij zatrzask, aby otworzyć
A
B
3
Naciśnij zatrzask na pojemniku
detergentu, aby otworzyć pojemnik.
Dodaj detergent do większej
komory A, do zużycia w głównym
cyklu mycia. Aby wymyć ciężko
zabrudzone naczynia dodaj trochę
detergentu do mniejszej komory B,
do zużycia w wstępnym cyklu mycia.
Zamknij pokrywę i przytrzymaj
dopóki się nie zamknię.
9.6. Uzupełnianie pojemnika na detergent
UWAGA:
• Należy pamiętać, że w zależności od zabrudzenia wody ustawienie może być inne.
• Należy przestrzegać zaleceń producenta znajdujących się na opakowaniach
detergentów.

PL
43
ROZDZIAŁ 10: PROGRAMOWANIE ZMYWARKI
10.1. Tabela programów
Poniższa tabela prezentuje, jaki program będzie najlepszy dla występującego poziomu
zabrudzenia na naczyniach oraz jaka ilość detergentu jest potrzebna. Dodatkowo
przedstawione są informacje o programach.
UWAGA:
ECO EN 50424: Ten program to cykl testowy. Informacje do testu porównywalności
zgodnie z EN 5024.
PROGRAM OPIS CYKLU
ZUŻYCIE
DETERGENTU
WSTEPNE/GŁÓWNE
CZAS
TRWANIA
CYKLU (MIN)
POBÓR
ENERGII NA
CYKL (KWH)
POBÓR
WODY NA
CYKL (L)
NABŁYSZCZACZ
AUTO
Mycie wstępne 45℃
Automatyczne mycie
45-55℃
Płukanie
Płukanie 65℃
Suszenie
3/22g Lub
Tabletka 3w1
150 0.9~1.3 9.5~13 Tak
INTENSYWNY
Mycie wstępne 50℃
Mycie 60℃
Płukanie
Płukanie
Płukanie 70℃
Suszenie
3/22g Lub
Tabletka 3w1
170 1.4 15.5 Tak
NORMALNY
Mycie wstępne 45℃
Mycie 55℃
Płukanie
Płukanie 65℃
Suszenie
3/22g Lub
Tabletka 3w1
180 1.1 12 Tak
ECO EN 50242
Mycie wstępne
Mycie 45℃
Płukanie 65℃
Suszenie
3/22g Lub
Tabletka 3w1
195 0.74 8 Tak
90 MINUT
Mycie wstępne
Mycie 45ºC
Płukanie 65ºC
Suszenie
25g Lub
Tabletka 3w1
90 1.15 11.5 Tak
SZKŁO
Mycie wstępne
Mycie 40℃
Płukanie
Płukanie 60℃
Suszenie
3/22g Lub
Tabletka 3w1
125 0.75 12 Tak
SZYBKI
Mycie 45℃
Płukanie 50℃
Płukanie 55℃
20g 30 0.7 10 Nie
ECO

PL
44
10.2. Rozpoczęcie cyklu mycia
• Wysuń górny i dolny kosz zmywarki, załaduj naczyniami i wsuń do środka
zmywarki.
• Dodaj detergentu do pojemnika na detergent.
• Podłącz zmywarkę do sieci elektrycznej. Upewnij się, że dopływ wody jest
włączony.
• Otwórz drzwi zmywarki, naciśnij przycisk Włączania/Wyłączania.
• Wybierz program, zostanie podświetlony wybrany program.
• Zamknij drzwi zmywarki, urządzenie po chwili rozpocznie cykl mycia.
10.3. Zmiana programu w czasie trwania cyklu mycia
Program mycia naczyń może zostać zmieniony, jeżeli aktualny cykl nie trwa zbyt
długo, w przeciwnym razie detergent mógł zostać już pobrany, a zmywarka mogła już
odprowadzić wodę z mycia. Jeżeli tak się stało, zmywarka musi zostać zresetowana,
a pojemnik na detergent uzupełniony raz jeszcze.
Aby zresetować zmywarkę, postępuj zgonie z punkami poniżej:
1. Lekko uchyl drzwi, aby zatrzymać zmywarkę, po zaprzestaniu działania ramion
spryskujących można szerzej otworzyć drzwi zmywarki.
2. Naciśnij przycisk wyboru programów dłużej niż 3 sekundy, urządzenie zostanie
przełączone w tryb czuwania.
3. Możesz zmienić program na pożądany cykl mycia.
10.4. Co zrobić gdy zapomniałeś włożyć naczynia
Jeżeli zapomniałeś włożyć jakiegoś naczynia do zmywarki, możesz go dołożyć w trakcie
trwania cyklu zanim zmywarka pobierze detergent.
Poniżej instrukcja postepowania w takim przypadku:
1. Lekko uchyl drzwi, aby zatrzymać zmywarkę.
2. Po zaprzestaniu działania ramion spryskujących otwórz szeroko drzwi zmywarki.
3. Włóż naczynie do odpowiedniego kosza.
4. Zamknij drzwi zmywarki.
5. Zmywarka ponownie rozpocznie cykl mycia.
3 sec

PL
45
UWAGA:
Otwieranie zmywarki w połowie cyklu jest niebezpieczne,
ze względu na uwolnioną gorącą parę, która może poparzyć.
Lampka kontrolna zaświeci się podczas programu zmywania,
następnie będzie migać przez 5 minut i zgaśnie po zakończeniu
programu.

PL
46
UWAGA:
Jeżeli wystąpi przelanie, zalecane jest odcięcie głównego zaworu wodnego zanim
skontaktujesz się z serwisem.
Jeżeli w komorze myjącej znajduje się woda z powodu przepełnienia lub niewielkiego
wycieku, wodę należy usunąć przez ponownym uruchomieniem zmywarki.
ROZDZIAŁ 11: KODY BŁĘDÓW
Jeżeli urządzenie ulegnie awarii, na wyświetlaczu pojawi się odpowiedni kod błędu,
identyfikując:
KOD ZNACZENIE
MOŻLIWA
PRZYCZYNA
E1
Dłuższy czas pobierania
wody.
Zawór wody jest
zamknięty, lub przepływ
wody jest ograniczony, lub
ciśnienie wody zbyt niskie.
E3
Nie osiąga wymaganej
temperatury.
Wadliwe działanie
elementu grzejnego.
E4 Przelanie.
Niektóre elementy
zmywarki przeciekają.
E8
Błąd orientacji zaworu
rozdzielczego.
Przerwa w obwodzie
lub przerwa w zaworze
rozdzielczym.
E9
Naciskanie przycisku
dłużej niż 30 sekund.
Woda lub inna substancja
znajduje się na przycisku.

PL
47
ROZDZIAŁ 12: INFORMACJE TECHNICZNE
550mm
1150mm
448mm
815mm

PL
48
KARTA PRODUKTOWA
PRODUCENT
KERNAU
MODEL
KDI 4872
POJEMNOŚĆ ZNAMIONOWA
10 kompletów naczyń
KLASA ENERGETYCZNA
(1)
A++
ROCZNE ZUZYCIE ENERGII
(2)
211 kWh
ZUŻYCIE ENERGII NA CYKL
0.74 kWh
POBÓR MOCY W TRYBIE WYŁĄCZENIA
0.45 W
POBÓR MOCY W TRYBIE CZUWANIA
0.49 W
ROCZNE ZUŻYCIE WODY
(3)
2240 L
KLASA SUSZENIA
(4)
A
STANDARDOWY CYKL MYCIA
(5)
ECO 45℃
CZAS TRWANIA STANDARDOWEGO CYKLU MYCIA
195 minut
POZIOM HAŁASU
44 dB
RODZAJ
Do zabudowy
CZY MOŻE ZOSTAĆ UMIESZCZONA W ZABUDOWIE
Tak
POBÓR ENERGII
1760-2100 W
NAPIĘCIE ZNAMIONOWE/CZĘSTOTLIWOŚĆ
220-240V /50Hz
CIŚNIENIE WODY
0.04.-1.0MPa=0.4-10 bar
1
A+++ (największa wydajność) do D (najmniejsza wydajność).
2
Zużycie energii na podstawie 280 standardowych cykli czyszczenia przy użyciu
napełniania zimną wodą i zużycia w trybach niskiej mocy. Rzeczywiste zużycie energii
będzie zależeć od sposobu użyt-kowania urządzenia.
3.
Zużycie wody na podstawie 280 standardowych cykli czyszczenia. Rzeczywiste
zużycie wody będzie zależeć od sposobu użytkowania urządzenia.
4
A (największa wydajność) do G (najmniejsza wydajność).
5
Ten program nadaje się do czyszczenia normalnie zabrudzonych naczyń i jest to
najbardziej wydajny program pod względem łącznego zużycia energii i wody dla tego
rodzaju zastawy stołowej.
Arkusz karty energetycznej zmywarki do naczyń dla gospodarstw domowych zgodnie z
dyrektywą UE 1016/2010 i 1059/2010:

INSTRUCTION MANUAL
DISHWASHER
KDI 4872
www.kernau.com

CONTENTS
1. SAFETY INFORMATION ........................................................................ 52
• Earthing Instructions ............................................................................................... 52
• Disposal ..................................................................................................................... 53
2. PRODUCT OVERVIEW ........................................................................... 54
3. USING YOUR DISHWASHER ............................................................... 55
• 3.1. Loading The Salt Into The Softener .......................................................... 55
• 3.2. Basket Used Tips ............................................................................................ 56
4. MAINTENANCE AND CLEANING ....................................................... 59
• 4.1. External Care ................................................................................................... 59
• 4.2. Internal Care .................................................................................................... 59
• 4.3. Caring For The Dishwasher .......................................................................... 62
5. INSTALLATION INSTRUCTION ........................................................... 63
• 5.1. About Power Connection ............................................................................... 63
• 5.2. Water Supply And Drain ............................................................................... 63
• 5.3. Connection Of Drain Hoses .......................................................................... 64
• 5.4. Position The Appliance ................................................................................... 65
• 5.5. Free Standing Installation .............................................................................. 66
• 5.6. Built-In Installation (for the integrated model) .......................................... 67
6. TROUBLESHOOTING TIPS ................................................................... 71
7. LOADING THE BASKETS ACCORDING TO EN50242 .................. 74
8. QUICK USER GUIDE .............................................................................. 76

9. USING YOUR DISHWASHER ................................................................ 77
• 9.1. Control Panel ................................................................................................... 77
• 9.2. Water Softener ................................................................................................. 79
• 9.3. Preparing And Loading Dishes ..................................................................... 80
• 9.4. Function Of The Rinse Aid And Detergent .............................................. 83
• 9.5. Filling The Rinse Aid Reservoir ................................................................. 84
• 9.6. Filling The Detergent Dispenser ................................................................... 85
10. PROGRAMMING THE DISHWASHER .............................................. 86
• 10.1. Wash Cycle Table ......................................................................................... 86
• 10.2. Starting A Cycle Wash ................................................................................. 87
• 10.3. Changing The Program Mid-cycle .............................................................. 87
• 10.4. Forget To Add A Dish ............................................................................... 87
11: ERROR CODES ...................................................................................... 89
12: TECHNICAL INFORMATION ............................................................. 90
• PRODUCT FICHE .................................................................................................. 91
NOTE:
• Reviewing the section on troubleshooting Tips will help you solve some common
problems by yourself.
• If you cannot solve the problems by yourself, please ask for help from a professional
technician.
• The manufacturer, following a policy of constant development and updating of the
product, may make modifications without giving prior notice.
• If lost or out-of-date, you can receive a new user manual from the manufacturer
or responsible vendor.

EN
52
CHAPTER 1: SAFETY INFORMATION
WARNING:
When using your dishwasher, follow the precautions listed below:
• Installation and repair can only be carried out by a qualified technician
• This appliance is intended to be used in household and farm houses.
• This appliance can be used by children aged from 8 years and above and persons
with reduced physical, sensory or mental capabilities or lack of experience
and
knowledge if they have been given supervision or instruction concerning use
of the
appliance in a safe way and understand the hazards involved.
• Children shall not play with the appliance. Cleaning and user maintenance shall
not be done by children without supervision. (For EN60335-1) This appliance
is not intended for use by persons (including children ) with reduced physical,
sensory or mental capabilities, or lack of experience and knowledge, unless
they have been given supervision or instruction concerning use of the appliance
by a person responsible for their safety. (For IEC60335-1)
• Packaging material could be dangerous for children!
• This appliance is for indoor household use only. To protect against the risk
of electrical shock, do not immerse the unit, cord or plug in water or other liquid.
• Please unplug before cleaning and performing maintenance on the appliance.
• Use a soft cloth moistened with mild soap, and then use a dry cloth to wipe it again.
Earthing Instructions
• This appliance must be earthed. In the event of a malfunction or breakdown, earthing
will reduce the risk of an electric shock by providing a path of least resistance
of electric current. This appliance is equipped with an earthing conductor plug.
• The plug must be plugged into an appropriate outlet that is installed and earthed
in accordance with all local codes and ordinances.
• Improper connection of the equipment-earthing conductor can result in the risk
of an electric shock.
• Check with a qualified electrician or service representative if you are in doubt
whether the appliance is properly grounded.
• Do not modify the plug provided with the appliance; If it does not fit the outlet.
• Have a proper outlet installed by a qualified electrician.
• Do not abuse, sit on, or stand on the door or dish rack of the dishwasher.
• Do not operate your dishwasher unless all enclosure panels are properly in place.
• Open the door very carefully if the dishwasher is operating, there is a risk of water
squirting out.
• Do not place any heavy objects on or stand on the door when it is open. The appliance
could tip forward.

EN
53
When loading items to be washed:
- Locate sharp items so that they are not likely to damage the door seal.
WARNING:
Knives and other utensils with sharp points must be loaded in the basket with their
points facing down or placed in a horizontal position.
• Some dishwasher detergents are strongly alkaline. They can be extremely dangerous
if swallowed. Avoid contact with the skin and eyes and keep children away from
the dishwasher when the door is open.
• Check that the detergent powder is empty after completion of the wash cycle.
• Do not wash plastic items unless they are marked “dishwasher safe” or the equivalent.
• For unmarked plastic items not so marked, check the manufacturer’s
recommendations.
• Use only detergent and rinse agents recommended for use in an automatic
dishwasher.
• Never use soap, laundry detergent, or hand washing detergent in your dishwasher.
• The door should not be left open, since this could increase the risk of tripping.
If the supply cord is damaged, it must be replaced by the manufacturer or its
service agent or a similarly qualified person in order to avoid a hazard.
• During installation, the power supply must not be excessively or dangerously bent
or flattened.
• Do not tamper with controls.
• The appliance needs to be connected to the main water valve using new hose sets.
Old sets should not be reused.
• To save energy, in stand by mode, the appliance will switch off automatically while
there is no any operation in 30 minutes .
• The maximum number of place settings to be washed is 10.
• The maximum permissible inlet water pressure is 1MPa.
• The minimum permissible inlet water pressure is 0.04MPa.
Disposal
• For disposing of package and the appliance please go to a recycling center. Therefore
cut off the power supply cable and make the door closing device unusable.
• Cardboard packaging is manufactured from recycled paper and should be disposed
in the waste paper collection for recycling.
• By ensuring this product is disposed of correctly, you will help prevent potential
negative consequences for the environment and human health, which could
otherwise be caused by inappropriate waste handling of this product.
• For more detailed information about recycling of this product, please contact your
local city office and your household waste disposal service.
• DISPOSAL: Do not dispose this product as unsorted municipal waste. Collection of
such waste separately for special treatment is necessary.

EN
54
IMPORTANT:
To get the best performance from your dishwasher, read all operating instructions before
using it for the first time.
NOTE:
*Pictures are only for reference, different models may be different. Please prevail in kind.
CHAPTER 2: PRODUCT OVERVIEW
Top spray arm
Dispenser
Salt container
Lower spray arm
Filter assembly
Inner pipe
Cutlery rack
Lower basket
upper spray arm
Upper basket
Cup rack

EN
55
CHAPTER 3: USING YOUR DISHWASHER
Before using your dishwasher:
NOTE:
Please check the section 1 “Water Softener” of Chapter 9. If you need to set the water
softener.
3.1. Loading The Salt Into The Softener
If your model does not have any water softener, you may skip this section. Always use
salt intended for dishwasher use.
The salt container is located beneath the lower basket and should be filled as explained
in the following:
WARNING:
• Only use salt specifically designed for dishwashers use!
Every other type of salt not specifically designed for dishwasher use, especially table
salt, will damage the water softener. In case of damages caused by the use of unsuitable
salt the manufacturer does not give any warranty nor is liable for any damages caused.
• Only fill with salt before running a cycle.
This will prevent any grains of salt or salty water, which may have been spilled, remaining
on the bottom of the machine for any period of time, which may cause corrosion.
Please follow the steps below for adding dishwasher salt:
Inside Outside
1. Set the water softener
2. Loading the salt Into the softener
3. Loading the basket
4. Fill the dispenser

EN
56
1. Remove the lower basket and unscrew the reservoir cap.
2. Place the end of the funnel (supplied) into the hole and pour in about 1.5kg
of dishwasher salt.
3. Fill the salt container to its maximum limit with water, It is normal for a small
amount of water to come out of the salt container.
4. After filling the container, screw back the cap tightly.
5. The salt warning light will stop being after the salt container has been filled with
salt.
6. Immediately after filling the salt into the salt container, a washing program should
be started (We suggest to use a short program). Otherwise the filter system,
pump or other important parts of the machine may be damaged by salty water.
This is out of warranty.
NOTE:
• The salt container must only be refilled when the salt warning light ( ) in the
control panel comes on. Depending on how well the salt dissolves, the salt warning
light may still be on even though the salt container is filled.
• If there is no salt warning light in the control panel (for some Models), you can
estimate when to fill the salt into the softener by the cycles that the dishwasher has
run.
• If salt has spilled, run a soak or quick program to remove it.
3.2. Basket Used Tips
Adjusting the upper basket
Type: 1
The height of the upper basket can be easily adjusted to accommodate taller dishes
in either the upper or lower basket.
To adjust the height of the upper rack, follow these steps:

EN
57
4
1
lower position
Pull out the upper basket.
2
Remove the upper basket.
3
Re-attach the upper basket to upper
or lower rollers.
upper position
Push in the upper basket.
Type: 2
1 2
To raise the upper basket , just lift
the upper basket at the center of
each side until the basket locks into
place in the upper position. It is not
necessary to lift the adjuster handle.
lift the To lower the upper basket ,
adjust handles on each side to
release the basket and lower it to
the lower position.

EN
58
Folding back the cup shelves
To make room for taller items in the upper basket, raise the cup rack upwards. You can
then lean the tall glasses against it. You can also remove it when it is not required for use.
Folding back the rack shelves
The spikes of the lower basket are used for holding plates and a platter. They can be
lowered to make more room for large items.
raise upwards fold backwards

EN
59
CHAPTER 4: MAINTENANCE AND CLEANING
4.1. External Care
The door and the door seal
Clean the door seals regularly with a soft damp cloth to remove food deposits. When
the dishwasher is being loaded, food and drink residues may drip onto the sides of the
dishwasher door. These surfaces are outside the wash cabinet and are not accessed by
water from the spray arms. Any deposits should be wiped off before the door is closed.
The control panel
If cleaning is required, the control panel should be wiped with a soft damp cloth only.
WARNING:
To avoid penetration of water into the door lock and electrical components, do not use
a spray cleaner of any kind.
Never use abrasive cleaners or scouring pads on the outer surfaces because they may
scratch the finish. Some paper towels may also scratch or leave marks on the surface.
4.2. Internal Care
Filtering system
The filtering system in the base of the wash cabinet retains coarse debris from the washing
cycle. The collected coarse debris may cause the filters to clog. Check the condition of
the filters regularly and clean them if necessary under running water.
Follow the steps below to clean the filters in the wash cabinet.
*Pictures are only for reference, different models of the filtering system and spray
arms may be different.

EN
60
WARNING:
• Do not over tighten the filters. Put the filters back in sequence securely, otherwise
coarse debris could get into the system and cause a blockage.
• Never use the dishwasher without filters in place. Improper replacement of the
filter may reduce the performance level of the appliance and damage dishes and
utensils.
1 2
Hold the coarse filter and rotate it
anticlockwise to unlock the filter.
Lift the filter upwards and out of
the dishwasher.
3 4
The fine filter can be pulled off the
bottom of the filter assembly.
The coarse filter can be detached
from the main filter by gently
squeezing the tabs at the top and
pulling it away.
Larger food remnants can be
cleaned by rinsing the filter under
running water.
For a more thorough clean, use a
soft cleaning brush.
Reassemble the filters in the reverse
order of the disassembly, replace the
filter insert, and rotate clockwise to
the close arrow.
Main filter
Fine filter
Coarse filter
Open

EN
61
Spray arms
It is necessary to clean the spray arms regularly for hard water chemicals will clog the
spray arm jets and bearings.
To clean the spray arms, follow the instructions below:
Wash the arms in soapy and warm
water and use a soft brush to clean
the jets. Replace them after rinsing
them thoroughly.
2
3
1
To remove the lower spray arm, pull
out the spray arm upward.
To remove the upper spray arm,
hold the nut in the center still and
rotate the spray arm counterclockwise
to remove it.

EN
62
4.3. Caring For The Dishwasher
Frost precaution
Please take frost protection measures on the dishwasher in winter. Every time after
washing cycles, please operate as follows:
• Cut off the electrical power to the dishwasher at the supply source.
• Turn off the water supply and disconnect the water inlet pipe from the water valve.
• Drain the water from the inlet pipe and water valve (Use a pan to gather the water).
• Reconnect the water inlet pipe to the water valve.
• Remove the filter at the bottom of the tub and use a sponge to soak up water in the
sump.
After every wash
After every wash, turn off the water supply to the appliance and leave the door slightly
open so that moisture and odors are not trapped inside.
Remove the plug
Before cleaning or performing maintenance, always remove the plug from the socket.
No solvents or abrasive cleaning
To clean the exterior and rubber parts of the dishwasher, do not use solvents or abrasive
cleaning products. Only use a cloth with warm soapy water.
To remove spots or stains from the surface of the interior, use a cloth dampened with
water an a little vinegar, or a cleaning product made specifically for dishwashers.
When not in use for a longtime
It is recommend that you run a wash cycle with the dishwasher empty and then remove
the plug from the socket, turn off the water supply and leave the door of the appliance
slightly open. This will help the door seals to last longer and prevent odors from forming
within the appliance.
Moving the appliance
If the appliance must be moved, try to keep it in the vertical position. If absolutely
necessary, it can be positioned on its back.
Seals
One of the factors that cause odours to form in the dishwasher is food that remains trapped
in the seals. Periodic cleaning with a damp sponge will prevent this from occurring.

EN
63
WARNING:
Electrical Shock Hazard
Disconnect electrical power before installing dishwasher. Failure to do so could result
in death or electrical shock.
ATTENTION:
The installation of the pipes and electrical equipments should be done by professionals.
5.1. About Power Connection
WARNING:
For personal safety:
• Do not use an extension cord or an adapter plug with this appliance.
• Do not, under any circumstances, cut or remove the earthing connection from
the power cord.
Electrical requirements
Please look at the rating label to know the rating voltage and connect the dishwasher
to the appropriate power supply. Use the required fuse 10A/13A/16A, time delay fuse
or circuit breaker recommended and provide separate circuit serving only this appliance.
Electrical connection
Ensure the voltage and frequency of the power being corresponds to those on the rating
plate. Only insert the plug into an electrical socket which is earthed properly. If the
electrical socket to which the appliance must be connected is not appropriate for the
plug, replace the socket, rather than using a adaptors or the like as they could cause
overheating and burns.
NOTE:
Ensure that proper earthing exists before use.
5.2. Water Supply And Drain
Cold water connection
Connect the cold water supply hose to a threaded 3/4(inch) connector and make sure that
it is fastened tightly in place. If the water pipes are new or have not been used f xtended
period of time, let the water run to make sure that the water is clear. This precaution is
needed to avoid the risk of the water inlet to be blocked and damage the appliance.
CHAPTER 5: INSTALLATION INSTRUCTION

EN
64
About the safety supply hose
The safety supply hose consists of the double walls. The hose’s system guarantees
its intervention by blocking the flow of water in case of the supply hose breaking and
when the air space between the supply hose itself and the outer corrugated hose is full
of water.
WARNING:
A hose that attaches to a sink spray can burst if it is installed on the same water line
as the dishwasher. If your sink has one, it is recommended that the hose be disconnected
and the hole plugged.
How to connect the safety supply hose:
• Pull The safety supply hoses completely out from storage compartment located
at rear of dishwasher.
• Tighter the screws of the safety supply hose to the faucet with thread 3/4inch.
• Turn water fully on before starting the dishwasher.
How to disconnect the safety supply hose:
• Turn off the water.
• Unscrew the safety supply hose from the faucet.
5.3. Connection Of Drain Hoses
Insert the drain hose into a drain pipe with a minimum diameter of 4 cm, or let it run
into the sink, making sure to avoid bending or crimping it. The height of drain pipe must
be less than 1000mm. The free end of the hose must not be immersed in water to avoid
the back flow of it.
NOTE:
Please securely fix the drain hose in either position A or position B.
safety supply hose
ordinary supply hose

EN
65
How to drain excess water from hoses
If the sink is 1000 higher from the floor, the excess water in hoses cannot be drained
directly into the sink. It will be necessary to drain excess water from hoses into
a bowl or suitable container that is held outside and lower than the sink.
Water outlet
Connect the water drain hose. The drain hose must be correctly fitted to avoid water
leaks. Ensure that the water drain hose is not kinked or squashed.
Extension hose
If you need a drain hose extension, make sure to use a similar drain hose. It must be
no longer than 4 meters; otherwise the cleaning effect of the dishwasher could be reduced.
Syphon connection
The waste connection must be at a height less than 100 cm (maximum) from the
bottom of the dish. The water drain hose should be fixed .
5.4. Position The Appliance
Position the appliance in the desired location. The back should rest against the wall
behind it, and the sides, along the adjacent cabinets or walls. The dishwasher is equipped
with water supply and drain hoses that can be positioned either to the right or the left
sides to facilitate proper installation.
Levelling the appliance
Once the appliance is positioned for levelling, the height of the dishwasher may be altered
via adjustment of the screwing level of the feet.In any case,the appliance should not be
inclined more than 2°.
B
A
MAX 1000mm
Counter
Drain hose
Back of dishwasher
Water Inlet
Drain Pipe
Mains Cable

EN
66
NOTE:
Only apply to the free standing dishwasher.
5.5. Free Standing Installation
Fitting between existing carbinets
he height of the dishwasher, 845 mm, has been designed
in order to allow the machine to be fitted between existing
cabinets of the same height in modern fitted kitchens. The
feet can be adjusted so that correct height is reached. The
laminated top of the machine does not require any particular
care since it is heatproof, scratchproof and stainproof.
Underneath existing work top
(When fitting beneath a work top) In most modern fitted
kitchens there is only one single work top under which
cabinets and electrical appliances are fitted. In this case
remove the work top of the dishwasher by unscrewing the
screws under the rear edge of the top (a).
ATTENTION:
After removing the work top, the screws must be screwed again under the rear edge
of the top (b).
The height will then be reduced to 815 mm, as scheduled by the International Regulations
(ISO) and the dishwasher will fit perfectly under the kitchen working top
a
a
b
b

EN
67
5.6. Built-In Installation (for the integrated model)
Step 1. Selecting the best location for the dishwasher
The installation position of dishwasher should be near the existing inlet and drain hoses
and power cord.
Illustrations of cabinet dimensions and installation position of the dishwasher.
• Less than 5 mm between the top of dishwasher and cabinet and the outer door
aligned to cabinet.
• If dishwasher is in stalled at the corner of the cabinet, there should be some
space when the door is opened.
NOTE:
Depending on where your electrical
outlet is, you may need to cut a hole in
the opposite cabinet side.
90 °
90 °
580mm
820mm
100
Electrical, drain
line entrances
and water supply
Space between cabinetSpace between cabinet
bottom and floorbottom and floor
600 mm( for 60cm model )
80
450
mm (for 45cm model )
CabinetDishwasher
Door of
dishwasher
Minimum space
of 50mm

EN
68
Step 2. Aesthetic panel’s dimensions and installation
The aesthetic wooden panel could be processed according to the installation drawings.
Semi-integrated model
Magical paster A and magical paster B be disjoinedon ,magical paster A on the
aesthetic wooden panel and felted magical paster B of the outer door of dishwasher
(see figure A).
After positioning of the panel, fix the panel onto the outer door by screws and bolts
(See figure B).
Full-integrated model
Install the hook on the aesthetic wooden panel and put the hook into the slot of the outer
door of dishwasher (see figure A).
After positioning of the panel , fix the panel onto the outer door by screws and bolts
(See figure B).
A
Magical paster
Magical paster
B
2. Pin up the four long screws
1. Take away the four short screws
B
2. Pin up the four long screws
A
1. Take away the four short screws

EN
69
Step 3. Tension adjustment of the door spring
• The door springs are set at the factory
to the proper tension for the outer door.
If aesthetic wooden panel are installed, you
will have to adjust the door spring tension.
Rotate the adjusting screw to drive the
adjustor to strain or relax the steel cable.
• Door spring tension is correct when the
door remains horizontal in the fully opened
position, yet rises to a close with the slight
lift of a finger.
Step 4. Dishwasher installation steps
• Affix the condensation strip under the work surface of cabinet. Please ensure the
condensation strip is flush with edge of work surface. (Step 2)
• Connect the inlet hose to the cold water supply.
• Connect the drain hose.
• Connect the power cord.
• Place the dishwasher into position. (Step 4)
• Level the dishwasher. The rear food can be adjusted from the front of the dishwasher
by turning the Philips screw in the middle of the base of dishwasher use an Philips
screw . To adjust the front feet, use a flat screw driver and turn the front feet until
the dishwasher is level. (Step 5 to Step 6).
• Install the furniture door to the outer door of the dishwasher. (Step 7 to Step 10)
• Adjust the tension of the door springs by using an Allen key turning in a clockwise
motion to tighten the left and right door springs. Failure to do this could cause
damage to your dishwasher. (Step 11)
• The dishwasher must be secured in place. There are two ways to do this:
1. Normal work surface: Put the installation hook into the slot of the side plane and
secure it to the work surface with the wood screws.
2. Marble or granite work top: Fix the side with Screw.
A
B

EN
70
Step 5. Levelling the dishwasher
Dishwasher must be level for proper dish rack operation and wash performance.
• Place a spirit level on door and rack track inside the tub as shown to check that the
dishwasher is level.
• Level the dishwasher by adjusting the three levelling legs individually.
• When level the dishwasher, please pay attention not to let the dishwasher tip over.
UP
DOWN
Check level
front to back
Check level
side to side
NOTE:
The maximum adjustment height of the feet is 50 mm.

EN
71
CHAPTER 6: TROUBLESHOOTING TIPS
Before Calling For Service
Reviewing the charts on the following pages may save you from calling for service.
PROBLEM POSSIBLE CAUSES WHAT TO DO
Dishwasher doesn’t start.
Fuse blown, or the circuit break
tripped.
Replace fuse or reset circuit
breaker. Remove any other
appliances sharing the same
circuit with the dishwasher.
Power supply is not turned on.
Make sure the dishwasher is
turned on and the door is closed
securely. Make sure the power
cord is properly plugged into the
wall socket.
Water pressure is low.
Check that the water supply is
connected properly and the water
is turned on.
Door of dishwasher not
properly closed.
Make sure to close the door
properly and latch it.
Water not pumped form
dishwasher.
Twisted or trapped drain hose. Check the drain hose.
Filter clogged. Check coarse the filter.
Kitchen sink clogged.
Check the kitchen sink to make
sure it is draining well. If the
problem is the kitchen sink
that is not draining , you may
need a plumber rather than
a serviceman for dishwashers.
Suds in the tub.
Wrong detergent.
Use only the special dishwasher
detergent to avoid suds. If this
occurs, open the dishwasher and
let suds evaporate. Add 1 gallon
of cold water to the bottom of the
dishwasher. Close the dishwasher
door, then select any cycle.
Initially, the dishwasher will drain
out the water. Open the door
after draining stage is complete
and check if the suds have
disappeared. Repeat if necessary.
Spilled rinse-aid.
Always wipe up rinse-aid spills
immediately.
Stained tub interior.
Detergent with colourant
may have been used.
Make sure that the detergent
has no colourant.

EN
72
White film on inside
surface.
Hard water minerals.
To clean the interior,
use a damp sponge with
dishwasher detergent and wear
rubber gloves. Never use any
other cleaner than dishwasher
detergent otherwise, it may
cause foaming or suds.
There are rust stains on
cutlery.
The affected items are not
corrosion resistant.
Avoid washing items that are
not corrosion resistant in the
dishwasher.
A program was not run after
dishwasher salt was added.
Traces of salt have gotten
into the wash cycle.
Always run a wash program
without any crockery after
adding salt. Do not select the
Turbo function (if present),
after adding dishwasher salt.
The lid of the softer is loose.
Check the softener lid is
secure.
Knocking noise in the
dishwasher.
A spray arm is knocking
against an item in a basket.
Interrupt the program and
rearrange the items which are
obstructing the spray arm.
Rattling noise in the
dishwasher.
Items of crockery are loose
in the dishwasher.
Interrupt the program and
rearrange the items of crockery.
Knocking noise in the
water pipes.
This may be caused
by on-site installation or the
cross-section of the piping.
This has no influence on the
dishwasher function. If in
doubt, contact a qualified
plumber.
The dishes are not clean.
The dishes were not loaded
correctly.
See Chapter 7 “Preparing And
Loading Dishes”.
The program was not
powerful enough.
Select a more intensive
program.
Not enough detergent was
dispensed.
Use more detergent, or change
your detergent.
Not enough detergent was
dispensed.
Rearrange the items so that the
spray can rotate freely.
The filter combination is not
clean or is not correctly fitted
in the base of wash cabinet.
This may cause the spray
arm jets to get blocked.
Clean and/or fit the filter
correctly. Clean the spray arm
jets.
Cloudiness on glassware.
Combination of soft water
and too much detergent.
Use less detergent if you have
soft water and select a shorter
cycle to wash the glassware
and to get them clean.
White spots appear on
dishes and glasses.
Hard water area can cause
limescale deposits.
Add more detergent.

EN
73
Black or grey marks on
dishes.
Aluminium utensils have
rubbed against dishes.
Use a mild abrasive cleaner to
eliminate those marks.
Detergent left in dispenser.
Dishes block detergent
dispenser.
Re-loading the dishes properly.
The dishes aren’t drying.
Improper loading.
Load the dishwasher as
suggested in the directions.
Dishes are removed too soon.
Do not empty your dishwasher
immediately after washing.
Open the door slightly so that
the steam can come out. Take
out the dishes until the inside
temperature is safe to touch.
Unload the lower basket first
to prevent the dropping water
from the upper basket.
Wrong program has been
selected.
With a short program, the
washing temperature is
lower, decreasing cleaning
performance. Choose
a program with a long washing
time.
Use of cutlery with
a low-quality coating.
Water drainage is more difficult
with these items. Cutlery or
dishes of this type are not
suitable for washing in the
dishwasher.

EN
74
CHAPTER 7: LOADING THE BASKETS ACCORDING TO EN50242
Upper basket:
Lower basket:
1
2
3
4
5
6
Cups
Small serving bowl
Saucers
Medium serving bowl
Glasses
Item
Large serving bowl
Number
6
4
3
3
3
3
3
2
2
1
1
1
1
7
8
9
10
Dessert dishes
Dinner plates
Soup plates
Item
Oval platter
Number
5
1
0
8 7
8 9
7
7
7
7

EN
75
1
7
4
5
3
8 6
6
2
3
1 32 6444 5 7 8
1
2
3
4
5
6
7
8
Soup spoons
Forks
Knives
Teaspoons
Dessert spoons
Serving spoons
Serving forks
Item
Gravy ladles
Number
Cutlery rack:
Information for comparability tests in
accordance with EN 50242:
• Capacity: 10 place settings
• Position of the upper basket:lower position
• Program: ECO
• Rinse aid setting: 6
• Softener setting: H3
Cutlery basket could be have 2 positions:
Position one: lift the left basket up, the left basket is
sideling.
Position two: adjust the left basket to
lower position, and the left basket is
flat.

EN
76
CHAPTER 8: QUICK USER GUIDE
Please read the corresponding content on the instruction manual for detailed
operating method.
5
2
Removing the larger residue on the
cutlery
3
4
Filling the dispenser
Inside
Loading the baskets
Selecting a program and running
the dishwasher
Outside
1
Install the dishwasher
(Please check the section 5 “INSTALLATION INSTRUCTION ”
of PART Ⅰ: Generic Version.)

EN
77
CHAPTER 9: USING YOUR DISHWASHER
9.1. Control Panel
1 9 6
7
2 3 4 5
8
OPERATION (BUTTON)
Power
Press this button to turn on your
dishwasher. When pressing this button,
corresponding indicator will be lit.
Program
Press this button to select the appropriate
washing program, the selected program
indicator will be lit.
ALL IN 1
For normally soiled loads, use
multi functional detergent.
When pressing this button,
corresponding indicator will be lit.
Alt
Press the button to select either upper
basket or lower basket loaded, and the
response indicators ( ) will be lit.
Delay
Press the Delay button to increase the
delay start time. Delay a cycle for up
to 24 hours in one-hour increments.
After setting the delay time, press the
Start/Pause button to start.
Display
Alt indicator
Upper
When you select Upper,only the
upper rack nozzle is activated.
The lower nozzle will not
operate.
Alt indicator
Lower
When you select Lower,
only the lower rack nozzle is
activated. The upper nozzle will
not operate.

EN
78
Warning Indicator
Rinse Aid
If the or is lit, it means
the dishwasher is low on
dishwasher rinse aid and
requires a refill.
Salt
If the indicator is lit, it means
the dishwasher is low on
dishwasher salt and needs to be
refilled.
Water Faucet
If the indicator is lit, it means
the water faucet closed.
Program Indicator
Auto
For lightly, normally or heavily
soiled crockery with or without
dried-on food.
Intensive
Heavily soiled items include
pots and pans. With dried on
food.
Normal
For normally soiled loads, such
as pots, plates, glasses and
lightly soiled pans.
ECO
This is standard program,
it is suitable to clean normally
soiled tableware and it is the
most efficient program in terms
of its combined energy and
water consumption for that type
of tableware.
Glass
For lightly soiled crockery and
glass.
90 Min
For normally soiled loads that
need quick wash.
Rapid
A shorter wash for lightly soiled
loads that do not need drying.
Display
To show the reminding time,
delay time, error code etc.
ECO

EN
79
9.2. Water Softener
The water softener must be set manually, using the water hardness dial.
The water softener is designed to remove minerals and salts from the water, which
would have a detrimental or adverse effect on the operation of the appliance.
The more minerals there are, the harder your water is.
The softener should be adjusted according to the hardness of the water in your area.
Your local Water Authority can advise you on the hardness of the water in your area.
Adjusting salt consumption
The dishwasher is designed to allow for adjustment in the amount of salt consumed
based on the hardness of the water used. This is intended to optimise and customise the
level of salt consumption.
Please follow the steps below for adjustment in salt consumption.
• Switch on the appliance.
• Press the Program button for more than 5 seconds to start the water softener set
model within 60 seconds after the appliance was switched on.
• Press the Program button to select the proper set according to your local
environment, the sets will change in the following sequence:
H1->H2->H3->H4->H5->H6
• Press the Power button to end the set up model.
WATER HARDNESS
lMmol German dH French fH British Clarke
Water softener
level
Salt consumption
(gram/cycle)
0-0,94 0-5 0-9 0-6 H1 0
1,0-2,0 6-11 10-20 7-14 H2 9
2,1-3,0 12-17 21-30 15-21 H3 12
3,1-4,0 18-22 31-40 22-28 H4 20
4,1-6,0 23-34 41-50 29-42 H5 30
6,1-9,8 35-55 51-60 43-69 H6 60
1°dH=1.25°Clarke=1.78 °fH=0.178mmol/l
The manufactory setting: H3
Contact your local water board for information on the hardness of your water supply.
NOTE:
Please check the chapter 3 “Loading The Salt Into The Softener” your dishwasher lacks
salt.

EN
80
NOTE:
If your model does not have any water softener, you may skip this section.
WATER SOFTENER
The hardness of the water varies from place to place. If hard water is used in the
dishwasher, deposits will form on the dishes and utensils.
The appliance is equipped with a special softener that uses a salt container specifically
designed to eliminate lime and minerals from the water.
9.3. Preparing And Loading Dishes
• Consider buying utensils which are identified as dishwasher-proof.
• For particular items, select a program with the lowest possible temperature.
• To prevent damage, do not take glass and cutlery out of the dishwasher immediately
after the program has ended.
For washing the following cutlery/dishes
Are not suitable:
• Cutlery with wooden, horn china or mother-of-pearl handles.
• Plastic items that are not heat resistant.
• Older cutlery with glued parts that are not temperature resistant.
• Bonded cutlery items or dishes.
• Pewter or cooper items.
• Crystal glass.
• Steel items subject to rusting.
• Wooden platters.
• Items made from synthetic fibres.
Are of limited suitability:
• Some types of glasses can become dull after a large number of washes.
• Silver and aluminum parts have a tendency to discolour during washing.
• Glazed patterns may fade if machine washed frequently.
Recommendations for loading the dishwasher
Scrape off any large amounts of leftover food. Soften remnants of burnt food in pans.
It is not necessary to rinse the dishes under running water
For best performance of the dishwasher, follow these loading guidelines.
(Features and appearance of baskets and cutlery baskets may vary from your model.)

EN
81
Place objects in the dishwasher in following way:
• Items such as cups, glasses, pots/pans, etc. are faced downwards.
• Curved items, or ones with recesses, should be loaded aslant so that water can run
off.
• All utensils are stacked securely and can not tip over.
• All utensils are placed in the way that the spray arms can rotate freely during
washing.
• Load hollow items such as cups, glasses, pans etc. With the opening facing
downwards so that water cannot collect in the container or a deep base.
• Dishes and items of cutlery must not lie inside one another, or cover each other.
• To avoid damage, glasses should not touch one another.
• The upper basket is designed to hold more delicate and lighter dishware such
as glasses, coffee and tea cups.
• Long bladed knives stored in an upright position are a potential hazard!
• Long and/or sharp items of cutlery such as carving knives must be positioned
horizontally in the upper basket.
• Please do not overload your dishwasher. This is important for good results and for
reasonable consumption of energy.
NOTE:
Very small items should not be washed in the dishwasher as they could easily
fall out of the basket.
Removing the dishes
To prevent water dripping from the upper basket into the lower basket, we recommend
that you empty the lower basket first, followed by the upper basket.
WARNING:
Items will be hot!
To prevent damage, do not take glass and cutlery out of the dishwasher
for around 15 minutes after the program has ended.

EN
82
Loading the upper basket
The upper basket is designed to hold more
delicate and lighter dishware such as
glasses, coffee and tea cups and saucers,
as well as plates, small bowls and shallow
pans (as long as they are not too dirty).
Position the dishes and cookware so that they
will not get moved by the spray of water.
Loading the lower basket
We suggest that you place large items and the
most difficult to clean items are to be placed
into the lower basket: such as pots, pans,
lids, serving dishes and bowls, as shown
in the figure below. It is preferable to place
serving dishes and lids on the side of the
racks in order to avoid blocking the rotation
of the top spray arm. The maximum diameter
advised for plates in front of the detergent
dispenser is of 19 cm, this not to hamper the
opening of it.
Loading the cutlery basket
Cutlery should be placed in the cutlery rack separately from each other in the appropriate
positions, and do make sure the utensils do not nest together, this may cause bad
performance.
WARNING:
Do not let any item extend through the bottom.
Always load sharp utensils with the sharp point down!
For the best washing effect, please load the baskets refer to standard loading options
on chapter 7 „LOADING THE BASKETS ACCORDING TO EN50242”.

EN
83
9.4. Function Of The Rinse Aid And Detergent
The rinse aid is released during the final rinse to prevent water from forming droplets
on your dishes, which can leave spots and streaks. It also improves drying by allowing
water to roll off the dishes. Your dishwasher is designed to use liquid rinse aids.
WARNING:
Only use branded rinse aid for dishwasher. Never fill the rinse aid dispenser with any
other substances (e.g. Dishwasher cleaning agent, liquid detergent). This would damage
the appliance.
When to refill the rinse aid dispenser
Unless the rinse-aid warning light on the control panel is on, you can always estimate
the amount from the color of the optical level indicator located next to the cap. When
the rinse-aid container is full, the indicator will be fully dark. The size of the dark
dot decreases as the rinse-aid diminishes. You should never let the rinse aid level be less
than 1/4 full.
As the rinse aid diminishes, the size of the black dot on the rinse aid level indicator
changes, as illustrated below.
Function of detergent
The chemical ingredients that compose the detergent are necessary to remove, crush
and dispense all dirt out of the dishwasher. Most of the commercial quality detergents
are suitable for this purpose.
WARNING:
Proper Use of Detergent:
• Use only detergent specifically made for dishwashers use. Keep your detergent
fresh and dry.
• Don’t put powdered detergent into the dispenser until you are ready to wash dishes.
Dishwasher detergent is corrosive!
Keep dishwasher detergent out of the reach of
children.
Full
3/4 full 1/2 full 1/4 full
Empty

EN
84
9.5. Filling The Rinse Aid Reservoir
Adjusting the rinse aid reservoir
The rinse aid reservoir has six settings. Both the recommended
setting and the factory setting is “4”. If the dishes are not drying
properly or are spotted, adjust the dial to the next higher number
until your dishes are spot-free. Reduce it if there are sticky whitish
stains on your dishes or a bluish film on glassware or knife blades.
3
Replace the cap by inserting it
aligned with "open" arrow and
turning it to the closed (right) arrow.
Carefully pour in the rinse-aid into
its dispenser, whilst avoiding it to
overflow.
NOTE:
Clean up any spilled rinse aid with
an absorbent cloth to avoid
excessive foaming during the next
wash.
1 2
To open the dispenser, turn the cap
to the "open" (left) arrow and lift
it out.
Rinse-Aid indicator

EN
85
1 2
Push latch to open
A
B
3
9.6. Filling The Detergent Dispenser
NOTE:
• Be aware that depending on the soiling of water, setting may be different.
• Please observe the manufacturer’s recommendations on the detergent packaging.

EN
86
PROGRAM Description Of Cycle Detergent Pre/Main
Running
Time (min)
Energy (Kwh) Water L Rinse Aid
AUTO
Pre-wash (45℃)
Autowash (45-55℃)
Rinse
Rinse (65℃)
Drying
3/22g (Or 3 in 1) 150 0.9~1.3 9.5~13 Yes
Intensive
Pre-wash (50℃)
Wash (60℃)
Rinse
Rinse
Rinse (70℃)
Drying
3/22g (Or 3 in 1) 170 1.4 15.5 Yes
Normal
Pre-wash (45℃)
Wash (55℃)
Rinse
Rinse (65℃)
Drying
3/22g (Or 3 in 1) 180 1.1 12 Yes
ECO EN 50242
Pre-wash
Wash (45℃)
Rinse (65℃)
Drying
3/22g (Or 3 in 1) 195 0.74 8 Yes
90 MIN
Wash (65℃)
Rinse (65℃)
Rinse (65℃)
Drying
25g (Or 3 in 1) 90 1.15 11.5 Yes
Glass
Pre-wash
Wash (40℃)
Rinse
Rinse (60℃)
Drying
3/22g (Or 3 in 1) 125 0.75 12 Yes
Rapid
Wash (45℃)
Rinse (50℃)
Rinse (55℃)
20g 30 0.7 10 No
CHAPTER 10: PROGRAMMING THE DISHWASHER
10.1. Wash Cycle Table
The table below shows which programs are best for the levels of food residue on them
and how much detergent is needed. It also show various information about the programs.
NOTE:
ECO EN 50424: This program is the test cycle. The information for comparability test
in accordance with EN 50242.
ECO

EN
87
10.2. Starting A Cycle Wash
• Draw out the lower and upper basket, load the dishes and push them back.
It is commended to load the lower basket first, then the upper one.
• Pour in the detergent.
• Insert the plug into the socket. The power supply refer to last page ”Product fiche”.
Make sure that the water supply is turned on to full pressure.
• Open the door, Press the Power button.
• Choose a program, the response light will turn on. Then close the door,
the dishwasher will start its cycle.
10.3. Changing The Program Mid-cycle
A wash cycle can only be changed if it has been running for a short time otherwise,
the detergent may have already been released and the dishwasher may have already
drained the wash water. If this is the case, the dishwasher needs to be reset and the
detergent dispenser must be refilled.
To reset the dishwasher, follow the instructions below:
1. Open the door a little to stop the dishwasher, after the spray arm stop working,
you can open the door completely.
2. Press Program button more than three seconds the machine will be in stand by state.
3. You can change the program to the desired cycle setting.
10.4. Forget To Add A Dish
A forgotten dish can be added any time before the detergent dispenser opens.
If this is the case, follow the instructions below:
1. Open the door a little to stop the washing.
2. After the spray arms stop working, you can open the door completely.
3. Add the forgotten dishes.
4. Close the door.
5. The dishwasher will start running again.
3 sec

EN
88
WARNING:
It is dangerous to open the door mid-cycle, as hot steam may scald you.
The Indicator lamp will be lit up during the washing program, then
blink for 5 minutes and extinguished on the end of the program.

EN
89
WARNING:
If overflow occurs, turn off the main water supply before calling a service.
If there is water in the base pan because of an overfill or small leak, the water should
be removed before restarting the dishwasher.
CHAPTER 11: ERROR CODES
If there is a malfunction, the dishwasher will display error codes to identify these:
Codes Meanings Possible Causes
E1 Longer inlet time.
Faucets is not opened,
or water intake is
restricted, or water pressure
is too low.
E3
Not reaching required
temperature.
Malfunction of heating
element.
E4 Overflow.
Some element
of dishwasher leaks.
E8
Failure of orientation
of distributary valve.
Open circuit or break
of distributary valve.
E9
Keep pressing a button
more than 30 seconds.
Water or something on the
button.

EN
90
CHAPTER 12: TECHNICAL INFORMATION
550mm
1150mm
448mm
815mm

EN
91
PRODUCT FICHE
Manufacturer
KERNAU
Type / Description
KDI 4872
Standard place settings
10
Energy efficiency class
(1)
A++
Annual energy consumption
(2)
211 kWh
Energy consumption of the standard cleaning cycle
0.74 kWh
Power consumption of off-mode
0.45 W
Power consumption of left-on mode
0.49 W
Annual water consumption
(3)
2240 L
Drying efficiency class
(4)
A
Standard cleaning cycle
(5)
ECO 45℃
Program duration of the standard cleaning cycle
195 min
Noise level
44 dB
Mounting
BUILT-IN
Could be built-in
YES
Power consumption
1760-2100 W
Rated voltage / frequency
220-240V /50Hz
Water pressure (flow pressure)
0.04.-1.0MPa=0.4-10 bar
1
A + + + (highest efficiency) to D (lowest efficiency).
2
Energy consumption based on 280 standard cleaning cycles using cold water fill and
the consumption of the low power modes. Actual energy consumption will depend
on how the appliance is used.
3
Water consumption based on 280 standard cleaning cycles. Actual water consumption
will depend on how the appliance is used.
4
A (highest efficiency) to G (lowest efficiency).
5
This program is suitable for cleaning soiled normally soiled tableware and that it is the
most efficient program in terms of its combined energy and water consumption for that
type of tableware.
Sheet of household dishwasher according to EU Directive 1016/2010 & 1059/2010:

Produktspecifikationer
Varumärke: | Kernau |
Kategori: | Diskmaskin |
Modell: | KDI 4872 |
Inbyggd display: | Nej |
Bredd: | 448 mm |
Djup: | 550 mm |
Höjd: | 815 mm |
Årlig energiförbrukning: | 211 kWh |
Energieffektivitetsklass (gammal): | A++ |
Antal tvättprogram: | 7 |
Sköljmedelsindikator: | Ja |
Multitab-alternativ: | Ja |
Antal temperaturinställningar: | 7 |
AquaStop-funktion: | Ja |
Energiförbrukning per cykel: | 0.74 kWh |
Årlig vattenförbrukning: | 2240 l |
Temperatur (max): | 65 ° C |
Kontrolltyp: | Knappar |
Djup med öppen dörr: | 1150 mm |
AC-inspänning: | 220 - 240 V |
Apparatens placering: | Helt integrerad |
Växelström Frekvens: | 50 hz |
Energieffektivitetsskalning: | A+++ till D |
Ljudnivå Lc IEC: | 44 dB |
Dörr färg: | Vit |
Fördröjd start timer: | Ja |
Fördröjd start: | 24 h |
Vattenförbrukning per omgång: | 8 l |
Återstående tidindikering: | Nej |
Periodlängd: | 195 min |
Alarm: | Ja |
Torkklass: | A |
Antal kuvert: | 10 kuvert |
Diskmaskinsprogram: | Auto, Eco 45°C, Glass/delicate, Intensive 60°C, Normal |
Halv-belastning: | Ja |
Salt-indikator: | Ja |
Produktens storlek: | Slimline (45 cm) |
Wi-Fi-styrning: | Nej |
Behöver du hjälp?
Om du behöver hjälp med Kernau KDI 4872 ställ en fråga nedan och andra användare kommer att svara dig
Diskmaskin Kernau Manualer
4 Augusti 2025
3 Augusti 2025
8 Juni 2025
1 Juni 2025
Diskmaskin Manualer
- Omega
- Fulgor Milano
- Bluesky
- Rommer
- Vestfrost
- Jenn-Air
- Koenic
- Eurotech
- Newpol
- Magic Chef
- Essentiel B
- Miele
- Eudora
- Brandt
- Kubo
Nyaste Diskmaskin Manualer
8 Oktober 2025
8 Oktober 2025
8 Oktober 2025
8 Oktober 2025
8 Oktober 2025
8 Oktober 2025
7 Oktober 2025
7 Oktober 2025
7 Oktober 2025
7 Oktober 2025