Scotsman FME2404 Bruksanvisning
Scotsman
Inte kategoriserad
FME2404
Läs gratis den bruksanvisning för Scotsman FME2404 (12 sidor) i kategorin Inte kategoriserad. Guiden har ansetts hjälpsam av 16 personer och har ett genomsnittsbetyg på 3.8 stjärnor baserat på 8.5 recensioner. Har du en fråga om Scotsman FME2404 eller vill du ställa frågor till andra användare av produkten? Ställ en fråga
Sida 1/12

Installation and User Manual for
Modular Flaked Ice Machine, model FME2404
and Modular Nugget Ice Machine, model
NME1854
Air Cooled

IN TRO DUC TION
To the owner or user: The service manual you are
reading is intended to provide you, and the
maintenance or service technician, with the
information needed to install, start up, clean,
maintain, and service this ice system.
This product contains 2 separate ice making
systems in one cabinet.
FME2404 or NME1854
January 2012
Page 1
Table of Contents
INTRODUCTION ······································ Page 1
FOR THE INSTALLER ···································· Page 2
FOR THE INSTALLER: Environmental Limitations ······················ Page 3
FOR THE INSTALLER ···································· Page 4
FOR THE INSTALLER: Location ······························· Page 5
FOR THE PLUMBER ···································· Page 6
FOR THE ELECTRICIAN ·································· Page 7
FOR THE INSTALLER ···································· Page 8
START UP ········································· Page 9
COMPONENT DESCRIPTION ································ Page 10
COMPONENT DESCRIPTION: Control Box ························· Page 11
ELECTRICAL SEQUENCE ································· Page 12
OPERATION: Performance ································· Page 13
CLEANING and SANITATION ································ Page 14
SENSOR MAINTENANCE ·································· Page 15
BEARING MAINTENANCE ································· Page 16
AIR COOLED CONDENSER MAINTENANCE ························ Page 17
AUGER MAINTENANCE ·································· Page 18
SERVICE DIAGNOSIS: ··································· Page 19
Keep this manual for future reference.
Note the Warning symbol where it appears, it
marks a possible hazard.

FOR THE IN STALLER
The FME2404 and the
NME1854 are modular flakers
designed to fit the following
Scotsman storage bins:
· B842S no bin top required.
· B948S using bin top
KBT14A.
· BH1300 or BH1600, no bin
top required.
When installing a new system,
check to be sure that you have
everything you need before
beginning:
· Correct Bin
· Correct Ice Machine
· Correct Bin Top (if required)
· All kits, legs, and information
required for the specific job.
FME2404 or NME1854
January 2013
Page 2
Model Dimensions
(w/o Bin)
W x D x H
Basic
Electrical
Ice
Type
Condenser
Type
Minimum
Circuit
Ampacity
Max.
Fuse
Size
Refrigerant
Charge, R-404A*
FME2404AS-32 42" x 24" x 27" 208-320/60/1 Flake Air 21.0 25 30 oz
FME2404AS-6 same 230/50/1 Flake Air 19.1 30 30 oz
* Per system. Always go by the nameplate
Minimum circuit ampacity is used to determine wire size and type per the National Electric Code.
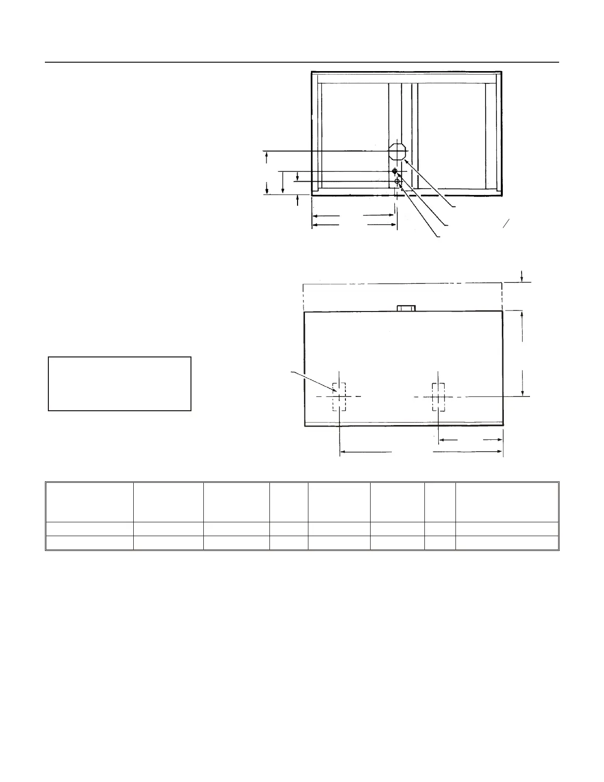
Electrical Inlet
3"
Water Inlet
3
8
" Flare
Drain ¾" FPT
BACK VIEW
Note: Allow 6" behind and 6"
above the unit for air
circulation, utility
connections, and service.
9.5"
18.9"
18.74
5.25"
TOP VIEW
34.84"
18.28"
6"
13.84"
SPECIFICATIONS: Ice Machine
Ice Chute
2.64" x 6.2"
Produktspecifikationer
Varumärke: | Scotsman |
Kategori: | Inte kategoriserad |
Modell: | FME2404 |
Behöver du hjälp?
Om du behöver hjälp med Scotsman FME2404 ställ en fråga nedan och andra användare kommer att svara dig
Inte kategoriserad Scotsman Manualer
2 April 2025
2 April 2025
2 April 2025
2 April 2025
2 April 2025
2 April 2025
2 April 2025
2 April 2025
2 April 2025
2 April 2025
Inte kategoriserad Manualer
- Prixton
- Kluge
- Cool Maker
- Adax
- Vaddio
- Soul
- ProTeam
- First Alert
- Bluetti
- VirtuFit
- Softing
- Livall
- Futurelight
- Cloud
- MooreCo
Nyaste Inte kategoriserad Manualer
9 April 2025
9 April 2025
9 April 2025
9 April 2025
9 April 2025
9 April 2025
9 April 2025
9 April 2025
9 April 2025
9 April 2025