American Standard Moments T506502.002 Bruksanvisning
American Standard Duschsystem Moments T506502.002
Läs gratis den bruksanvisning för American Standard Moments T506502.002 (3 sidor) i kategorin Duschsystem. Guiden har ansetts hjälpsam av 7 personer och har ett genomsnittsbetyg på 4.6 stjärnor baserat på 8 recensioner. Har du en fråga om American Standard Moments T506502.002 eller vill du ställa frågor till andra användare av produkten? Ställ en fråga
Sida 1/3

5-5/8" REF.
T506.50X
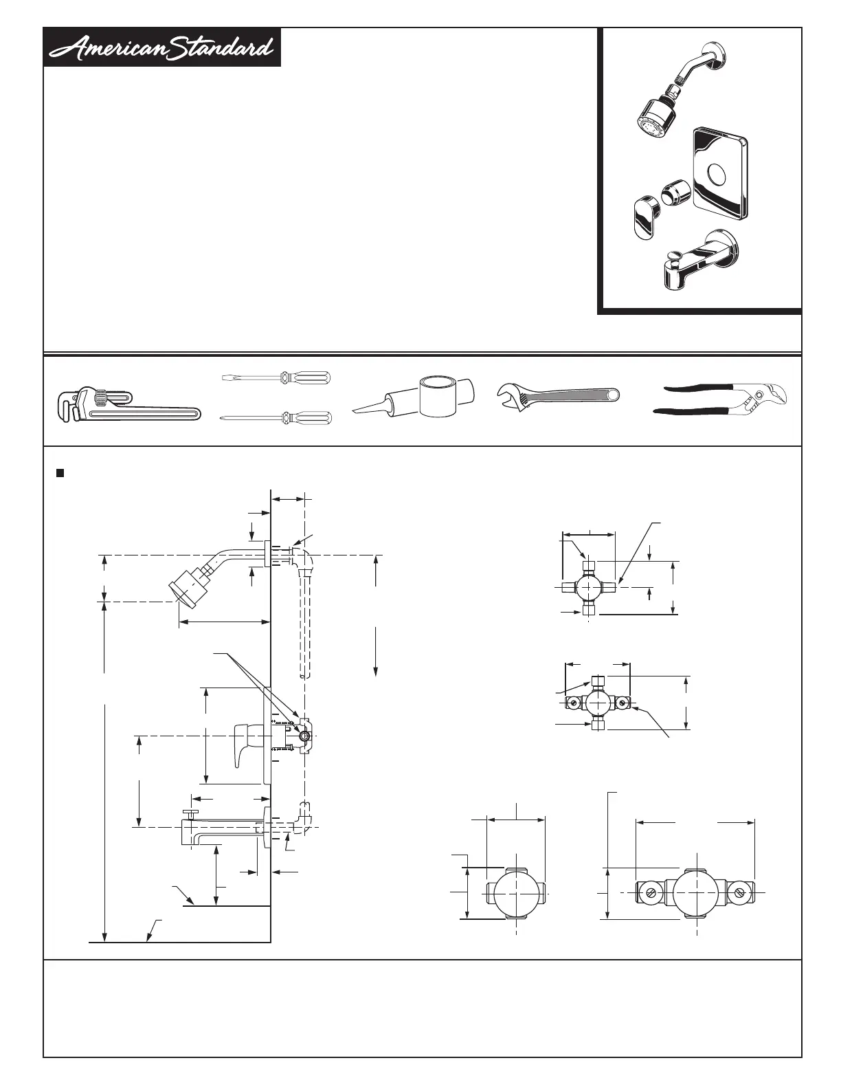
To assure proper positioning in relation to wall, note
roughing-in dimensions.
ROUGHING-IN DIMENSIONS
Certified to comply with ANSI A112.18.1
Installation
Instructions
Recommended Tools
Flat Blade Screwdriver
Adjustable Wrench
Channel Locks
Plumbers' Putty or Caulking
Phillips Screwdriver
BOTTOM OF
TUB
74" FOR
HEAD CLEARANCE
FINISHED WALL
8-1/8" REF.
4"
6-1/2"
18"
OPTIONAL
TOP OF
TUB RIM
Pipe Wrench
BATH/SHOWER TRIM KIT
8-3/8"
2-3/8"
MOMENTS
THREADED INLETS (STOPS)
INLETS
1/2" NPT
5-7/8"
OUTLETS
1/2" NPT
3-3/8"
INLETS 1/2" NPT
OUTLETS
1/2" NPT
3-3/8"
3-3/8"
THREADED INLETS
INLETS
4-1/16"
4-1/16"
INLETS
1/2" NOM.
COPPER
SWEAT
SHR. 1/2" NOM.
COPPER SWEAT
TUB 1/2" NOM.
COPPER SWEAT
2"
SWEAT
INLETS
SHR. 1/2" NOM.
COPPER SWEAT
TUB 1/2" NOM.
COPPER SWEAT
4-1/16"
5-7/8"
SWEAT
INLETS (STOPS)
INLETS
1/2" NOM.
COPPER
SWEAT
"SEE ILLUSTRATION "
1/2" NPT
1-1/2" REF.
3/4"" TO 2-3/8"
SHR
TUB
OPTIONAL TO FINISHED
FLOOR USUALLY
BETWEEN 65'' AND 80''
M968951 Rev. 1.5
DO: SIMPLY RINSE THE PRODUCT CLEAN WITH CLEAR WATER. DRY WITH A SOFT COTTON FLANNEL CLOTH.
DO NOT: DO NOT CLEAN THE PRODUCT WITH SOAPS, ACID, POLISH, ABRASIVES, HARSH CLEANERS, OR A
CLOTH WITH A COARSE SURFACE.
CARE INSTRUCTIONS:
Thank you for selecting American-Standard...the benchmark
of fine quality for over 100 years.
To ensure that your installation proceeds smoothly--please
read these instructions carefully before you begin.
1/2" COPPER
Produktspecifikationer
| Varumärke: | American Standard |
| Kategori: | Duschsystem |
| Modell: | Moments T506502.002 |
Behöver du hjälp?
Om du behöver hjälp med American Standard Moments T506502.002 ställ en fråga nedan och andra användare kommer att svara dig
Duschsystem American Standard Manualer
26 Februari 2026
26 Februari 2026
26 Februari 2026
26 Februari 2026
26 Februari 2026
26 Februari 2026
25 Februari 2026
25 Februari 2026
25 Februari 2026
25 Februari 2026
Duschsystem Manualer
Nyaste Duschsystem Manualer
31 Mars 2026
29 Mars 2026
9 Mars 2026
9 Mars 2026
9 Mars 2026
8 Mars 2026
5 Mars 2026
19 Februari 2026
18 Februari 2026
18 Februari 2026