American Standard Townsend T353740.002 Bruksanvisning
American Standard Duschsystem Townsend T353740.002
Läs gratis den bruksanvisning för American Standard Townsend T353740.002 (4 sidor) i kategorin Duschsystem. Guiden har ansetts hjälpsam av 6 personer och har ett genomsnittsbetyg på 4.6 stjärnor baserat på 8 recensioner. Har du en fråga om American Standard Townsend T353740.002 eller vill du ställa frågor till andra användare av produkten? Ställ en fråga
Sida 1/4

- 1 -
Product names listed herein are trademarks of AS America, Inc.
© AS America, Inc. 2016
Thank you for selecting American Standard...
the benchmark of fine quality for over 100 years.
To ensure that your installation proceeds smoothly-please read
these instructions carefully before you begin.
M965728 Rev.1.1 (7/16)
TOWNSEND
®
2 HANDLE THERMO MIXING
VALVE TRIM
INSTALLATION
INSTRUCTIONS
T353.740
Certied to comply with ANSI A112.18.1M
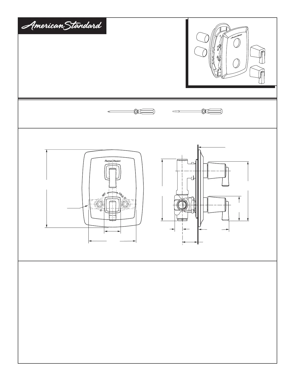
RECOMMENDED TOOLS
ROUGHING-IN DIMENSIONS
Phillips Screwdriver
Flat Blade Screwdriver
7-3/8"
(186 mm)
2" TO 2-5/8"
(48 TO 68 mm)
NOTE: FITTING
MUST BE INSTALLED
WITH VOLUME CONTROL
ON TOP.
R520
1/2" NPT INLETS
or
R540
3/4" NPT INLETS
1"
(25 mm)
FINISHED
WALL
9 -5/16"
(237 mm)
7-7/16"
(189 mm)
1-7/16"
(50 mm)
3"
(73 mm)
3-11/16"
(94 mm)
6-3/4"
(173 mm)
CARE INSTRUCTIONS:
• To keep your new faucet looking new, please follow
these simple care instructions:
DO: – Simply rinse the faucet clean with clear water.
– Dry the faucet with a soft cotton cloth.
DO NOT:
– Do not use any abrasive cleaners, cloths,
or paper towels.
– Do not use any cleaning agents containing
acids, polish abrasives, or harsh cleaners
or soaps.
• Regular and routine cleaning will reduce the need for
heavy cleaning and polishing. If heavy cleaning is
required, the following procedures are recommended:
• Remove as much surface dirt and lm using clear
water and soft cotton cloth (as described above).
– Use any of the following to remove tough surface
lm and build-up:
– Mild liquid detergents
– Clear ammonia free liquid glass cleaners
– Non-acidic, non-abrasive gentle liquid or fully dissolved
powder cleansers mixed according to manufacturers
directions
– Non-abrasive liquid polishers
• Once clean, rinse faucet again with clear water to
thoroughly remove cleaner or polish and blot dry with
a soft cotton cloth.
Failure to follow these care instructions may damage
the Faucet’s finish.
Produktspecifikationer
| Varumärke: | American Standard |
| Kategori: | Duschsystem |
| Modell: | Townsend T353740.002 |
Behöver du hjälp?
Om du behöver hjälp med American Standard Townsend T353740.002 ställ en fråga nedan och andra användare kommer att svara dig
Duschsystem American Standard Manualer
26 Februari 2026
26 Februari 2026
26 Februari 2026
26 Februari 2026
26 Februari 2026
26 Februari 2026
25 Februari 2026
25 Februari 2026
25 Februari 2026
25 Februari 2026
Duschsystem Manualer
Nyaste Duschsystem Manualer
31 Mars 2026
29 Mars 2026
9 Mars 2026
9 Mars 2026
9 Mars 2026
8 Mars 2026
5 Mars 2026
19 Februari 2026
18 Februari 2026
18 Februari 2026