B-tech BT9922 Bruksanvisning
B-tech
Inte kategoriserad
BT9922
Läs gratis den bruksanvisning för B-tech BT9922 (2 sidor) i kategorin Inte kategoriserad. Guiden har ansetts hjälpsam av 28 personer och har ett genomsnittsbetyg på 5.0 stjärnor baserat på 14.5 recensioner. Har du en fråga om B-tech BT9922 eller vill du ställa frågor till andra användare av produkten? Ställ en fråga
Sida 1/2

2249.1mm
88.5in
VESA Width Distance
1200mm
47.2in
1000mm
39.4in
800mm
31.5in
600mm
23.6in
500mm
19.7in
400mm
15.7in
300mm
11.8in
200mm
7.9in
8.4mm
0.3in
10.4mm
0.4in
480mm
18.9in
600mm
23.6in
1256mm
49.4in
(Mount Height)
24mm
0.9in
749.7mm
29.5in
(TYP)
1125mm
44.3in
VESA Height Distance
Closed
152.5mm-159.5mm
[6.0in - 6.28in]
(Tolerance +/- 1mm)
51.5mm
2in
30mm
1.2in
2505mm
98.6in
Including End Caps
96.5mm
3.8in
(Excluding End Caps)
96.5mm
3.8in
(Excluding End Cap)
1000mm
39.4in
1500mm
59.1in
691.7mm
27.2in
(TYP)
CLOSED VIEW
ISOMETRIC VIEW
SCALE: 1 : 15
Open
344.5mm - 351.5mm
[13.6in - 13.8in]
Tolerance +/- 1mm
B-Tech International Design & Manufacturing Limited
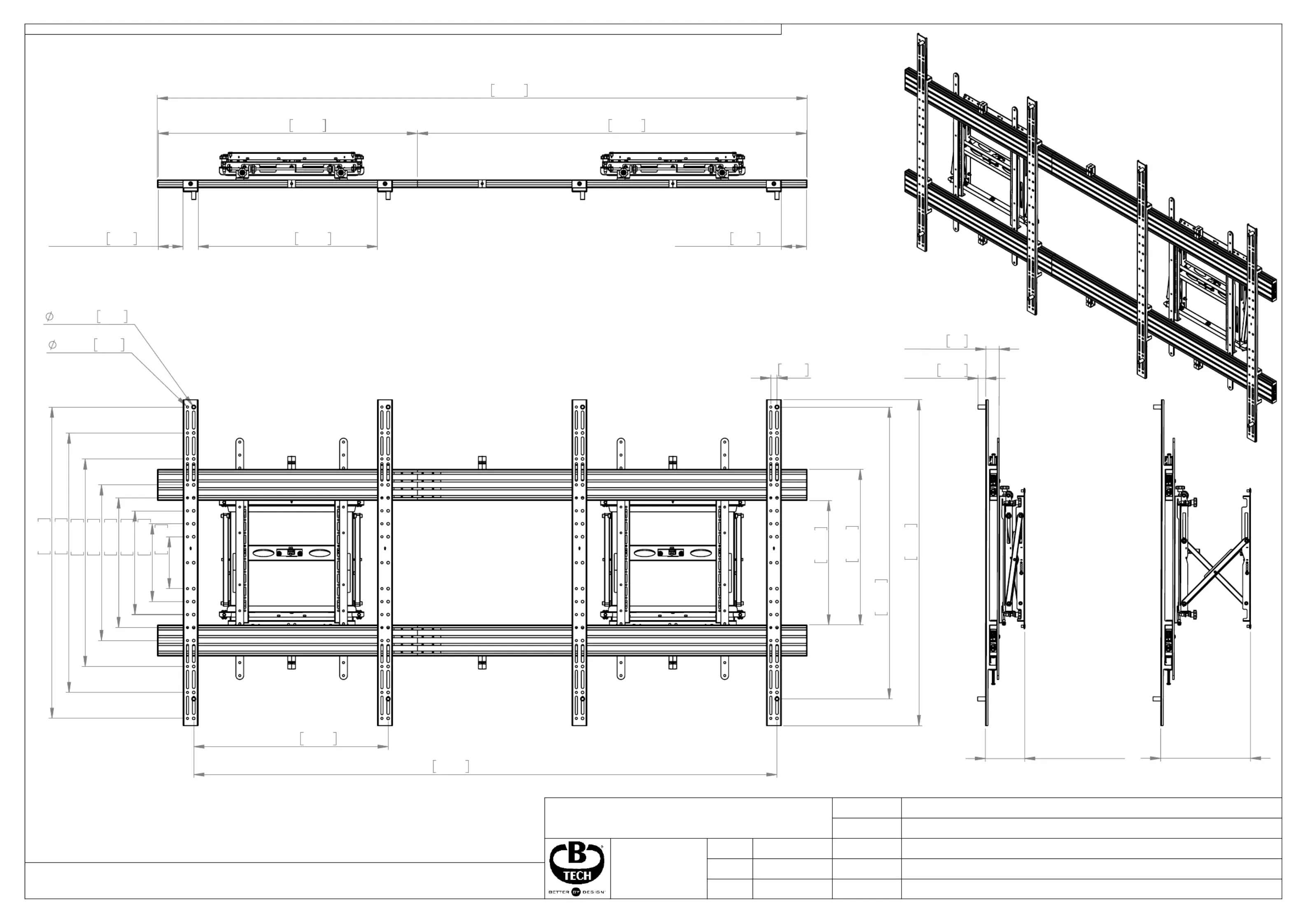
Full Service Heavy Duty Wall Mount for XXL Displays
BT9922
R01
B-Tech No:
Title:
Revision:
The information contained in this drawing is the sole property of B-Tech International Design and Manufacturing Limited, any reproduction in part or whole without the written permission of B-Tech International Design and Manufacturing Limited is prohibited.
Sheet:
1 of 2
File Name: BTD-BT9922
Date:
24/08/2023
1:12
Scale:
A3
Size:
Part of the B-Tech International Group
UNLESS
OTHERWISE
SPECIFIED
DIMENSIONS ARE
IN MILLIMETERS
B-Tech International Design and Manufacturing Limited makes no representation or warranties, express or implied, with respect to the reuse of the data provided herewith,
regardless of its format or the means of its transmission. B-Tech International Design and Manufacturing Limited makes every effort to provide accurate information, however
there is no guarantee or representation to the user as to the accuracy, currency, suitability or reliability of this data. The user assumes all risks associated with its use. B-Tech
International Design and Manufacturing Limited assumes no responsibility for actual or consequential damage incurred as a result of any user's reliance on this data.
Produktspecifikationer
| Varumärke: | B-tech |
| Kategori: | Inte kategoriserad |
| Modell: | BT9922 |
| Certifiering: | TUV |
| Modell: | Fast |
| Montage: | Skruvar |
| Förbättrad kabelhantering: | Ja |
| Maximal skärmstorlek: | 136 " |
| Minsta skärmstorlek: | 120 " |
| Maxvikt: | 200 kg |
| Justerbart djup: | Ja |
| Produktens färg: | Svart |
| bruksanvisning: | Ja |
| Lutningsjustering: | Ja |
| Monteringssats: | Ja |
| Antal per förpackning: | 1 styck |
| Enkel installation: | Ja |
| Orientering: | Landskap |
| Hållbarhetscertifiering: | TUV |
| Material, hölje: | Stål |
| Monteringssätt: | Vägg |
| Harmonized System (HS)-kod: | 83024200 |
| Antal displayer som stöds: | 1 |
| Monteringsgränssnitt kompatibilitet (min): | - mm |
| Monteringsgränssnitt kompatibilitet (max): | 2400 x 1200 mm |
| Justeringsområde för djup: | 175.5 - 182.5 mm |
Behöver du hjälp?
Om du behöver hjälp med B-tech BT9922 ställ en fråga nedan och andra användare kommer att svara dig
Inte kategoriserad B-tech Manualer
26 September 2024
25 September 2024
25 September 2024
25 September 2024
25 September 2024
25 September 2024
25 September 2024
25 September 2024
15 September 2024
15 September 2024
Inte kategoriserad Manualer
- Imarflex
- Comprehensive
- BMW
- American International
- RAVPower
- Kaiser Nienhaus
- Peak Design
- Satechi
- XD-Design
- Eowave
- Crayola
- Aquapur
- Riello
- Musway
- Softing
Nyaste Inte kategoriserad Manualer
9 April 2025
9 April 2025
9 April 2025
9 April 2025
9 April 2025
9 April 2025
9 April 2025
9 April 2025
9 April 2025
9 April 2025