Draper 62893 Bruksanvisning
Draper
ej kategoriserat
62893
Läs gratis den bruksanvisning för Draper 62893 (8 sidor) i kategorin ej kategoriserat. Guiden har ansetts hjälpsam av 2 personer och har ett genomsnittsbetyg på 4.5 stjärnor baserat på 1.5 recensioner. Har du en fråga om Draper 62893 eller vill du ställa frågor till andra användare av produkten? Ställ en fråga
Sida 1/8

GENERAL INFORMATION
This manual has been compiled by Draper Tools and is an integrated part of the product, which should be kept with the product.
This manual describes the purpose for which this product has been designed and contains all the necessary information to ensure its
correct and safe use.We recommend that this manual is read before any operation of the product, before performing any kind of
adjustment to the product, and prior to any maintenance tasks. By following all the general safety instructions contained in this manual, it
will ensure both product and operator safety, together with longer life of the product itself.
All photographs and drawings in this manual are supplied by Draper Tools to help illustrate the operation of the product.
Whilst every effort has been made to ensure accuracy of information contained in this manual, the Draper Tool policy of continuous
improvement determines the right to make modifications without prior warning.
DOOR CLOSER
• INSTRUCTIONS •
IMPORTANT: PLEASE READ THESE INSTRUCTIONS CAREFULLY TO
ENSURE THE SAFE AND EFFECTIVE USE OF THIS TOOL.
■ STOCK No.62893 ■ PART No.DC25/45
08/2000

- 2 -
■STOCK No.62893 ■ PART No.DC25/45
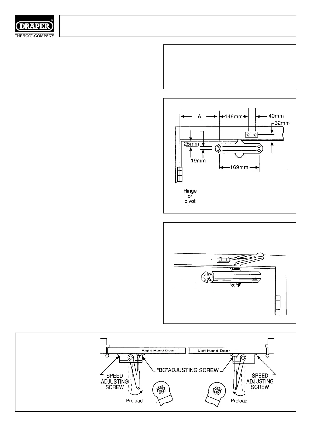
OPENING TO 120°
■DIMENSION A = 95mm
OPENING FROM 120° TO 180°
■DIMENSION A = 65mm
INSTALLATION INSTRUCTIONS FOR
REGULAR ARM (PULL SIDE) MOUNTING
This installation process covers regular arm
installations up to 180° openings.
1. Select the door opening angle and use the
dimensions shown opposite. Mark four holes on the
door for the door closer and two holes on the frame
for the arm shoe.
2. Drill 4mmØ pilot holes in the door and frame for the
fixings suppied.
3. Fix the forearm/arm shoe assembly to the door
frame using the fixings supplied.
4. Attach the closer to the door using the fixings
supplied.
Note: The speed adjusting valve must be positioned
towards the hinged edge of the door.
5. Install the main arm onto the top pinion shaft,
perpendicular to the door as illustrated below.
Tightly secure it in place using the screw/washer
assembly supplied.
6. Adjust the length of the forearm so that it is
perpendicular to the door frame when assembled to
preloaded main arm (see ‘top view’ illustration
below). Secure the forearm to the main arm using
the screw/washer assembly provided.
7. Snap the pinion cap over the pinion shaft at the
bottom of the closer unit.
8. Adjust the closing speed of the door using the
procedure detailed on page 5.
REGULAR ARM INSTALLATION
Closer installs on PULL/HINGE side of door
Illustrated
Left Hand Door-LH or
Right Hand Reverse-RHR
TYPICAL TOP VIEW
INSTALLATION
Produktspecifikationer
Varumärke: | Draper |
Kategori: | ej kategoriserat |
Modell: | 62893 |
Behöver du hjälp?
Om du behöver hjälp med Draper 62893 ställ en fråga nedan och andra användare kommer att svara dig
ej kategoriserat Draper Manualer
8 Oktober 2025
8 Oktober 2025
8 Oktober 2025
8 Oktober 2025
8 Oktober 2025
8 Oktober 2025
8 Oktober 2025
8 Oktober 2025
8 Oktober 2025
8 Oktober 2025
ej kategoriserat Manualer
- Cookut
- Aiphone
- Spanninga
- Sure Petcare
- Bluetti
- Sennheiser
- Movies To Go
- Sprolink
- Intenso
- For.A
- ZeeVee
- Artusi
- Choice
- B-tech
- Newline
Nyaste ej kategoriserat Manualer
8 Oktober 2025
8 Oktober 2025
8 Oktober 2025
8 Oktober 2025
8 Oktober 2025
8 Oktober 2025
8 Oktober 2025
8 Oktober 2025
8 Oktober 2025
8 Oktober 2025