Vemer LCR230 Bruksanvisning
Vemer
Inte kategoriserad
LCR230
Läs gratis den bruksanvisning för Vemer LCR230 (2 sidor) i kategorin Inte kategoriserad. Guiden har ansetts hjälpsam av 20 personer och har ett genomsnittsbetyg på 4.6 stjärnor baserat på 10.5 recensioner. Har du en fråga om Vemer LCR230 eller vill du ställa frågor till andra användare av produkten? Ställ en fråga
Sida 1/2

V3IS00196-031
Mod. LCR
User Manual
CONTROL RELAY FOR ELECTRICALLY CONDUCTED LIQUID LEVELS
Read all the instructions carefully
ThelevelcontrolrelayLCR is an electronic command device in a standardised
4-module DINcontainer,tocontrolthelevelofelectricallyconductiveliquids.
SAFETY WARNINGS
During the installation and operation of the instrument, proceed in accordance with the
instructions below:
1) The instrument should be installed by a competent operator following the installation
diagrams carefully
2) The instrument should be installed in a panel from which no access can be gained to
the terminals after installation
3) Do not power or connect the instrument if any part of it is damaged
4) The electrical system of the building in which the instrument is to be installed should
have a switch and a protective device against over-currents
5) The instrument is designed for installations with over-voltage category III and
pollution level 2, in accordance with the EN 61010-1 standard.
Code Model Description
VP810600 LCR048
Liquid-levelcontrolrelay24/48V
VP809800 LCR230 Liquid-levelcontrolrelay115/230V
VP808000 LCR400 Liquid-levelcontrolrelay400V
TECHNICAL SPECIFICATIONS
• Powersupply:24/48/115/230/400V~(-15%÷+10%),50/60Hz
• Absorption:3,5VA(2,5W)
• Termination:6mm
2
block
• Output:relaywithexchangecontact8A/250V~
maximumswitchablepower2000VAcos = 1
• Numberofprobesapplicable:3
• Probeoutputvoltage:8V~(betweentheelectrodes)
• Probesensitivity:4÷30k adjustable
• Signaling:
–GreenLED:poweron
–RedLED:relayintervention
• Operatingtemperature:–5°C÷+50°C
• Storagetemperature:–10°C÷+70°C
• Humidity:20%÷90%non-condensing
• Insulation:powersupply,loadandprobecircuitsinsulatedgalvanicallyatreinforced
insulationinaccordancewiththeEN61010-1standard
• Container:4-moduleDIN,colourRAL-7035grey
• Casingmaterial:serf-extinguishinginclassV0,inaccordancewiththeUL-94standard
• Degreeofprotection:IP20/IP40whencorrectlyinstalledinanelectricalpanel
OPERATION
• Thesensitivityoftherelaycanbeadjustedbetween4and30k usingthe
“sensitivity”
trimmer,inordertoadaptittotheconductionvalueoftheliquidtobecontrolledduring
theinstallationstage.
• Forthecorrectoperationoftherelay,terminal10,withitsownelectrodeifnecessary,
shouldbeconnectedtoearth.
• Theconductorsthatconnecttherelaytotheelectrodesshouldifpossiblebekeptseparate
fromthepowercables,especiallywherelongdistancesareinvolved.
Ifthisisnotpossible,werecommendusingscreenedcables.
MINIMUM (WITH PROTECTION AGAINST DRY RUNNING)
AND MAXIMUM LEVEL CONTROLS
Filling a tank
using contact 16-17 (NC at rest) of the relay
• Intheconditionswiththetankempty,theelectrodesarnotsubmergedandtheoutput
relayisde-energised.
• Thepumpwillcomeintoactionassoonasithasbeenstartedupbyitscommands,andwill
continuethellingoperationuntiltheliquidreachesthemaximumlevel,ascontrolledby
the
MAX
electrode.
• Atthispoint,theoutputrealywillbeexcitedandcontact16-17willswitch(seethe
“Operatingdiagram1”).
Emptying a tank
using contact 16-18 (NC at rest) of the relay
• Intheconditionswiththetankfull,theelectrodesarsubmergedandtheoutputrelayis
excited.
• Thepumpwillcomeintoactionassoonasithasbeenstartedupbyitscommands,andwill
continuetheemptyingoperationuntiltheliquidreachestheminimumlevel,ascontrolled
bythe
MIN
electrode.
• Atthispoint,theoutputrelaywillbede-energisedandcontact16-17willswitch(seethe
“Operatingdiagram1”).
CONTROLLING A SINGLE LIQUID LEVEL (WARNING THRESHOLD)
• Theoutputrelaywillexciteeachtimetheliquidreachesthelevelcontrolledbythe
LEVEL
electrode.
• Theoperationwilltakeplaceinreverseassoonastheelectrodeisnolongersubmerged
intheliquid,asthereisnoself-poweringoftherelaywiththistypeofcontrol(seethe
“Operatingdiagram2”.
REFERENCE STANDARDS
ConformitytotheEUdirectives:
2006/95/EC(LowVoltage)
89/336/EECmodiedby92/31/EECand93/68/EEC(EMC)
isdeclaredwithreferencetothefollowingharmonisedstandards:
Safety:
EN61010-1
Electromagnetic compatibility:
EN61000-6-2,EN61000-6-4
Dimensions
Connection diagram
65
87
45
60
72
ON
Sensibility
ON
Relay
LCR
LCR048
LCR230
1
2
3
10
11
12
13
16
17
18
GND MAX MIN
COM
24 V ca (1-2)
115 V ca (1-2)
LCR048
LCR230
1
2
3
10
11
12
13
16
17
18
GND MAX
MIN
COM
48 V ca (1-3)
230 V ca (1-3)
400 V ca (1-3)
LCR400
8A / 250 V ca 8A / 250 V ca
Operating diagram 1
Operating diagram 2
Terminal 11
Terminal 12
Terminal 13
MAX
MIN
COM (*)
(*) Only in the case of
non-metallic tanks and wells.
Power
supply
Com./Min
Probe
Com./Max
Probe
Relay
ON
Power
supply
Com./Min
Probe
Relay
ON
Terminal 11
Terminal 13
LIVEL
COM (*)
(*) Only in the case of
non-metallic tanks and wells
Warning
level
Warning
level
Warning
level
Minimum (with protection against dry running)
and maximum level controls
Control of a single liquid level (warning level)
USE
Theoperatingprincipleisbasedonthevariationintheresistancevalueoftheliquid,detectedbymeansof2or3electrodes,dependingonwhethertheconstructionmaterialsofthewellsandtanksis
metallicornot.Thisdevice,coupledtosuitableelectrodesandinsertedinthecommandcircuitofpumpingsystemstokeepthelevelinthewellsandaccumulatortanksatthelevelsset,atthesame
timeguaranteeingtheprotectionofthesubmergedpumpsagainstdryrunning.Therelaycanalsobeusedasanalarmdeviceforthedetectionoftheminimumandmaximumlevelsoftheliquidsto
becontrolled,orasaprotectiondeviceforthedetectionofthepresenceorabsenceoftheliquid.
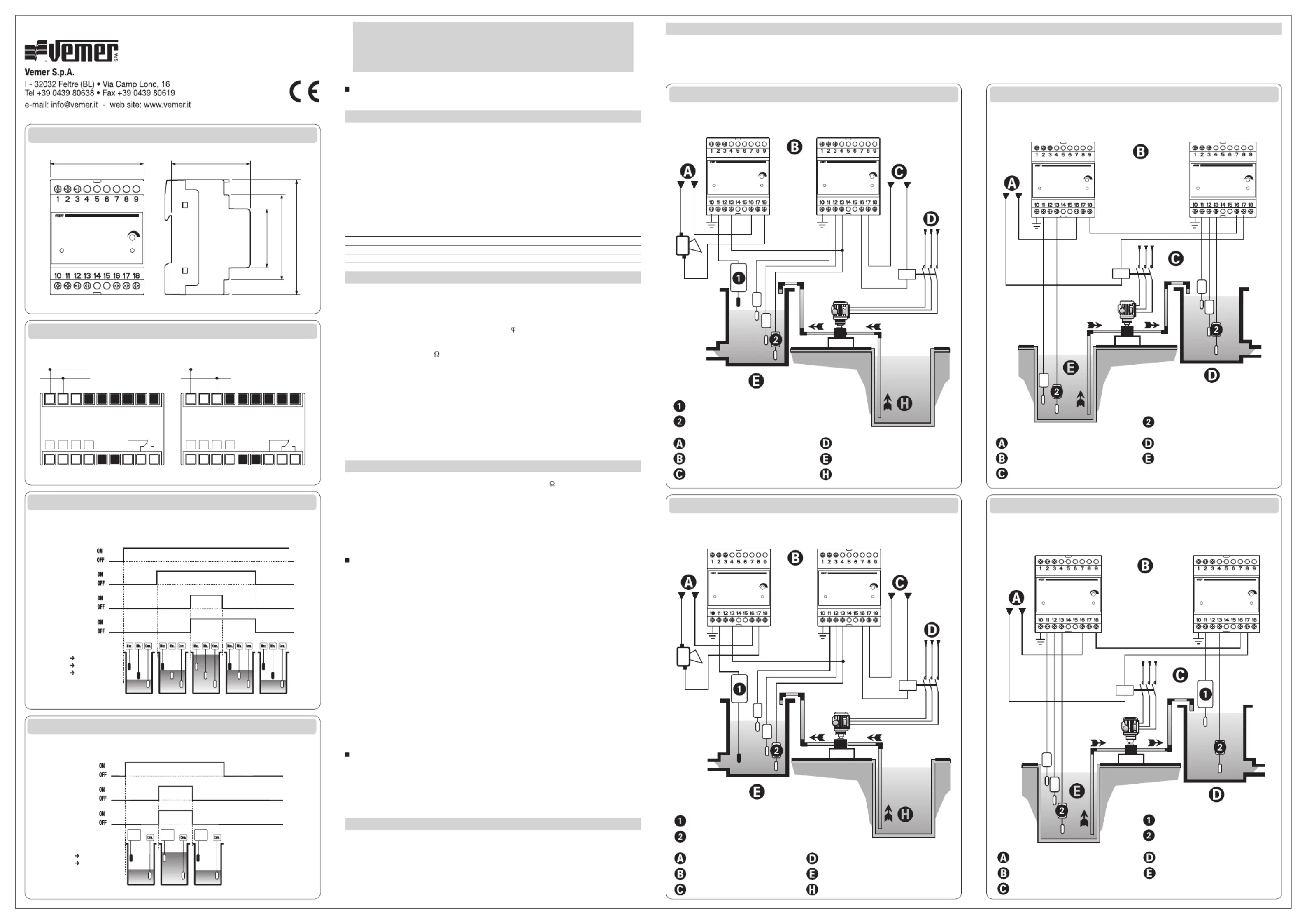
Applications (A)
Applications (B)
MIN
MAX
Warning Level
Common
Keeps the liquid level in the tank supplied between the two fixed points
(Max/Min), with alarm for excess level.
Tank Being Filled
Well/Tank Emptying
Power Supply 1-2-3
Pump Circuit Power Supply
Motor Command Circuit
Alarm Circuit Power Supply
ON
Sensibility
ON
Relay
LCR
ON
Sensibility
ON
Relay
LCR
MIN
MAX
Warning Level
Common
Keeps the level of the liquid in the tank being filled between the two fixed
points (Max/Min), with insufficient level alarm.
Tank Being Filled
Well/Tank Emptyingell/Tank Emptying
Power Supply 1-2-3
Pump Circuit Power Supply
Motor Command Circuit
Alarm Circuit Power Supply
ON
Sensibility
ON
Relay
LCR
ON
Sensibility
ON
Relay
LCR
Applications (C)
Applications (D)
LIV
MIN
MAX
Well/Tank Emptying
Power Supply 1-2-3
Tank Being Filled
Pump Circuit Power Supply
Motor Command Circuit
Common
Keeps the level in the tank supplied between the two fixed points (Max and Min
level), guaranteeing effective protection against dry running of the pumps, and
controlling the level of the liquid in the well or tank being emptied.
ON
Sensibility
ON
Relay
LCR
ON
Sensibility
ON
Relay
LCR
MAX
MIN
Warning Level
Well/Tank Emptying
Power Supply 1-2-3
Tank Being Filled
Pump Circuit Power Supply
Motor Command Circuit
Common
Filling a tank by pumping, with level control in the well or tank being emptied
against dry running and control of the warning level in the tank being filled.
ON
Sensibility
ON
Relay
LCR
ON
Sensibility
ON
Relay
LCR
Produktspecifikationer
| Varumärke: | Vemer |
| Kategori: | Inte kategoriserad |
| Modell: | LCR230 |
Behöver du hjälp?
Om du behöver hjälp med Vemer LCR230 ställ en fråga nedan och andra användare kommer att svara dig
Inte kategoriserad Vemer Manualer
4 Oktober 2024
3 Oktober 2024
1 Oktober 2024
22 September 2024
22 September 2024
22 September 2024
21 September 2024
18 September 2024
16 September 2024
14 September 2024
Inte kategoriserad Manualer
- Ventus
- Sunstech
- Trisa
- Burg-Wachter
- Blue Sky
- Oliveri
- Karcher
- ETiger
- Bleep Labs
- Osprey
- AEA
- Pangea Audio
- Dayclocks
- Tempo
- DEERSYNC
Nyaste Inte kategoriserad Manualer
9 April 2025
9 April 2025
9 April 2025
9 April 2025
9 April 2025
9 April 2025
9 April 2025
9 April 2025
9 April 2025
9 April 2025