Greisinger GRHU-2K Bruksanvisning
Greisinger
Inte kategoriserad
GRHU-2K
Läs gratis den bruksanvisning för Greisinger GRHU-2K (4 sidor) i kategorin Inte kategoriserad. Guiden har ansetts hjälpsam av 12 personer och har ett genomsnittsbetyg på 4.3 stjärnor baserat på 6.5 recensioner. Har du en fråga om Greisinger GRHU-2K eller vill du ställa frågor till andra användare av produkten? Ställ en fråga
Sida 1/4

T19.0.1X.6B-07 Blatt 1 von 2
Technische Daten:
Meßbereich: siehe Typenschild
Standard: 0 - 100 % r.F. (empf. Einsatzbereich: 30 - 80 % r.F.)
Hochfeuchte: 0 - 100 % r.F. (empf. Einsatzbereich: 11 - 90 % r.F.)
Ausgangssignal: siehe Typenschild
Sensor: Kapazitiver Dünnfilm Sensor (nicht für staubige und aggressive Medien)
Genauigkeit: (bei Nenntemperatur)
Linearität: Standard: ±2 % r.F. (von 30 bis 80 % r.F.)
Hochfeuchte: ±2 % r.F. (von 11 bis 90 % r.F.)
Hysterese: Standard ±1.5 % r.F. (von 30 bis 80 % r.F.)
Hochfeuchte: ±1.0 % r.F. (von 11 bis 90 % r.F.)
Hilfsenergie: +Uv = 12 - 30 V DC (Bei 0-10V: +Uv = 18 - 30 V DC)
Verpolungsschutz: 50V dauernd
Zulässige Bürde: 4-20 mA: RA < (Uv - 12V) / 0.02A
Zulässige Last: 0-1(10)V: RA > 3000 Ohm
Arbeitstemperatur: Elektronik: 0 bis 70°C
Sensoren: 0 bis 70°C (Standard-Sensor)
-30 bis 120°C (mit OPTION Hochtemperatur)
Nenntemperatur: 25°C
Lagertemperatur: -20 bis +85°C
Relative Luftfeuchtigkeit: 0 bis 100 % r.F. (nicht betauend)
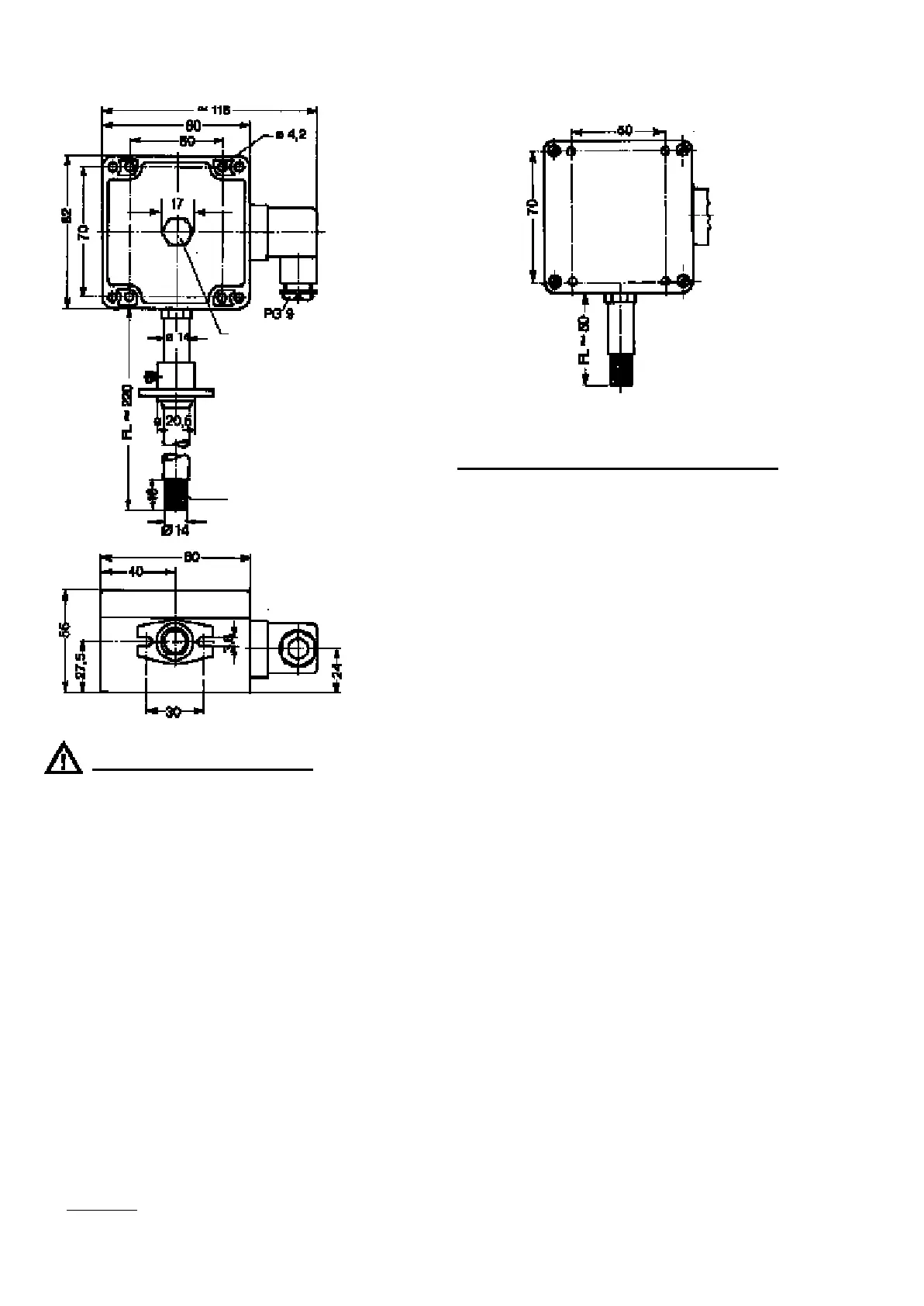
Gehäuse: ABS (IP65)
Einbaulage: Sondenrohr senkrecht nach unten, ±90° Winkelabweichung
Sondenrohr: Aluminium, Ø 14 mm, eloxiert,
mit abschraubbarem Bronzefilter 80-160 µm (bei Ausf. -HO: mit Kunststoff-Schutzkappe)
elektrischer Anschluß: über Winkelstecker nach DIN 43650 (IP65) für Kabel bis 1,5mm
2
Befestigung: Entweder über Einschraubgewinde oder über Befestigungsbohrungen im Gehäuse (nach
Abnahme des Deckels zugänglich).
Befestigungsabstand: 50 x 70mm, max. 4mm Schaftdurchmesser der Befestigungsschrauben.
Bedienungsanleitung für Feuchte-Meßumformer
GRHU - 1R / 1K / 2K (und Hochfeuchte)
Anschlußbelegung Winkelstecker:
1
2
A
Uv
V
3
Uv1 V Uv
3
1
2
2-Leiter-Anschluß (4-20mA) 3-Leiter-Anschluß (Spannung) 4-Leiter-Anschluß (Spannung)
1 = Versorgungsspannung +Uv
2 = GND / Signal
1 = Signal +
3 = Versorgungsspannung +Uv
=
Versorgungsspannung -Uv
Signal -
1 = Signal +
2 = Signal -
3 = Versorgungsspannung +Uv
= Versorgungsspannung -Uv
Temperatur [°C]
relative Feuchte [% r.F.]
Arbeitsbereich Feuchtesensor:

T19.0.1X.6B-07 Blatt 2 von 2
Sicherheitshinweise:
Dieses Gerät ist gemäß den Sicherheitsbestimmungen für elektronische Meßgeräte gebaut und geprüft.
Die einwandfreie Funktion und Betriebssicherheit des Gerätes kann nur dann gewährleistet werden, wenn bei der Benutzung die allgemein
üblichen Sicherheitsvorkehrungen sowie die gerätespezifischen Sicherheitshinweise in dieser Bedienungsanleitung beachtet werden.
1. Die einwandfreie Funktion und Betriebssicherheit des Gerätes kann nur unter den klimatischen Verhältnissen, die im
Kapitel „Technische Daten“ spezifiziert sind, garantiert werden.
Wird das Gerät von einer kalten in eine warme Umgebung transportiert, so kann durch Kondensatbildung eine Störung der Geräte-
funktion eintreten. In diesem Fall muß die Angleichung der Gerätetemperatur an die Umgebungstemperatur abgewartet werden.
2. Beachten Sie die üblichen Vorschriften und Sicherheitsbestimmungen für Elektro-, Schwach- und Starkstromanlagen,
insbesondere die landesüblichen Sicherheitsbestimmungen (z.B. VDE 0100).
3. Konzipieren Sie die Beschaltung besonders sorgfältig beim Anschluß an andere Geräte (z. B. PC). Unter Umständen
können interne Verbindungen in Fremdgeräten (z. B. Verbindung GND mit Schutzerde) zu nicht erlaubten Spannungs-
potentialen führen, die das Gerät selbst oder ein angeschlossenes Gerät in seiner Funktion beeinträchtigen oder sogar
zerstören können.
4. Wenn anzunehmen ist, daß das Gerät nicht mehr gefahrlos betrieben werden kann, so ist es außer Betrieb zu setzen
und vor einer weiteren Inbetriebnahme durch Kennzeichnung zu sichern.
Die Sicherheit des Benutzers kann durch das Gerät beeinträchtigt sein, wenn es zum Beispiel:
- sichtbare Schäden aufweist
- nicht mehr wie vorgeschrieben arbeitet
- längere Zeit unter ungeeigneten Bedingungen gelagert wurde
In Zweifelsfällen sollte das Gerät grundsätzlich an den Hersteller zur Reparatur bzw. Wartung eingeschickt werden.
5. Warnung: Benützen Sie dieses Produkt nicht in Sicherheits- oder in Notaus-Einrichtungen oder in Anwendungen wo ein
Fehlverhalten des Gerätes die Verletzung von Personen oder materielle Schäden zur Folge haben kann.
Wird dieser Hinweis nicht beachtet so kann dies zu Verletzung oder zum Tod von Personen sowie zu materiellen Schäden führen.
GRHU - 1R
GRHU - 1K
GRHU - 2K
wie GRHU - 1K, jedoch
Austritt des Sensorrohres
mittig und senkrecht nach
unten (z.B. für direkte
Montage auf ebenen
Kanalflächen)
Allgemeine Montagehinweise:
Zur Montage des Anschlußkabels (je nach Gerätetyp: 2-, 3-
oder 4-Leiter) muß die Schraube am Winkelstecker gelöst
und der Kupplungseinsatz, mit Hilfe eines Schraubendrehers,
an der bezeichneten Stelle (Pfeil) herausgehoben werden. Nun
kann das Anschlußkabel durch die PG-Verschraubung gezo-
gen und auf dem losen Kupplungseinsatz, gemäß vorstehen-
den Anschlußplan, montiert werden. Den losen Kupplungs-
einsatz nun wieder auf die Stifte am Transmittergehäuse
aufstecken und die Abdeckkappe mit dem PG-Anschluß in
die gewünschte Richtung drehen und aufschnapppen (Es sind
hier 4 verschiedene, jeweils um 90° gedrehte Ausgangs-
ebenen möglich). Die Schraube am Winkelstecker wieder
anziehen.
Bronze-Filter 80 - 160 µm
(bei Ausf. -HO: Kunststoff-Schutzkappe)

T19.0.1X.6C-07 page 1 of 2
Specification:
Measuring area: please refer to type plate
Standard: 0 - 100 %RH (rec. range of application: 30 - 80 %RH)
High humidity: 0 - 100 %RH. (rec. range of application: 11 - 90 %RH)
Output signal: please refer to type plate
Sensor: Capacitive thin film sensor (unsuitable for dusty and aggressive media)
Accuracy: (at nominal temperature)
Linearity: Standard: ±2 %RH (from 30 to 80 %RH)
High humidity: ±2 %RH (from 11 to 90 %RH)
Hysteresis: Standard ±1.5 %RH (from 30 to 80 %RH)
High humidity: ±1.0 %RH (from 11 to 90 %RH)
Auxiliary energy: +Vs = 12 - 30 V DC (For 0-10V: +Vs = 18 - 30 V DC)
Reverse voltage protection: 50V permanent
Permissible impedance: 4-20 mA: RA < (Vs - 12V) / 0.02A
Permissible load: 0-1(10)V: RA > 3000 Ohm
Working temperature: Electronics: 0 to 70°C
Sensors: 0 to 70°C (standard-sensor)
-30 to 120°C (with high temperature OPTION)
Nominal temperature: 25°C
Storage temperature: -20 to +85°C
Relative atmospheric humidity: 0 to 100 % RH (non-condensing)
Housing: ABS (IP65)
Mounting position: Sensor tube pointing vertically downwards, ±90° angle deviation
Sensor tube: Aluminium, Ø 14 mm, anodized
with bronze filter 80-160 µm (for type -HO: plastic protection cap)
electric connection: Via angle plug according to DIN 43650 (IP65) for cables up to 1,5mm
2
Mounting: By means of screw thread or mounting holes in housing (accessible after cover has been
removed)
Mounting distance: 50 x 70mm, max. shaft diameter of mounting screws is 4mm
Operating Manual for Humidity Measuring Device
GRHU - 1R / 1K / 2K (and high humidity)
Assignment of Angle Plugs:
1
2
A
Vs
V
3
Vs1 V Vs
3
1
2
2-wire connection (4-20mA) 3-wire connection (voltage) 4-wire connection (voltage)
1 = supply voltage +Vs
2 = GND / Signal
1 = signal +
3 = supply voltage +Vs
=
supply voltage -Vs
signal -
1 = signal +
2 = signal -
3 = supply voltage +Vs
= supply voltage -Vs
temperature [°C]
relative humidity [%RH]
working area of the humidity sensor:
Produktspecifikationer
Varumärke: | Greisinger |
Kategori: | Inte kategoriserad |
Modell: | GRHU-2K |
Behöver du hjälp?
Om du behöver hjälp med Greisinger GRHU-2K ställ en fråga nedan och andra användare kommer att svara dig
Inte kategoriserad Greisinger Manualer
17 September 2024
17 September 2024
17 September 2024
1 September 2024
31 Augusti 2024
30 Augusti 2024
30 Augusti 2024
28 Augusti 2024
27 Augusti 2024
27 Augusti 2024
Inte kategoriserad Manualer
- Namco Bandai Games
- Vixen
- Jonard Tools
- Vanish
- Metronic
- MIDI Solutions
- Inventum
- Lemair
- Apogee
- Prowise
- Cadac
- EMSA
- Code Mercenaries
- Vinotemp
- AbleNet
Nyaste Inte kategoriserad Manualer
9 April 2025
9 April 2025
9 April 2025
9 April 2025
9 April 2025
9 April 2025
9 April 2025
9 April 2025
9 April 2025
9 April 2025